EasyManua.ls Logo

Sony HT-CT770 - Schematic Diagram - PANEL Section

Sony HT-CT770
74 pages
Print Icon
To Next Page IconTo Next Page
To Next Page IconTo Next Page
To Previous Page IconTo Previous Page
To Previous Page IconTo Previous Page
Loading...
HT-CT770
HT-CT770
4343
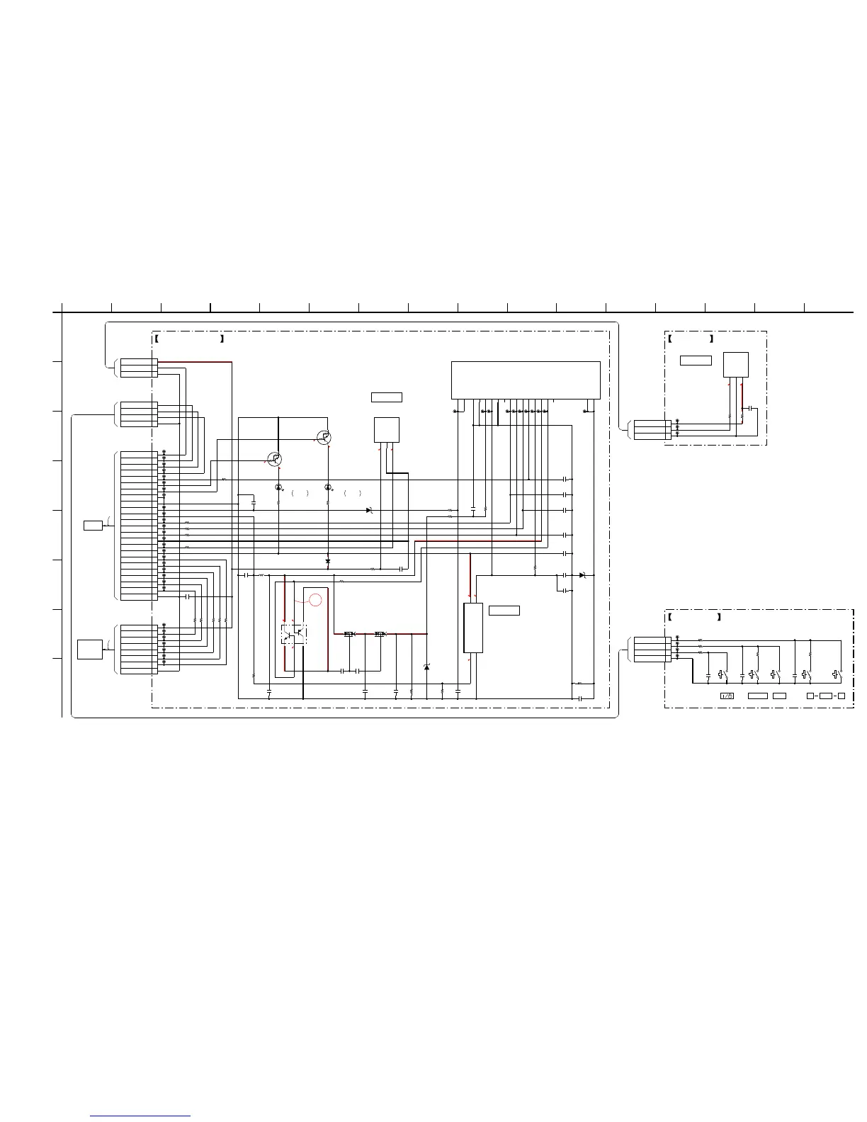
5-18. SCHEMATIC DIAGRAM - PANEL Section -
• See page 46 for Waveforms. • See page 46 for IC Block Diagrams.
31
3.3
2.3
0
3.5
3.5
0
11. 7
5.2
5.2
3.9
3.3
3.6
3.3
3.3
4P
CN804
DGND 1
KEY0 2
KEY1 3
KEY2 4
8P
CN802
1E3.3V
2SPICLK
3NFC_DATA
4NFC_SEL
5NFC_IRQ
6NFC_SW
7NFC_RFDET
8NFC_GND
CN801
24P
1SIRCS2
2KEY2
3KEY1
4KEY0
5RST_FL
6P_LED
7BT_LED
8DDGND
9DDGND
10DD6V
11DD12V
12FL_DATA
13FL_CS
14FL_CLK
15DGND
16SIRCS
17E4V
18NFC_RFDET
19NFC_SW
20NFC_IRQ
21NFC_SEL
22NFC_DAT
23SPI_CLK
24DGND
BAV99-215
D808
BAV99-215
D809
JL801
JL817
JL826
JL821
JL825
JL805
JL824
JL806
JL828
JL803
JL812
JL818
JL811
JL816
JL804
JL829
JL819
JL830
JL831
JL807
JL809
JL822
JL832
JL820
JL810
JL802
JL827
JL814
JL815
JL808
JL813
JL823
JL833
ND001
F+
F+
LGND
PGND
VH
VDD
TSB
TSA
SI
SCK
STB
RESET
OSC
VIN
SW
N.C
F–
F–
BC817DPN
Q805
PNA4823M02S0
IC802
VO
1
GND
2
VCC
3
MM3411A33URE
IC806
CE
1
GND
2
VOUT
3
VDD
4
JL834
JL835
JL836
JL837
JL838
JL839
JL840
47R803
47R805
47R802
47
R801
47R804
10
C801
10
C821
1
C820
10uH
L001
100
R825
1
C824
1
C823
1
C833
1
C822
33k
R826
DZ2J300M0L
D811
KDZTR2.0B
D810
1
C836
10
C805
1
C825
0.1
C826
1
C835
1
C834
22k
R831
47
R813
47
R814
10k
R832
10k
R830
DA2J10100L
D803
100R810
100R808
100R809
100
R811
100
R807
100
R812
LTC023JUBFS8TL
Q804
LTC023JUBFS8TL
Q803
D802
CL-194S-HB8SP-SD-T
SL-194S-WS-SD-T
D801
CES520
D812
0
R833
1
C829
220p
C832
220p
C830
0.1
C828
0.1
C827
10
R828
47k
R829
10
R827
3P
CN803
1E3.3V
2SIRCS2
3DGND
220p
C831
IC806
+3.3V REGULATOR
IC802
REMOTE COMTROL RECEIVER
DISPLAY BOARD
CN1002
MAIN
>04S
(6/6)
BOARD
FLUORESCENT INDICATOR TUBE
FFC4
FFC5
(RC-S801)
NFC1
NFC MODULE
LED DRIVE
LED DRIVE
DC/DC
CONVERTER
64
13
44
45
1
2
5
18
(WHITE)
LAMP
(BLUE)
LAMP
10 11 12 13 14 15
G
16
H
F
1
C
D
6
E
2
B
3
A
45 789
3P
CN901
1E3.3V
2SIRCS2
3DGND
JL902
JL901
JL903
PNA4823M05S0
IC901
VO
1
GND
2
VCC
3
47
R901
47
R902
10
C901
IC901
REMOTE CONTROL RECEIVER
IR BOARD
0.1
C701
0.1
C703
0.1
C702
4P
CN701
DGND 1
KEY0 2
KEY1 3
KEY2 4
JL704
JL702
JL701
JL703
2.2k
R702
1k
R705
1kR704
1k
R703
2.2k
R701
S701 S702
PAIRING
S703
INPUT
S704
VOL
S705
KEY BOARD
+
(Page 41)

Other manuals for Sony HT-CT770

Related product manuals