EasyManua.ls Logo

Sony KDF-E42A11E - 5 Diagrams; Block Diagram (1)

Sony KDF-E42A11E
106 pages
Print Icon
To Next Page IconTo Next Page
To Next Page IconTo Next Page
To Previous Page IconTo Previous Page
To Previous Page IconTo Previous Page
Loading...
- 30 -
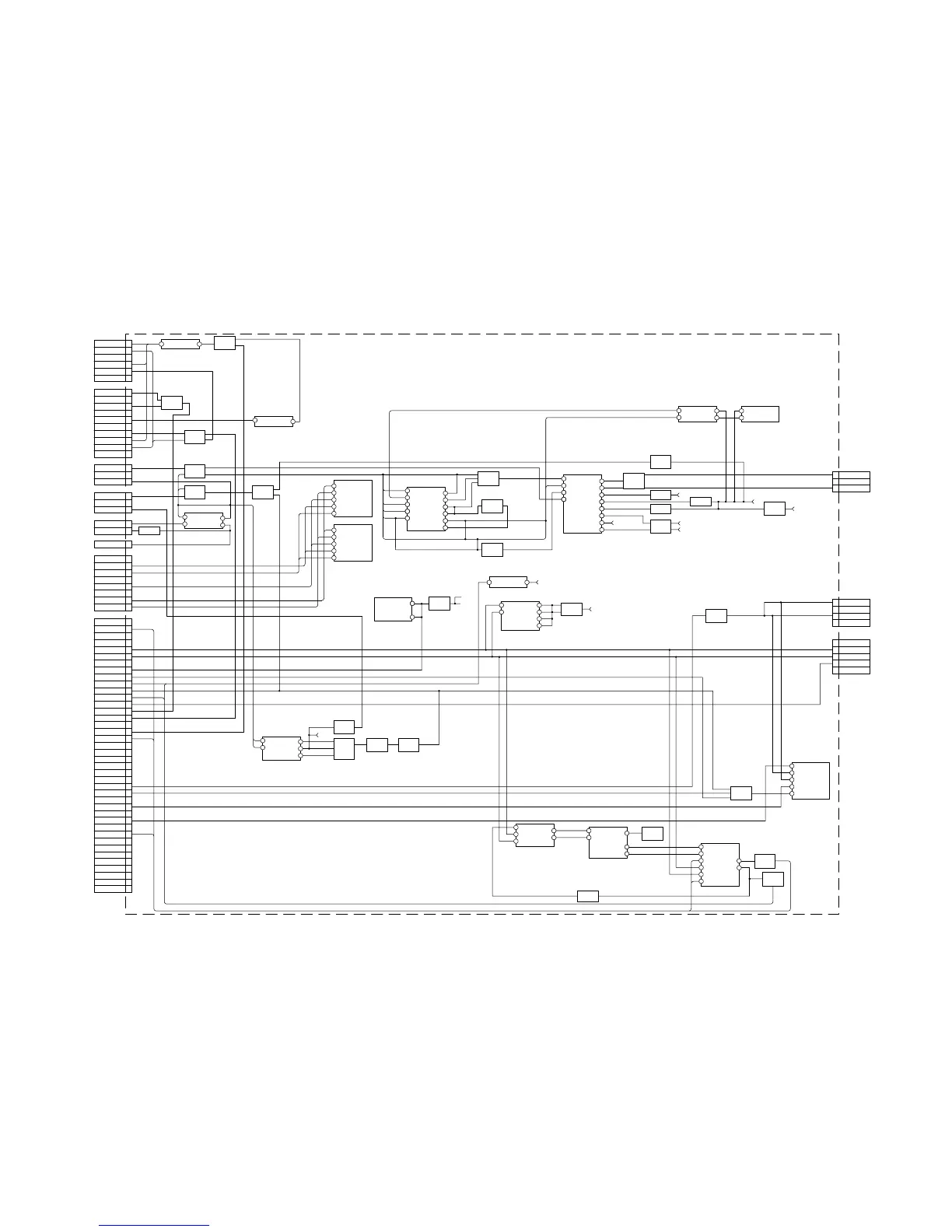
5-1. BLOCK DIAGRAMS (1)
3
1
18
2
1
10
2
1
D6306
D6302
Q6302
Q6305
D6304
STBY 7V
8
7
4
1
T6300
D1618
D1619
K
R
IC1602
11V voltage sensor
2
1
3
4
PH1601
AV GND
-AV
+AV
D1624
D1613
D1616
D1617
+33VAD1601
11VD1620
17VD1621
D1608
D1612
D1635
D1636
D1609
D1632
8
18
13
4
11
T1603
12
3
9
17
VC2
P-GND
VB
VS
VG(H)
VD
VC1
TIMER
RT
F/B
VSENSE
D1607
8
14
6
16
15
4
Q1606
Q1607
Q1603
Q1604
Q1605
D1602
D1631
AC
3
AC 1
CN1616
BIMETAL 3
BIMETAL 1
CN1603
2
1
3
4
AC
2
AC 1
CN1601
FH1601
IF AGC
IF DIGITAL
IF DIGITAL
SCL
SDA
TU1231
IF AGC
IF DIGITAL
IF DIGITAL
SCL
SDA
TU1230
D - IF2
D - IF1 2
TSCL
TSDA
8
7
IF AGC
5
3
CN2303
O
IC6210
Q6201
Q6202
O
IC6205
FAN LAMP PROT
FAN LAMP POW
FAN B PROT
5
4
FAN B PW 1
2
CN3001
FAN LAMP PROT
FAN LAMP POW
FAN O.V. PROT
9
8
7
B_INTERFACE
N_INTERFACE
DIG_TUNER
LAMP COV
5
1
CN3000
D6207
D6208
D6209
4
5
Q6203
IF OUT
AGC
TU1001
Q1007
Q1004
Q1008
Q1009
Q1002
Q1003
VIDEO
17
TU AGC 14
QSS12
SCL11
SDA
FM AF
VIF
VIF
10
8
2
1
IC1001
IF on board
6
7
1
10
9
SF1001
M5
L+IN7
L-IN8
R-IN10
R+IN
Q2000
Q2500
Q2501
Q2502
Q2503
Q2504
BYPASS
+ 5V
TU1200
5
11
IC2500
AUDIO AMP
6
IC4200
Real time clock
QSS
32
RIGHT
30
LEFT
28
POFFMUTE
26
SP_PROT 25
CVBSARF
18
FAN_CTL
17
FAN_PROT
15
LMP_COV
14
12CD15
13
AGCDEF
12
ATT
10
SCL
5
A. MUTE
MAIN_SW
11
9
AM 2
AC ON/OFF
8
SDA
6
CN5201
5
5
NC
4
CS
3
SDA
2
CN5209
SCL
3
R
1
TO H3 BOARD
CN4305
L
TO
TUNER
1
CN1612
Q6203
3
- DC
1
CN1602
+ DC
10
11
+17V
D1004
D1006
+11V
+5VD
9
+5V STBY
D1620
2
1
3
8
E
TO LAMP
DRIVER
DATA
CLOCK
CN2003
FAN O.V. POW
D3001
3LAMP CONV
IC6201
AC ON/OFF
IC1601
T1605
AG
(
MAIN POWER SUPPLY, TUNER, AUDIO AMPLIFIER
)

Table of Contents

Related product manuals