EasyManua.ls Logo

Sony SLTA77 - Power Block Diagrams; Power Block Diagram (1;4)

Sony SLTA77
58 pages
Print Icon
To Next Page IconTo Next Page
To Next Page IconTo Next Page
To Previous Page IconTo Previous Page
To Previous Page IconTo Previous Page
Loading...
SLT-A77/A77Q/A77V/A77VK/A77VQ_L3
4-4
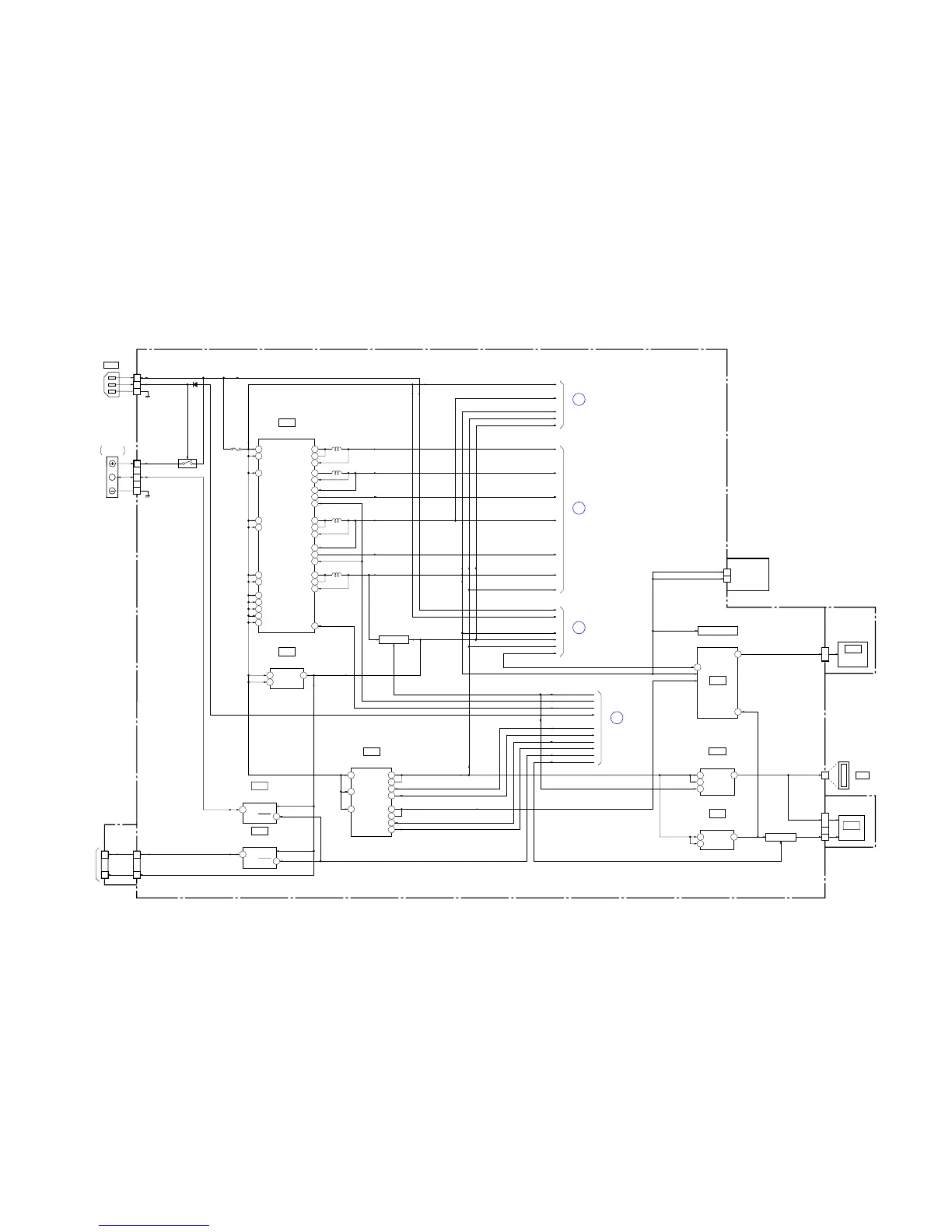
4-4. POWER BLOCK DIAGRAM (1/4)
( ) : Number in parenthesis ( ) indicates the division number of schematic diagram where the component is located.
B+ SWITCH
AM-027 BOARD (1/4)
BATT_1_IB
BATT_1_IB
BATT_2_IB
TO
VERTICAL
CONTROL
GRIP
BATT_UNREG
XDC_JACK_SENSE
XDC_JACK_SENSE
UNREG_DD
UNREG_DD
UNREG_DD
UNREG_DD
A_VID,
D_VID
CN0501
F0504
S
BT901
BATTERY
TERMINAL
J901
DC/DC CONVERTER
(1/19)
IC0006
PVDD1a
E1
PVDD1b
E2
PVDD2
C8
LX1a
D1
LDO1_OUT
A5
LDO1_ENB
D6
LX1b
D2
FB1
D3
L0005
D_3.1V,
A_3.1V
D_3.1V,
A_3.1V
PVDD5aH5
PVDD5b
G5
LX5a
H4
LX5b
G4
FB5
E3
D_3.1V,
A_3.1V
L0009
A_1.8V,
D_1.8V,
IS_1.8V
PVDD3aA1
PVDD3b
B1
LX3a
A2
LX3b
B2
FB3
C4
LDO1_ON
L0007
LDO2_SOURCE
B4
D_1.2V
LX2 B8
FB2
C5
LPDDR2_1.2V
L0006
LDO1_SOURCE
A6
LDO2_OUT
A4
LDO2_ENB
E5
LDO1_ON
LDO1_ON
DD_ON_1
DD_ON_1
LPDDR2_1.8V
3.1V REG
(1/19)
IC0003
VOUT
1
RESET
B2
VIN
6
ON/OFF
4
DC/DC CONVERTER
(1/19)
IC0005
VOBa
A4
VOBb
B4
VINB
C1
VIN
C6
VINA
D1
BATTERY DETECTOR
(16/19)
IC3501
TxRxE4
EVER_3.1V
EVER_3.1V
EVER_3.1V
EVER_3.1V
DD_ON_2
DD_ON_2
PVDD4H6
PVDD_CP
H2
AVDDB7
CAM_ON
PVDD6aD8
PVDD6b
D7
ENB B5
POKB
C3
POKA
D3
VOAa E4
VOAb
F4
Q0001, 0004
DD_ON
F5
B+ SWITCH
Q3704, Q3705
POKB
POKB
ENA E5
DD_ON_3
RESET B2
POKA
AS_POWER
XCAM_RESET
XCAM_RESET
DD_ON_3
POKA
IS_5.4V
CAM_5.4V
CAM_5.4V, IS_5.4V,
REF_5.4V
GYROREG_CN
GYROREG_CN
CAM_5.4V
EVER_3.1V
CN2001
CAM_5.4V
CAM_ON
1
4
5VDD
ECO
VOUT HDMI
3CE
5.0V REG
(17/19)
IC3702
HDMI_5.0V
Vref
18
CN3708
7
AF CCD
IC8051
REF_5.4V
AFCCD_ON
AFCCD_ON
3.1V REG
(12/19)
IC3005
VOUT
3VDD4
CE1
POWER (2/4)
(PAGE 4-5)
D
POWER (2/4)
(PAGE 4-5)
C
POWER (4/4)
(PAGE 4-7)
A
POWER (3/4)
(PAGE 4-6)
B
ACV_UNREG
08
1
2
3
BATT/XEXT
D0505
ACV_UNREG ACV_UNREG
CN0502
Q0501, Q0505
1
2
CN3904
1
12
16
1
3
BATTERY DETECTOR
(16/19)
IC3502
TxRx
E4
EVER_3.1V
1, 18
AFCCD/
HDMI_5V
GRP-001
FLEXIBLE
BOARD
AF-138 FLEXIBLE
BOARD
ANTI-SHAKE
DRIVE
(14/19)
IC3301
HALL
ELEMENT
IC7001
HALLREG 62
VREF
61
CN3301
5, 16
D_3.1V
AS_POWER
CAM_VREF_
IC_3301/AFCCD
HALLREG
HOL-007
FLEXIBLE
BOARD
GYROREG58
D_1.8V
UNREG_DD
DC IN
CONTROL
SWITCH
BLOCK
(RS87000)
CN3902
18
D_3.1V
3
A_3.1V
ACCELEROMETER
SE2501
D_3.1V

Related product manuals