EasyManua.ls Logo

Sony STR-DA90ESG - Hooking Up the System; Hookup Overview; Before you get started

Sony STR-DA90ESG
64 pages
Print Icon
To Next Page IconTo Next Page
To Next Page IconTo Next Page
To Previous Page IconTo Previous Page
To Previous Page IconTo Previous Page
Loading...
5
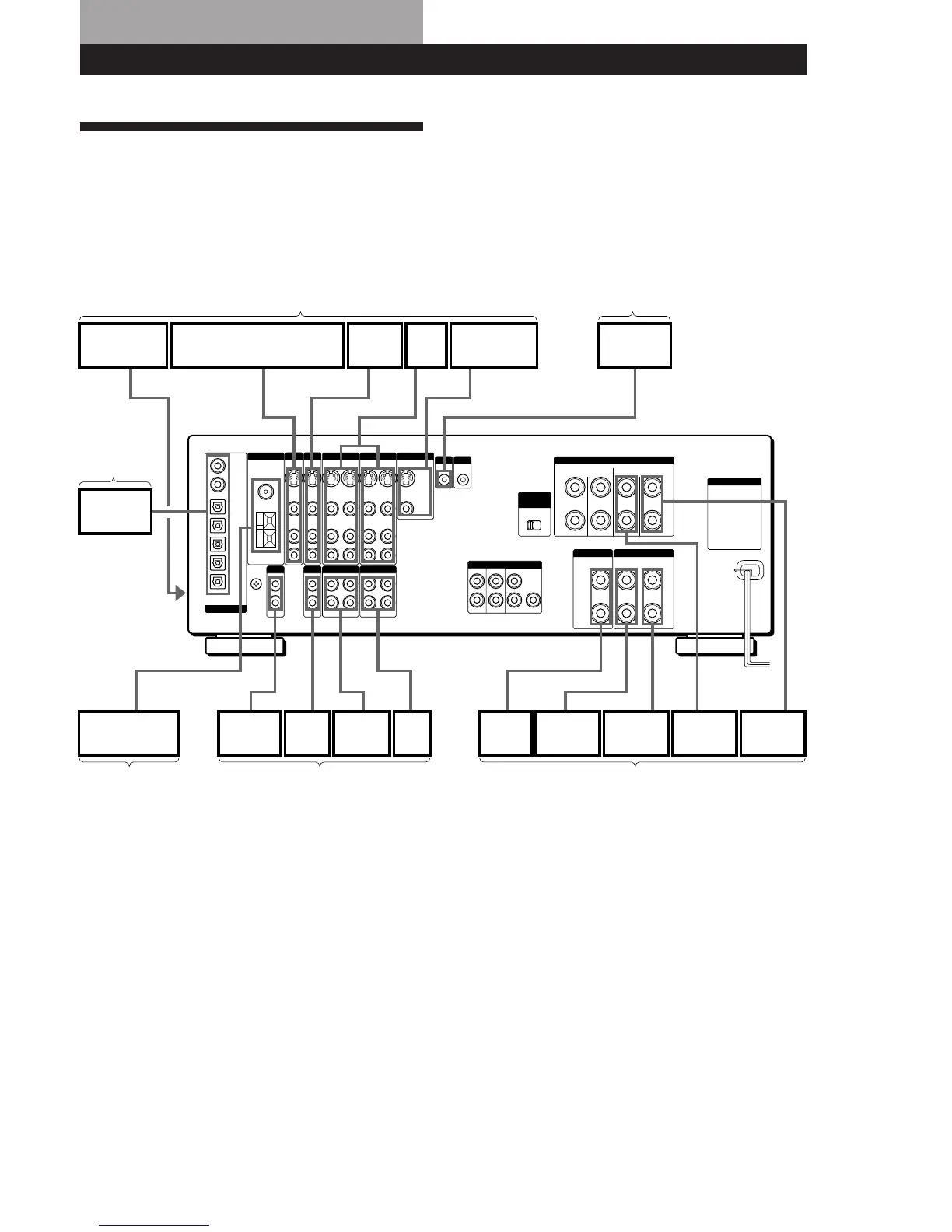
Hooking Up the System
DIGITAL
PHONO
ANTENNA
TV/DBS LD/DVD
VIDEO 2 VIDEO 1 MONITOR
CD DAT/MD TAPE
PRE OUT
IR OUT S-LINK
IMPEDANCE
SELECTOR
FRONT SPEAKERS
CENTER SPEAKER
REAR SPEAKERS
AC OUTLET
Speaker System Hookups (8)
Hookup Overview
The receiver allows you to connect and control the
following audio/video components. For details on
connection of each component, see the pages in
parentheses.
Infrared (IR) Repeater
Hookups (6)
TV/VCR Hookups (11)
Digital
Component
Hookups (12)
Antenna Hookups (6) Audio Component Hookups (7)
IR Repeater
Video camera/
video game
TV tuner/Digital Broadcasting
Satellites (DBS) receiver*
LD/DVD
player
VCR TV/MONITOR
DVD player
(etc.)
AM/FM antenna
CD
player
DAT/MD
deck
Tape
deck
Front
speaker (R)
Front
speaker (L)
Rear
speaker (R)
Rear
speaker (L)
Center
speaker
Turntable
To the
front panel
Before you get started
Check that you received the following items with the
receiver:
- FM wire antenna (1)
- AM loop antenna (1)
- Remote commander (remote) (1)
(remote for USA and Canada: RM-H501)
(remote for Australia: RM-VR101)
- Size AA (R6) batteries (2)
- IR repeater (1)
Turn off the power to all components before making
any connections.
Do not connect the AC power cords until all of the
connections are completed.
Be sure to make connections firmly to avoid hum
and noise.

Other manuals for Sony STR-DA90ESG

Related product manuals