EasyManua.ls Logo

Sony STR-K685 - Schematic Diagram - POWER Board, DCAC Board, HEADPHONE Board

Sony STR-K685
52 pages
Print Icon
To Next Page IconTo Next Page
To Next Page IconTo Next Page
To Previous Page IconTo Previous Page
To Previous Page IconTo Previous Page
Loading...
3232
STR-K685
STR-K685
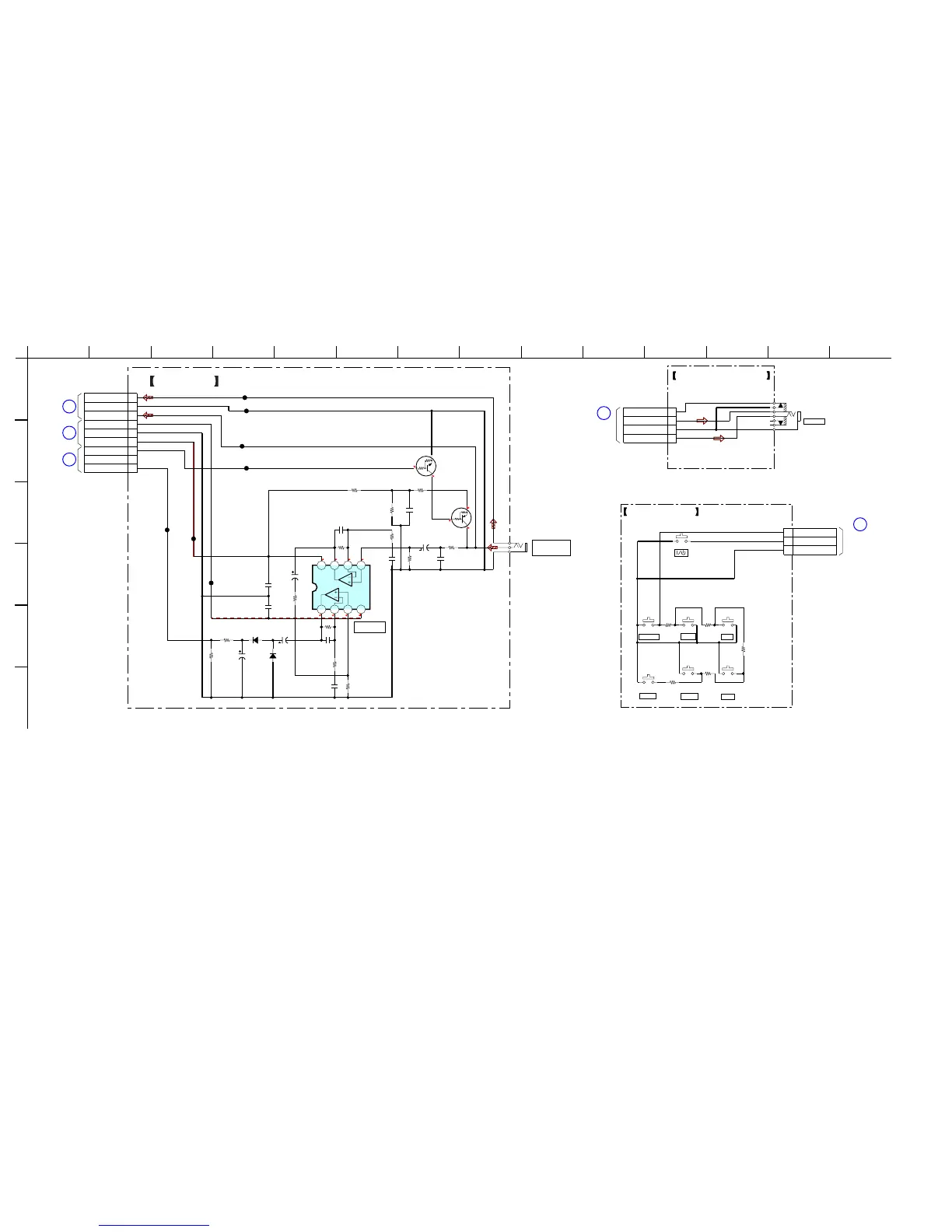
4-19. SCHEMATIC DIAGRAM – POWER BOARD, DCAC BOARD, HEADPHONE BOARD –
DISPLAY
BOARD
CN101
(Page 30)
K
J
MAIN
BOARD
(4/4)
CN701
(Page 28)
B
MAIN BOARD
(1/4)
CNP733
(Page 25)
E
MAIN BOARD
(1/4)
CNP732
(Page 25)
L
DISPLAY
BOARD
CNP102
(Page 30)
7
-7
00
No mark : FM
0
00 0
7
7
7
0
0
J2000
VIDEO 1 IN/
PORTABLE AUDIO IN/
AUTO CAL MIC
1
2
3
8765
4321
NJM4565D
IC2000
0.022
C2011
0.022
C2012
50V
0.47
C2014
50V
1
C2002
50V
1
C2006
50V
1
C2013
0.033
C2003
0.033
C2010
0.1
C2018
100p
C2001
1k
R2000
1k
R2006
1.2k
R2018
2.2k
R2019
10k
R2007
10k
R2010
10k
R2003
10k
R2001
15k
R2016
33k
R2015
560k
R2008
1SS133T-72
D2013
1SS133T-72
D2014
56p
C2008
1M
R2005
33p
C2005
CL2002
CL2003
CL2004
CL2006
CL2007
2.2k
R2017
DTC144ESA-TP
DC CONTOROL
DC CONTOROL
Q2001
DTA114ESA-TP
Q2002
CL2001
CL2005
1
2
3
4
5
6
7
8
9
CN2001
9P
DCAC_OUT (CN102)
BLANK
DC-CONTROL
+7V (CNP732)
+/-7V GND (CNP732)
-7V (CNP732)
PORT_L (CNP733)
PORT_GND (CNP733)
PORT_R (CNP733)
DCAC BOARD
R135
220
R136
330
R137
470
S114
S115
S116
S117
S118
S119
S152
R138
680
R139
1k
1
2
3
3P
CNP152
AD1
PW_SW
GND
POWER BOARD
J790
1
2
3
4
5
6
7
1
2
3
4
4P
CNP790
HP_DETECT
HP_R
HP_GND
HP_L
HEADPHONE BOARD
PHONES
DIMMER
SLEEP
2CH
MUSIC
MOVIE A.F.D.
IC2000
AMP
1 2 3 4 5 6 7 8 9 10 11 12 13 14
A
B
C
D
E
F

Related product manuals