EasyManua.ls Logo

Sony Trinitron CPD-E220 - Page 21

Sony Trinitron CPD-E220
44 pages
Print Icon
To Next Page IconTo Next Page
To Next Page IconTo Next Page
To Previous Page IconTo Previous Page
To Previous Page IconTo Previous Page
Loading...
5-3
5-4
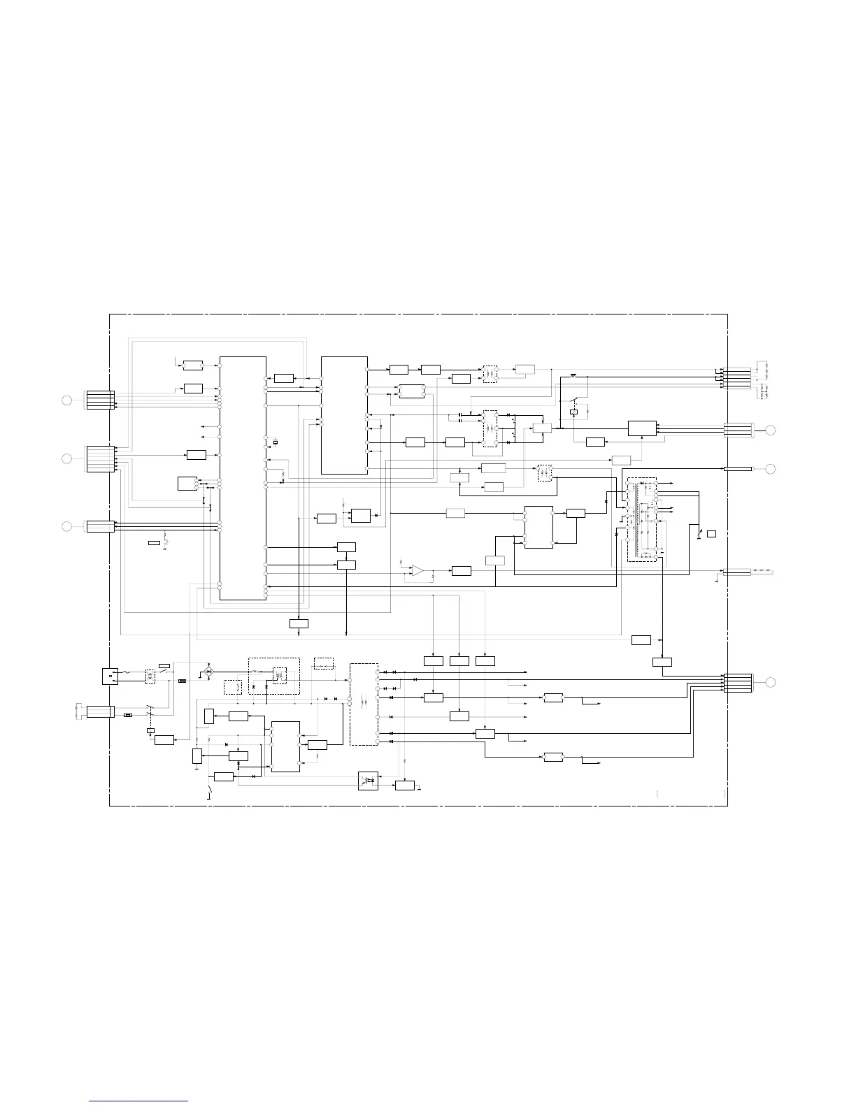
B-SS3562<NH.>-BD2-EPS05
CN902
1
+5V
IC903
RESET
IN
OUT
19
20
PD0/V SYNCO
34PA6
PD4/ITB
ABL/O
H_RETURN
24
17
18
19
16
14
8HDRV
5OUT
3FLYBACK
13VOUT1
12
IC401
V OUT
VOUT2
1HFLB
11EWDRV
5BIN
6BDRV
3BOP
32FOCUS
32OSCOUT
33
X901
24MHz
OSCIN
23PD3/ITA/VFBACK
BOP CONT
Q510, Q513
D517
+12V
1
3
SWITCHING
Q501
B DRIVE
Q515,516
H DRIVE
Q520,521
BUFF
Q526
H DRIVE
OUT
Q502
H DRIVE
Q523,527
H OUT
Q503
T503
L505
IC 501
DEFLECTION
CONTROL
IC901 CPU
H CENT
Q519
Q525, 534
H CENT
DRIVE
Q517,518
S CAP CHANGE
Q505, Q506, Q508,
Q524, Q536, Q537
TILT DRIVE
Q541, Q542
IC504
AMP
IC607
+12V REG
+12V
6PS5/PWM5
8
PC7/PWM7
7TEST
5SDA
6SCL
4
PC3/PWM3
9PB7/AIN3/PWM1
31PA7/BLANKOUT
35
PA5
10
PB6/AIN2/PWM0
36
PA4
HSYNCI
Reset
1
H DY(+)
CN501
2
H DY(+)
3
H DY(-)
4
H DY(-)
5
V DY(-)
6
V DY(+)
ROTATION+
µ-COM, DEFLECTION CONTROL,
DEFLECTION, HV, POWER SUPPLY
CN505
TILT(ROTATION)
COIL
ROTATION-
1
2
7
+V IN
1 HV
12
11
14
13
15
4
FV1
FV2
10
8
7
6
3
9
FV1 TO CRT
HV
TO CRT ANODE CAP
H.DY
V.DY
FV2 TO CRT
1
-V IN
VSYNC
21
PD1/H SYNCO
15
HSYNC
CLBL
HUNLOCK
SCL
SDA
VSYNCI
PD6/CLAMPOUT
PB1/SDAD
PB0/SCLD
26
28
22
27
PD2/C SYNCI
25
PD5/HFBACK
11
PB5/AIN1
PC0/HSYNCDIV
1
PB3/SDAI
IC902
EEP ROM
PB2/SCU
+81V
+200V
+6.3V
+16V
+12V
+5V
-16V
D601
AC RECT
TH601
LF601
LFT
RY601
RELAY DRIVE
Q615
A
G
K
IC606
A
G
K
IC604
SW
Q601
Q603
SW
Q611
D610
D629
D609
IC601
PWM CONTROL
8
7
Vcc
6
3
11
10
12
13
16
17
18
9
1
SWITCHING
Q602
IC602
VOLTAGE
FEED BACK
IC603
VOLTAGE
FEED BACK
3
V AEF
4 OSC
OUT
I SENSE
1
COMP
2FB
FB603
D626
D623
D604
D612
D613 D628
D631 D615
+16V SW
CONT
Q610
+16V SW
Q609
-16V SW
Q617
+6.3V SW
Q607
T603 PIT
D616
D617
D618
D622
TH602
PA3
37
PS6/PWM6
7
PA1/RDI
39
PA0/OCMP
42
PB4/AIN0
12
3
4
5
6
C SYNC BUFF
Q901
H SYNC BUFF
Q902
H-IN
V-IN
PCDET
SDA
SCL
DGC
AC-SOCKET
CN602
CN601
F601
1
NC 2
DGC
DGC
3
40
31
18
30
29
D
R
KA
S601
S602
POWER
SW901
RESET
L606
[E220E]
D627
JW106
T601
[E220]
IN OUT
1
3
IC605
+5V REG
IN OUT
TO A BOARD
CN303
C
5
1
3
4
6
CN305
ABL
+81V
+12V
+6.3V
+5V
5
1
3
4
6
CN603
ABL
+81V
+12V
+6.3V
+5V
-16V SW
CONT
Q616, Q618
+6.3V SW
CONT
Q608
ABL CONT
Q533
VR501
HV
ADJ
CN901
TO A BOARD
CN302
TO VIDEO CABLE
3
B
9
7
6
2
1
5
CLAMP
SOG
H_RTN
V_RTN
SDA/I
SCL/I
G1
CN903
MENU
ORANGE/LED
GREEN/LED
1
2
3
D
TO H BOARD
P701
3
1
2
+
T502
1
5
9
6
5 10
8
2
1 6
F
TO A BOARD
CN304
3
4
1
2
CN502
CS0
CS1
CS2
CS3
RY501
RELAY DRIVE
Q540
SW
Q511
E
TO A BOARD
CN309
1
CN504
1.2kV
SW
Q401
Q531
Q532,535
BOP CONT
Q532,535
5PC4/PWM4
ABL CONT
Q528, 529
A
T504
T501
FBT
5
11
7
DF AMP
Q514, Q543, Q544
DF AMP
Q504, Q530
IC502
8
6
3
V AEF
4OSC
OUT
I SENSE
1
COMP
2FB
Q538, 539
D509
D521
D511
D512
Q522
JW105
[E220]

Related product manuals