EasyManua.ls Logo

Space Pak LAHP48 - Section 4: Dimensions

Space Pak LAHP48
28 pages
Print Icon
To Next Page IconTo Next Page
To Next Page IconTo Next Page
To Previous Page IconTo Previous Page
To Previous Page IconTo Previous Page
Loading...
– 11 –
Model LAHP48 Air to Water Heat Pump — Installation, Operation & Maintenance Manual
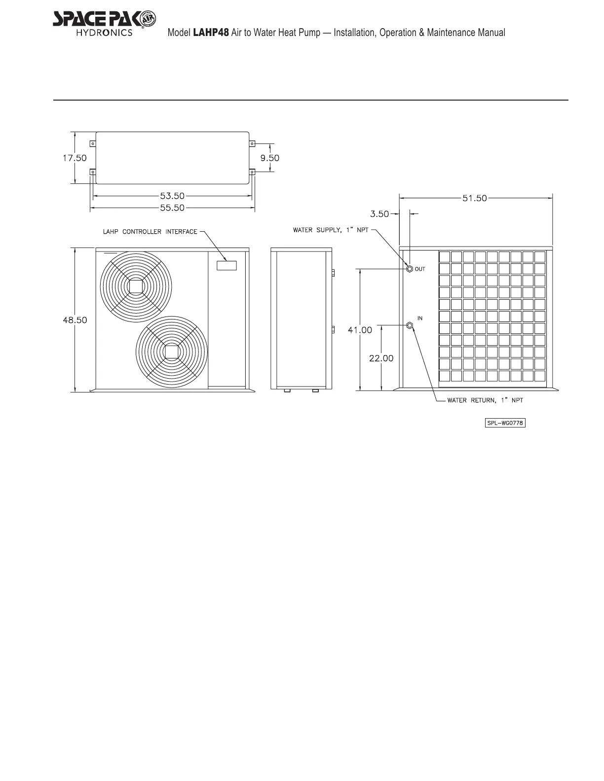
Figure 9 Model LAHP Dimensions (all dimensions in inches)
Section 4: Dimensions

Related product manuals