EasyManua.ls Logo

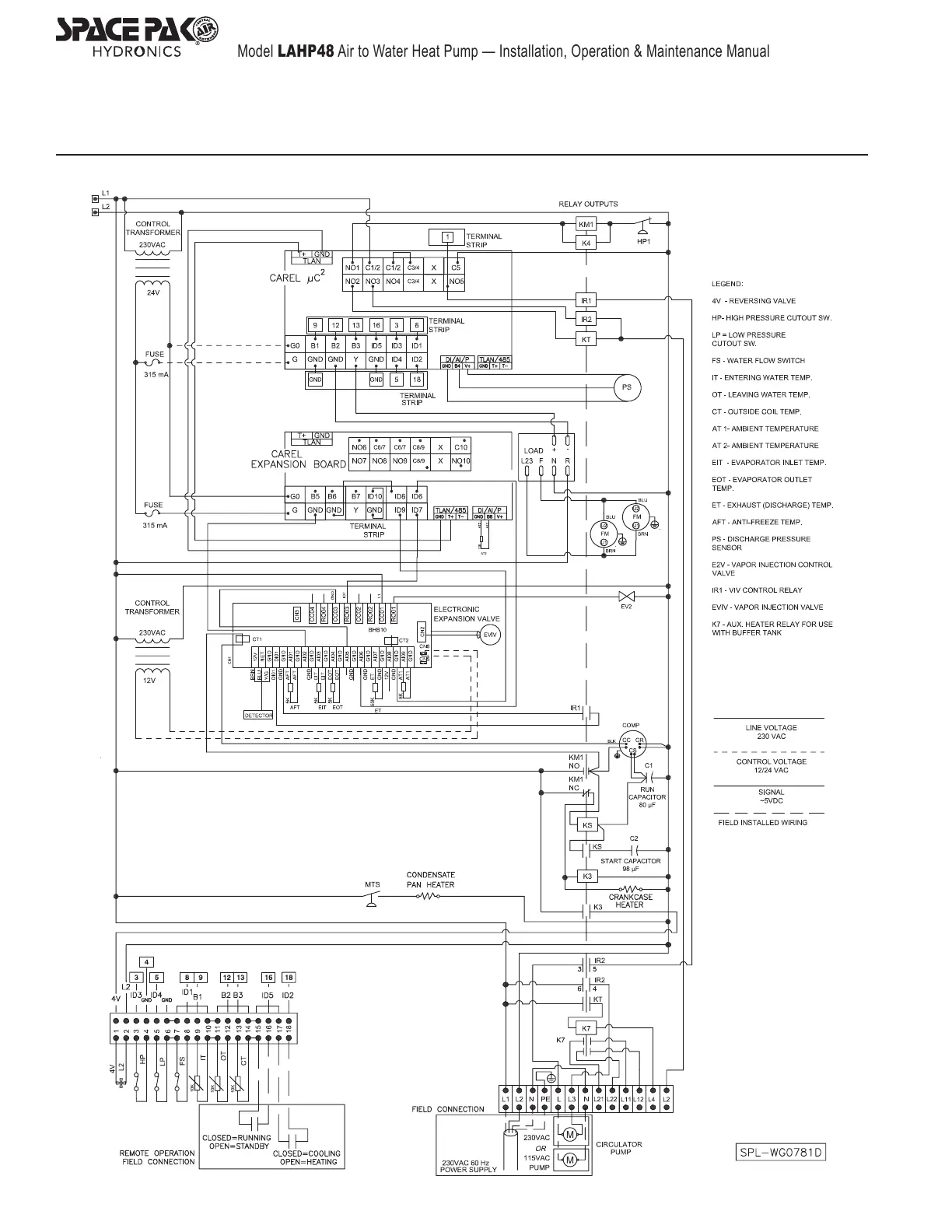
Space Pak LAHP48 - Figure 16 SpacePak LAHP Electrical Ladder Diagram

Space Pak LAHP48
28 pages
Print Icon
To Next Page IconTo Next Page
To Next Page IconTo Next Page
To Previous Page IconTo Previous Page
To Previous Page IconTo Previous Page
Loading...
– 18 –
Model LAHP48 Air to Water Heat Pump — Installation, Operation & Maintenance Manual
Figure 16 SpacePak LAHP Electrical Ladder Diagram
Section 9: Electrical Diagrams (continued)

Related product manuals