EasyManua.ls Logo

Spirax Sarco LC2250 - Page 15

Spirax Sarco LC2250
44 pages
Print Icon
To Next Page IconTo Next Page
To Next Page IconTo Next Page
To Previous Page IconTo Previous Page
To Previous Page IconTo Previous Page
Loading...
IM-P402-130 EMM Issue 9
15
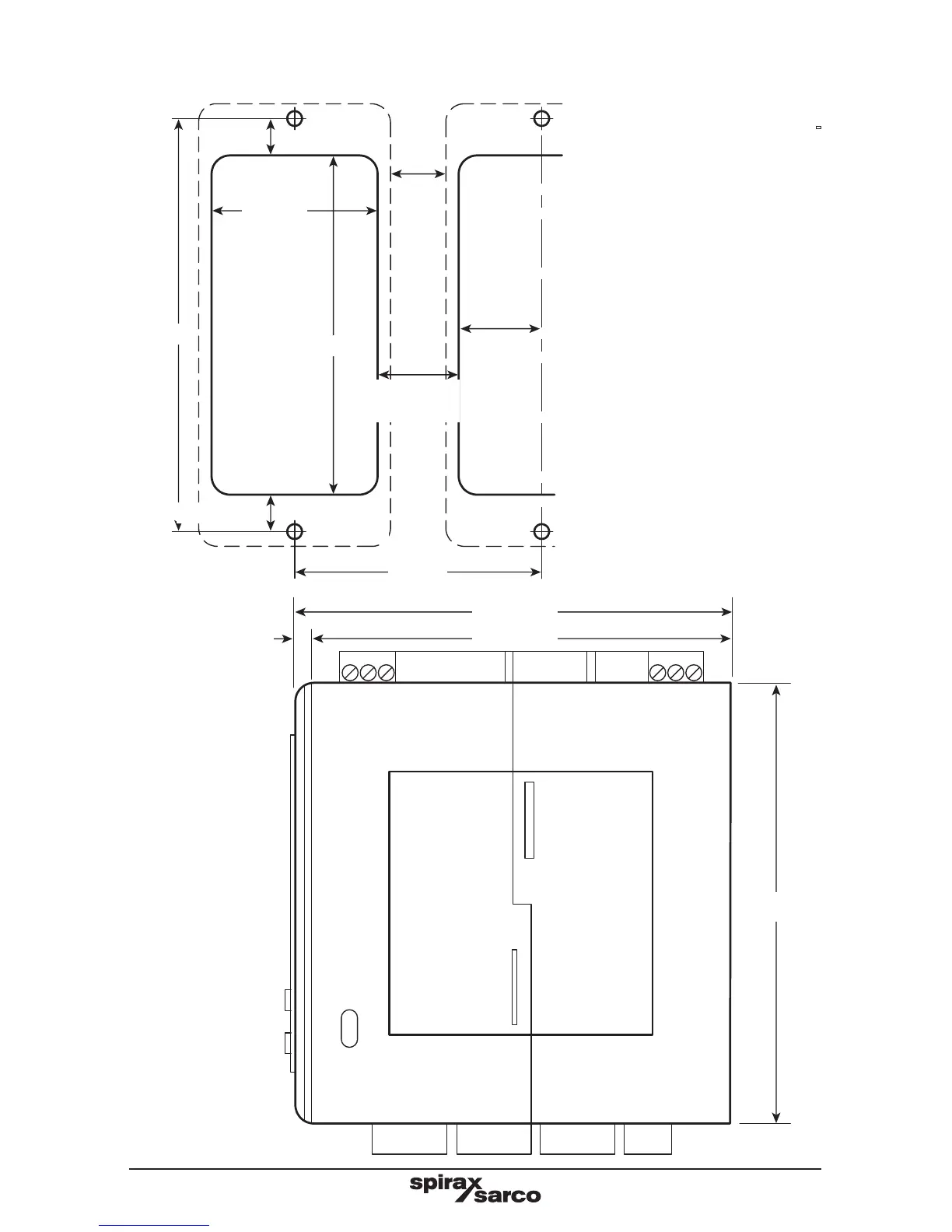
Ø 4.2 mm
10 mm
22
mm
Fig. 2
Chassis plate / panel -
cutout diagram
112 mm
67 mm
10 mm
45 mm
92 mm
22.5
mm
Ø 4.2 mm
15
mm
Ø 4.2 mm
Ø 4.2 mm
120 mm
8 mm
112 mm
120 mm

Related product manuals