EasyManua.ls Logo

SPX APV W+35/35 - Page 40

SPX APV W+35/35
Print Icon
To Next Page IconTo Next Page
To Next Page IconTo Next Page
To Previous Page IconTo Previous Page
To Previous Page IconTo Previous Page
Loading...
32
381616 ISS Q 11.2004
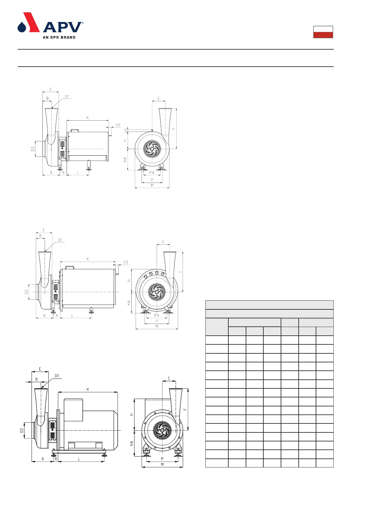
7. Wymiary pompy / Pump dimensions (W+50/600)
342295 ISS S 01.2005
200
225 250
TG. 5
TG. 6
280
315
180
289A
E
289 289 289 313 354
148 148 148 148 148 148
216
216 216 216 216 216
ø206
ø206 ø206 ø206 ø206 ø206
ø254,4 ø254,4 ø254,4 ø254,4 ø254,4 ø254,4
269
269 269 269 269 269
670 670 670 670 670 670
277
324 347 381 376 505
350
350 350 350 375 415
690
768 923 923 760 955
364
465 492 519 717 743
ø570 ø570 ø702,8 ø702,8 ø570 ø660
279
318 356 406 457 508
311 311 311 311 - -
112 112 112 117 93 67
B
C
D1
Rozmiar silnika / Motor size
W+50/600
TG. 4
F
D2
H
P
HA
K
L
PA
X
M
TG. 4
Silnik 180 - 225
TG. 5
Silnik 250
TG. 6
Silnik 280 - 315

Related product manuals