EasyManua.ls Logo

Standex MHHX035CC - Page 41

Default Icon
45 pages
Print Icon
To Next Page IconTo Next Page
To Next Page IconTo Next Page
To Previous Page IconTo Previous Page
To Previous Page IconTo Previous Page
Loading...
5/16 Rev. B 57-02497 41
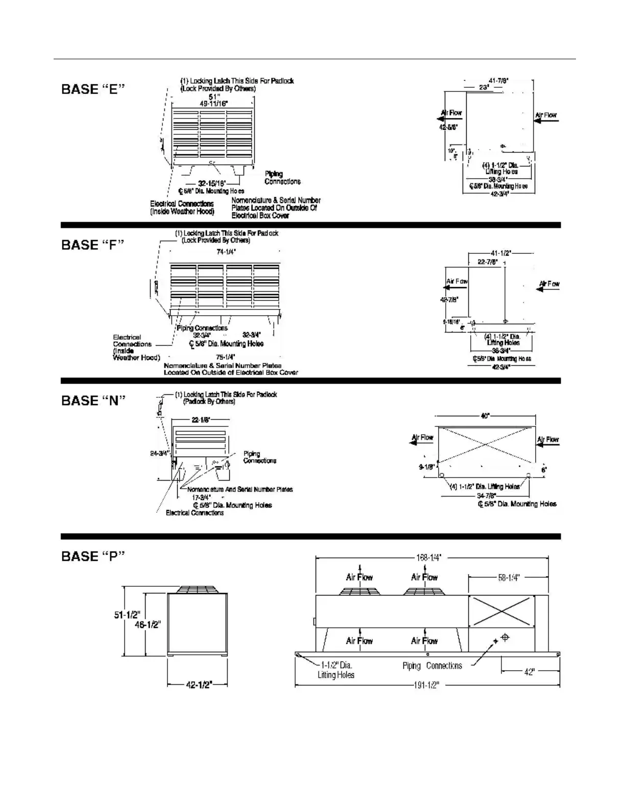
UNIT BASE SPECIFICATIONS (CONT.)

Related product manuals