EasyManua.ls Logo

Stanley COMERAGH - 50 - Heating System Components, Care, and Maintenance; By-Pass Loop and Safety Valve

Stanley COMERAGH - 50
24 pages
Print Icon
To Next Page IconTo Next Page
To Next Page IconTo Next Page
To Previous Page IconTo Previous Page
To Previous Page IconTo Previous Page
Loading...
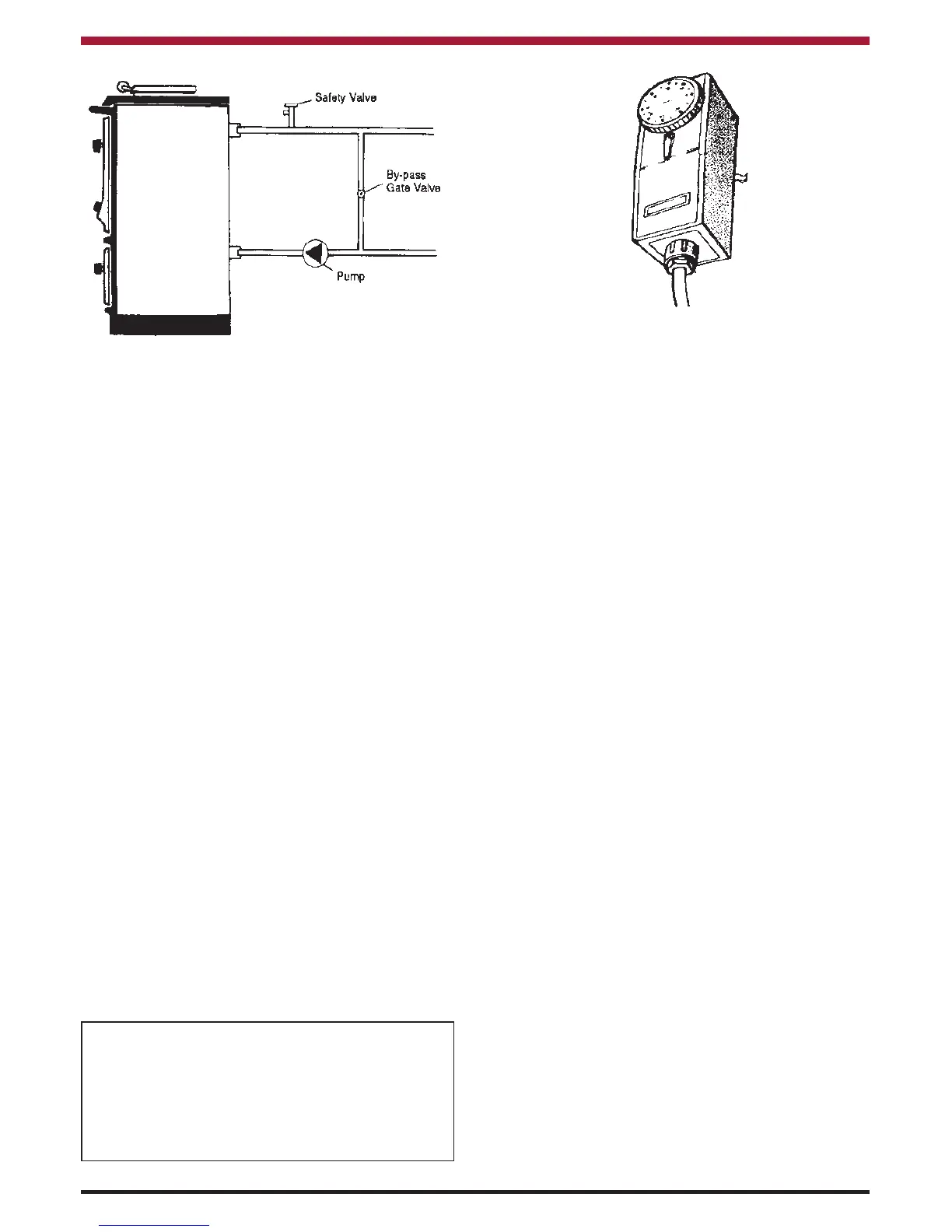
We strongly recommend the fitting of a by-pass loop
to prevent condensation forming in the boiler, this
should be balanced to avoid short circuiting of the
heating system.
A heat sink radiator/towel rail may be installed if
desired in addition to the by-pass loop.
BY-PASS LOOP
Fig.18
Fig.19
SAFETY VALVE
A non-adjustable 3 bar safety valve must be fitted to
the primary flow pipe adjacent to boiler connection
ensuring that any discharge will not create a hazard
to occupants or cause damage to electrical compo-
nents and wiring.
WATER CIRCUIT TEMPERATURE
The return water temperature must be maintained at
not less than 50
o
C (122
o
F) so as to avoid conden-
sation on the boiler and return piping. Fitting of a by-
pass loop, and a pipe thermostat to the flow pipe
and wiring it into the pump control will ensure rapid
circulation of the hot water to avoid premature burn-
er shut down being activated by the cooker thermo-
stat when the central heating circuit is in use.
PIPE THERMOSTAT
The fitting of a pipe thermostat to the common flow
pipe
within 150mm (6”) of the appliance is required
in order to activate the water circulation pump when
water in the boiler reaches 60 C. This will ensure
that return temperatures are maintained and allow
any residual heat to be dissipated to prevent possi-
ble overheating.
When the flow temperature falls below 60 C the pipe
thermostat will de-activate the circulating pump and
allow the cooker to operate. (See Fig. 19)
CARE FOR YOUR CENTRAL HEATING 
SYSTEM
We strongly recommend the use suitable corrosion
inhibitors and anti-freeze solution in your heating
system, in an effort to minimise black oxide, sludge
and scale build-up, which effects efficiency.
In hard water areas the use of a suitable limescale
preventer / remover is advised.
Use only quantities specified by the water treatment
product manufacturer. Only add to the heating sys-
tem after flushing and finally refilling. Refer to BS
7953.
INDIRECT DOMESTIC CYLINDER
The cooker must only be connected to an indirect
cylinder
of recommended size of 135-180 litres
using 28mm (1”) diameter flow and return piping. It
is recommended that the cylinder is lagged together
with pipework with runs in excess of 4 meters (12”).
NOTE: One radiator (normally the bathroom)
should be selected for use as as heat sink, and con-
nected to open circuit.
GENERAL MAINTENANCE
It is important that the user is familiar with their heat-
ing system and that they carry out regular checks
and maintenance which can limit unnecessary
breakdowns.
We recommend that you evaluate the overall insula-
tion in your house, i.e. attic, external walls, windows
and external doors. Insulation and draught proofing
can be greatly reduce running costs while equally
enhancing living conditions
14

Other manuals for Stanley COMERAGH - 50

Related product manuals