EasyManua.ls Logo

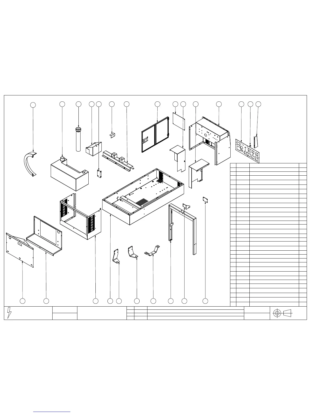
Stephill SSD8500 - SSD10000 Canopy Exploded View

Stephill SSD8500
18 pages
Print Icon
To Next Page IconTo Next Page
To Next Page IconTo Next Page
To Previous Page IconTo Previous Page
To Previous Page IconTo Previous Page
Loading...
11
3
1
20
8
24
6525
21 2218 19
16
23
14
13 4 9 7
17
15 1012
Part No Description Qty
1 024-0100 SSD10000 Skid base 1
1 024-0184 SSD8500S / SSD10000S Skid base 1
2 024-0101 SSD10000 D722 Engine foot service side 1
2 024-0194 SSD10000 Z602 Engine foot service side 1
3 024-0102 SSD10000 D722 Engine foot non service side 1
3 024-0195 SSD10000 Z602 Engine foot service side 1
4 024-0139 SSD10000 Mark 2 Access cover plate 1
5 024-0002 SSD10000 Dual voltage control panel 3110 1
6 024-0116 SSD10000 Control panel divider 1
7 024-0115 SSD10000 Alternator end panel 1
8 024-0125 SSD10000 Control panel cover catch 1
9 024-0106 SSD10000 Air inlet duct 1
9 024-0124 SSD10000 PE31 Air inlet duct 1
10 024-0107 SSD10000 Air inlet duct battery side 1
10 024-0122 SSD10000 PE31 Air inlet duct battery side 1
11 024-0150 SSD10000 PE32/NPE31 Alternator cowl 2
11 024-0181 SSD10000 PE28 Alternator cowl 2
12 024-0126 SSD10000 Battery bracket 1
13 024-0104 SSD10000 Battery tray 1
14 024-0154 SSD10000 Fuel tank filler hose 1
15 024-0112 SSD10000 Fuel tank bracket 2
16 024-0129 SSD10000 Fuel tank 1
17 024-0128 SSD10000 Radiator plate 1
18 024-0158 SSD10000 Radiator air outlet plate 1
19 024-0123 SSD10000 Engine end panel 1
20 024-0103 SSD10000 Door 2
20 024-0185 SSD8500S / 10000S Door 2
21 024-0138 SSD10000 Angled skid 4
22 024-0105 SSD10000 Lifting beam 1
23 024-0137 SSD10000 Fuel filter bracket 1
24 024-0199 SSD10000 Z602 Air filter plate 1
25 024-0198 SSD10000 Alternator channel NSM 1
2
Material
Description
Fax 01933 677916
Phone 01933 677911
Drawing Number
Drawn
SSD8500S/10000/10000S Canopy
ed.
Colour
24-167
R Golding
D 31/01/08 New drawing
Date
Revision
Issue
PROJECTION
Mild steel
N/A
STEPHILL GENERATORS
E New drawing21/09/10
C
ANGLE
exploded view
THIRD
Part numbers add09/01/08

Related product manuals