EasyManua.ls Logo

Sub-Zero 700TC - Page 14

Sub-Zero 700TC
44 pages
Print Icon
To Next Page IconTo Next Page
To Next Page IconTo Next Page
To Previous Page IconTo Previous Page
To Previous Page IconTo Previous Page
Loading...
14
|
Sub-Zero Customer Care 800.222.7820
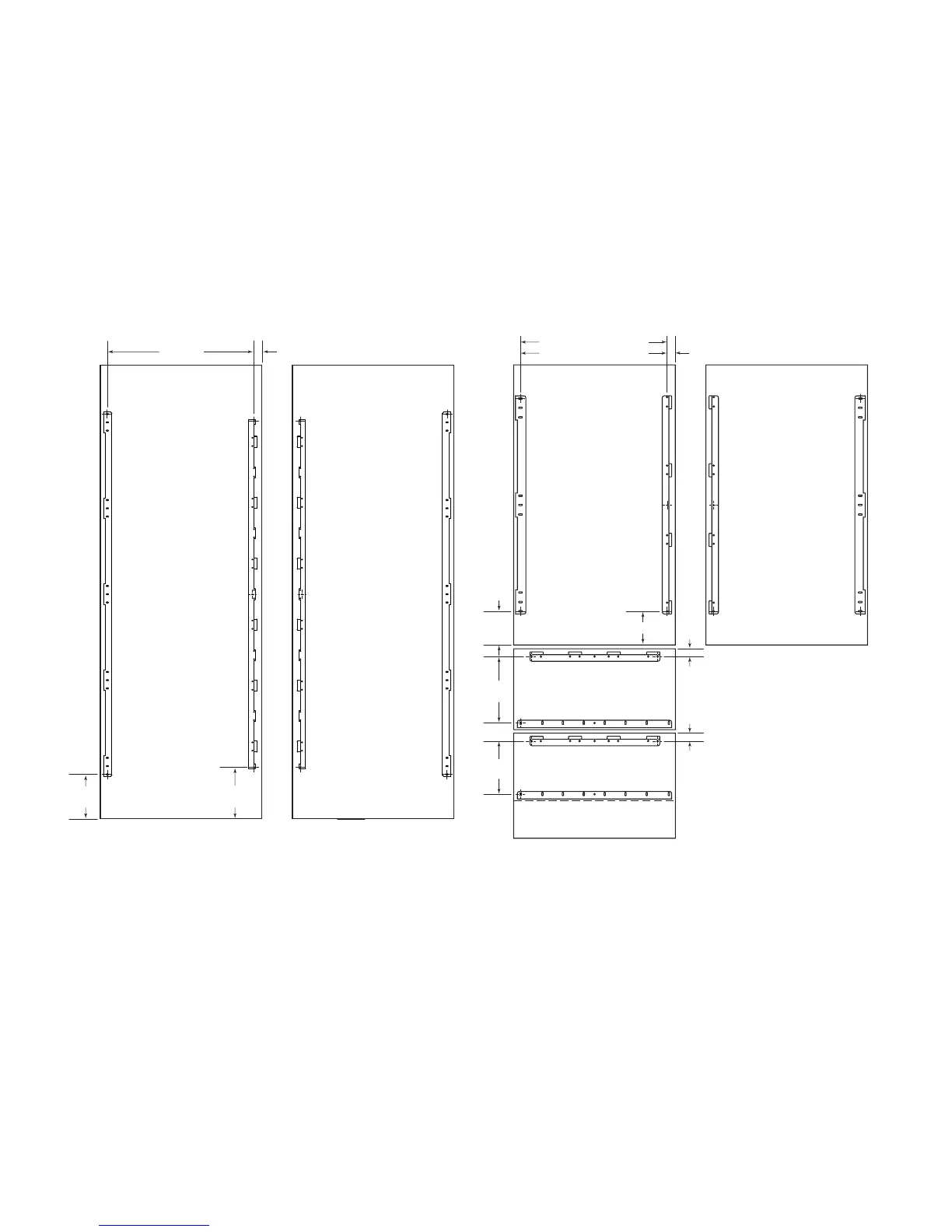
PANEL INSTALLATION
Panel Installation
PANEL MOUNTING BRACKETS
The illustrations below show placement of panel mounting
brackets. Dimensions are based on a 4"
(102) toe kick and a
1
/8" (3) reveal.
5
3
/16" (132)
5
5
/16"
(135)
8
7
/16"
(214)
11
5
/16"
(287)
1
1
/4"
(32)
1
1
/4"
(32)
23
7
/8" (606) FOR 27" UNITS
32
7
/8" (835) FOR 36" UNITS
LH DOOR SWING
BACK OF PANEL
RH DOOR SWING
BACK OF PANEL
BACK OF PANEL
BACK OF PANEL
1
7
/16" (37)
8
11
/16"*
(221)
7
3
/16"*
(183)
24" (610)
1
13
/16" (46)
LH DOOR SWING
BACK OF PANEL
RH DOOR SWING
BACK OF PANEL
*Dimensions are based on a 4" (102) toe kick.
Panel mounting brackets—column.
Panel mounting brackets—tall and drawer.

Other manuals for Sub-Zero 700TC

Related product manuals