EasyManua.ls Logo

Sullair 1109e - Decal Location

Sullair 1109e
102 pages
Print Icon
To Next Page IconTo Next Page
To Next Page IconTo Next Page
To Previous Page IconTo Previous Page
To Previous Page IconTo Previous Page
Loading...
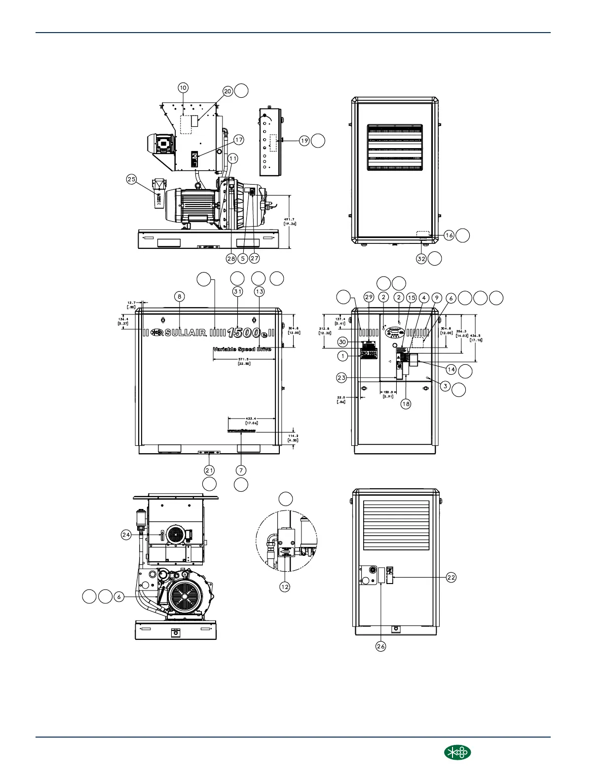
7.15
DECAL LOCATION
02250157-768R004
A1
A2
A3
A7
A10
A7
A7 A9
A8
A8
A6
A6
A5 A9 A11
A9
A12
A7
A7
A11A4
SECTION 7
82
1100e, 1500e, 1800e Operator’s Manual and Parts List
®SULLAIR®

Table of Contents

Other manuals for Sullair 1109e

Related product manuals