EasyManua.ls Logo

Sullair LS-20S - DESCRIPTION; Introduction to Sullair Compressors; Component Identification

Sullair LS-20S
102 pages
To Next Page IconTo Next Page
To Next Page IconTo Next Page
To Previous Page IconTo Previous Page
To Previous Page IconTo Previous Page
Loading...
Section 2
DESCRIPTION
5
2.1 INTRODUCTION
Your new Sullair lubricated rotary screw air com-
pressor will provide you with a unique experience in
improved reliability and greatly reduced mainte-
nance.
Compared to other types of compressors, the Sul-
lair rotary screw is unique in mechanical reliability,
with “no wear” and “no inspection” required of the
working parts within the compressor unit.
Read S ec t ion 7 ( M aint enanc e) t o s ee how s ur pr is -
ingly easy it is to keep your air compressor in top op-
erating condition. Should any questions arise which
cannot be answered in the following text, call your
nearest Sullair representative or the Sullair Corpo-
ration Service Department (see back cover).
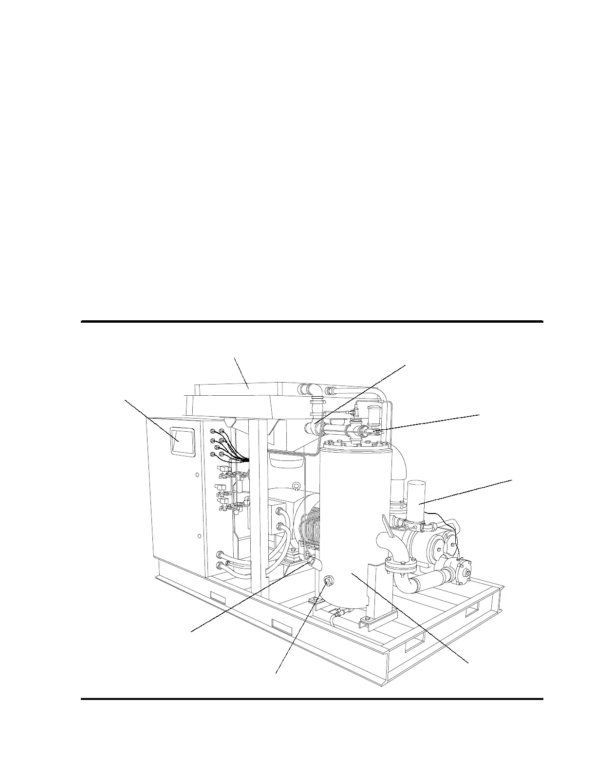
2.2 DESCRIPTION OF COMPONENTS
Ref er t o F igur e 2 -- 1. T he c om ponent s and as s em -
blies of the air compressors are clearly shown. The
complete package includes
compressor
,
electric
motor
,
compressor inlet system
,
compressor
discharge system
,
compressor cooling and lu-
brication system
,
capacity control system
, and
Supervisor control system
, all mounted on a
heavy gauge steel frame.
On air--cooled models, a separate motor--driven fan
forces air through the cooler/aftercooler assembly,
thereby removing the heat of compression from the
cooling fluid.
On water--cooled models, fluid is piped into a four--
pass exchanger where the heat of compression is
removed from the fluid. A fan is used to supply suffi-
cient ventilating air to the compressors equipped
with a canopy.
Both air--cooled and water--cooled versions have
easily accessible items such as the fluid filters and
control valves. The inlet air filters are also mounted
for easy access and servicing.
FLUID COOLER/
AFTERCOOLER
MINIMUM PRESSURE/
CHECK VALVE
BLOWDOWN
VALVE
FLUID
FILTER
SUMP
TANK
SUPERVISOR II
PANEL
FLUID LEVEL
SIGHT GLASS
Figure 2-1 Sullair Series LS-20S 150HP/ 110KW Rotary Screw Compressor (Air-cooled version)
FLUID FILL
PLUG

Table of Contents

Related product manuals