EasyManua.ls Logo

Summit TX25H - Safety Notes and Guidelines; Safety Sign Guidelines and Labels

Summit TX25H
30 pages
Print Icon
To Next Page IconTo Next Page
To Next Page IconTo Next Page
To Previous Page IconTo Previous Page
To Previous Page IconTo Previous Page
Loading...
I T L S E R V I C E M A N U A L
H-13
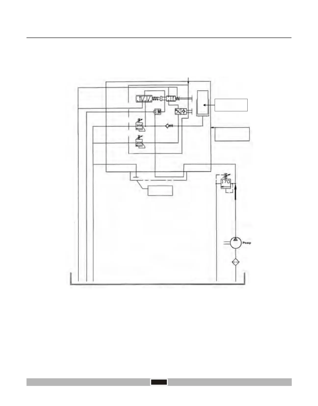
H 5.2 CIRCUIT DIAGRAM OF HYDRAULIC LIFTING DEVICE
HYDRAULIC SYSTEM
Rockshaft
Sollevatore
Cover End
Cylinder
Rockshaft

Other manuals for Summit TX25H