EasyManua.ls Logo

Superior Fireplaces DRT40STDMN - Horizontal Termination System; Sv4.5 L6;12;24;36;48; Vent Sections; When Using Secure Flex, Use Firestop;Spacer SF4.5 VF

Default Icon
68 pages
Print Icon
To Next Page IconTo Next Page
To Next Page IconTo Next Page
To Previous Page IconTo Previous Page
To Previous Page IconTo Previous Page
Loading...
23
NOTE: DIAGRAMS & ILLUSTRATIONS ARE NOT TO SCALE.
Installation and Operation Instructions
900299-00, 05/2016
Innovative Hearth Products
DRT40 Multi-View Series Direct-Vent Gas Fireplace
The unitized design of the Secure Vent compo-
nents will engage and seal both the inner and
outer pipe elements with the same procedure.
Sealant and securing screws are not required.
NOTE: An elbow may also be attached to the
appliance collar. Attach in the same manner as
you would a vent section.
E. Attach vent components to each other - Other
vent sections may be added to the previously
installed section in accordance with the require-
ments of the vent tables. To add another vent
component to a length of vent run, align the
dimpled end of the component over the inclined
channel end of the previously installed section,
adjusting the radial alignment until the four lock-
ing dimples are aligned with the inlets of the four
incline channels of the previous section. Push
the vent component against the previous section
until it fully engages, then twist the component
clockwise running the dimples down and along
the incline channels until they seat at the end of
the channels. This seating position is indicated
by the alignment of the arrow and dimple as
shown in Figure 28 on Page 19.
F. Install firestop/spacer at ceiling -
When using Secure Vent, use SV4.5VF firestop/
spacer at ceiling joists; when using Secure Flex,
use SF4.5VF firestop/spacer. If there is living
space above the ceiling level, the firestop/
spacer must be installed on the bottom side of
the ceiling. If attic space is above the ceiling,
the attic insulation shield must be installed on
the top side of the joist. Route the vent sections
through the framed opening and secure the
firestop/spacer with 8d nails or other appropriate
fasteners at each corner.
Remember to maintain 1" (26 mm) clearance
to combustibles, framing members, and attic
or ceiling insulation when running vertical
chimney sections.
HORIZONTAL (OUTSIDE WALL)
TERMINATION SYSTEM
Figures 40, and Figures 43 to 48 on Pages
25 to 27 and their associated Horizontal Vent
Table illustrate the various horizontal venting
configurations that are possible for use with
these appliances. Secure Vent
®
pipe applica-
tions are shown in these figures; Secure Flex
®
pipe may also be used. A Horizontal Vent Table
summarizes each system’s minimum and
maximum vertical and horizontal length values
that can be used to design and install the vent
components in a variety of applications.
Both of these horizontal vent systems terminate
through an outside wall. Building Codes limit
or prohibit terminating in specific areas. Refer
to Figure 6 and Page 7 for location guidelines.
Secure Vent SV4.5 Direct-Vent system compo-
nents are unitized concentric pipe components
featuring positive twist lock connection, (refer
to Figure 28 on Page 19). All of the appliances
covered in this document are fitted with collars
having locking inclined channels. The dimpled
end of the vent components fit over the appliance
collar to create the positive twist lock connection.
A. Plan the vent run -
Analyze the vent routing and determine the
types and quantities of sections required
4-1/2" (114 mm), 10-1/2" (267 mm), 22-1/2" (572
mm), 34-1/2" (876 mm) and 46-1/2" (1181 mm) net
section lengths are available. It is recommended
that you plan the venting so that a joint does not
occur in the ceiling or roof joists. Allow for elbows
as indicated in Figure 30 on Page 18.
Maintain a minimum 1" (26 mm) clearance to
combustibles on the vertical sections. Clearances
for the horizontal runs are; 3" (77 mm) on top, 1"
(26 mm) on sides, and 1" (26 mm) at the bottom.
B. Frame exterior wall opening -
Locate the center of the vent outlet on the exterior
wall according to the dimensions shown in Figures
13, through 16 on Page 13. Cut and/or frame an
opening, 10-1/2" x 12-1/8" (267 mm x 308mm)
inside dimensions, about this center.
C. Frame ceiling opening - If the vertical route
is to penetrate a ceiling, use plumb line to locate
the center above the appliance. Cut and/or frame
an opening, 10-1/2" x 10-1/2" (267 mm x 267
mm) inside dimensions, about this center (refer
to Figure 26 on Page 19).
D. Attach vent components to appliance - To
attach a vent component to the appliance collar,
align the dimpled end over the collar, adjusting the
radial alignment until the four locking dimples are
aligned with the inlets of the four incline channels
on the collar (refer to Figure 27 on Page 19).
Push the vent component against the collar until it
fully engages, then twist the component clockwise,
running the dimples down and along the incline
channels until they seat at the end of the channels.
G. Support the vertical run sections -
On the vertical run, support the venting sys-
tem every 8 feet (2.4m) above the fireplace
vent outlet with field-provided support straps
(Plumber's tape). Attach the straps to the vent
pipe and secure to the framing members with
nails or screws. See Figure 29 on Page 19.
H. Change vent direction - At transition
from or to a horizontal/inclined run, install the
SV4.5E45 and SV4.5E90 elbows in the same
manner as the straight vent sections. The
elbows feature a twist section to allow them
to be routed about the center axis of their
initial collar section to align with the required
direction of the next vent run element. Twist
elbow sections in a clockwise direction only
so as to avoid the possibility of unlocking any
of the previously connected vent sections.
See Figure 30 on Page 18.
I. Continue installation of horizontal/inclined
sections - Continue with the installation of the
straight vent sections in horizontal/inclined run
as described in Step E. Install support straps
every 5 ft. (1.52 m) along horizontal/inclined
vent runs using conventional plumber’s tape.
See Figure 40, it is very important that the
horizontal/inclined run be maintained in a
straight (no dips) and recommended to be in
a slightly elevated plane, in a direction away
from the fireplace of 1/4" rise per foot (20 mm
per meter) which is ideal, though rise per foot
run ratios that are smaller are acceptable all the
way down to at or near level. Use a carpenter’s
level to measure from a constant surface and
adjust the support straps as necessary.
It is important to maintain the required clear-
ances to combustibles: 1" (26 mm) at all sides
for all vertical runs; and 3" (77 mm) at the
top, 1" (26 mm) at sides, and 1" (26 mm) at
the bottom for all horizontal/inclined runs.
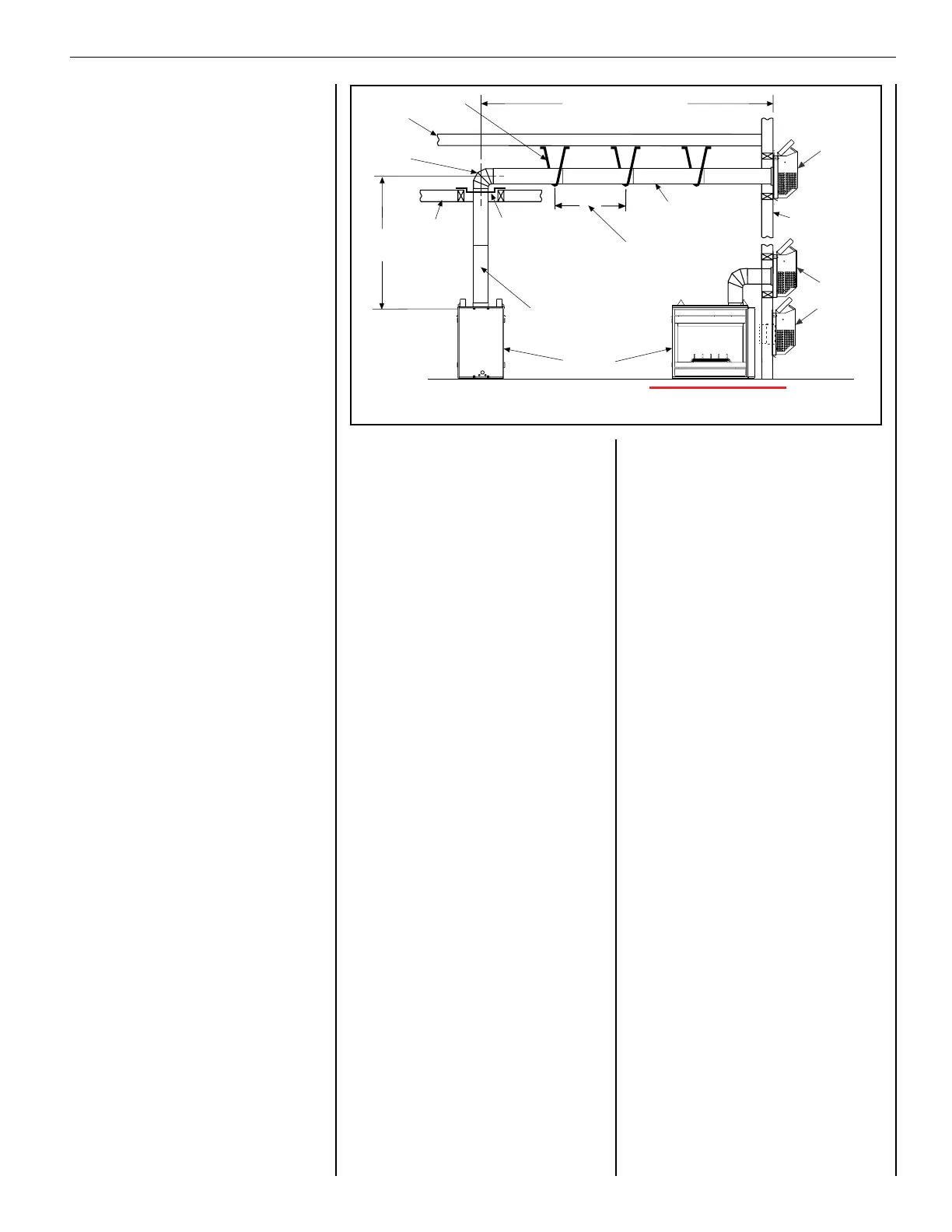
Figure 40 - TYPICAL HORIZONTAL VENT INSTALLATION
Horizontal / Inclined Run
Support
Brackets
Building
Support
Framing
SV4.5E90
Elbow
Ceiling
u Firestop / Spacer
SV4.5VF
u When Using Secure Flex,
Use Firestop / Spacer SF4.5VF
Fireplace
SV4.5L6/12/24/36/48
Vent Sections
Vertical
Rise
SV4.5HT-2
Termination
Shown
Support Bracket Spacing
Every 5 ft (1.52 m)
Exterior
Wall
SV4.5HT-2
Termination
Shown
Shown With Optional Radiant Panels
See Figure 29 on Page 17 for
vertical vent section support.

Table of Contents

Related product manuals