EasyManua.ls Logo

Supermicro X7DB8-X - Universal Serial Bus (USB); Chassis Intrusion

Supermicro X7DB8-X
131 pages
To Next Page IconTo Next Page
To Next Page IconTo Next Page
To Previous Page IconTo Previous Page
To Previous Page IconTo Previous Page
Loading...
Chapter 2: Installation
2-15
GLAN1
®
S
UP
ER X7DB8/E-X
GLAN2
8-pin P WR
FP Ctrl
SPK
PW LED
JOH1
F
a
n
3
IDE1
F
lop
p
y
B
IO
S
320 S C S I C hannel A
F
a
n
4
S
A
TA
1
SA
TA
0
U
SB
2
/
3
S
MB
PCI-X 100 M
H
z
(Z
CR
-
X
7
D
B8 o
n
ly)
P
CI-X 1
3
3M
H
z
JWD
B
a
t
te
r
y
V
G
A
C
T
R
L
No
r
t
hB
rid
g
e
V
G
A
C
OM1
U
SB
0
/
1
KB/
M
ou
s
e
F
an
6
F
an
5
ATX
P
WR
4
-Pin
P
W
R
J3P
2
4-P
in
J
PG
1
SCSI CTRL
CP
U
1
CP
U2
So
u
th
Br
idge
PX
H
DIMM 1A (B ank 1)
F
an
7
JAR
PSF
L
E
1
J
P
A
2
JPA
3
J
PA1
320 S C S I C hannel B
SATA
3
S
A
TA
2
SATA
4
SATA
5
J
L
1
J
K1
Slot1
S
l
ot
2
S
l
ot3
P
CI-X 1
3
3
M
Hz
S
l
ot4
JPL1
J
P
L
2
S
l
ot5
S
l
ot6
SIMLP IPMI
Sl
ot
7
DIMM 1B (B ank 1)
DIMM 2A (B ank 2)
DIMM 2B (B ank 2)
DIMM 3A (B ank 3)
D
IMM 3
B(Ban
k3)
DIMM 4A (B ank 4)
DIMM 4B (B ank 4)
J
BT
1
US
B4
J
WOR1
CO
M
2
DA
2
W
O
L
DA
1
S
I
/O
JP1
L
AN
CT
RL
J27
J
28
SGPI
O1
SGPI
O2
SMBPS
P
C
I
-
X
100 M
Hz
P
C
I
-
X
100 M
Hz
P
C
I
-
X
133 M
H
z
Video
Memory
PX
H
F
a
n
8
F
a
n
2
F
a
n
1
Buzzer
5000P
ESB2
Adaptec 7902
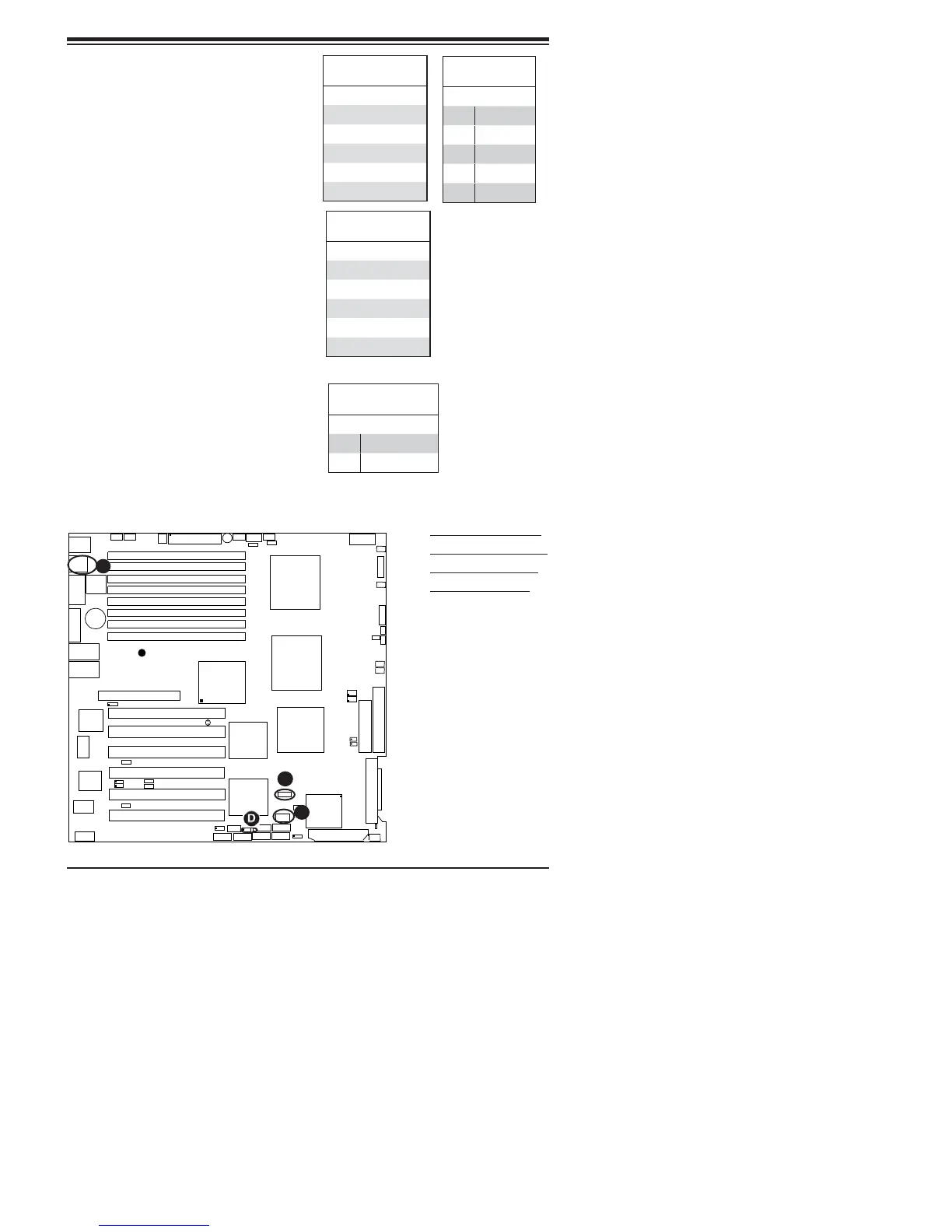
Universal Serial Bus (USB)
There are fi ve USB 2.0 (Universal
Serial Bus) ports/headers on the
motherboard. Two of them are Back
Panel USB ports (USB#0/1:JUSB1),
and the other three are Front Panel
USB headers (USB#2/3:JUSB2,
USB#4: JUSB3). See the tables on
the right for pin defi nitions.
Chassis Intrusion
A Chassis Intrusion header is located
at JL1 on the motherboard. Attach an
appropriate cable from the chassis to
inform you of a chassis intrusion when
the chassis is opened.
Chassis Intrusion
Pin Defi nitions (JL1)
Pin# Defi nition
1 Intrusion Input
2 Ground
A
B
C
A. Backpanel USB 0-1
B. Front Panel USB 2-3
C. Front Panel USB 4
D. Chassis Intrusion
Back Panel USB
(USB0/1)
Pin# Defi nitions
1 +5V
2PO-
3PO+
4 Ground
5N/A
Front Panel USB
(USB2/3)
Pin# Defi nition
1 Vcc
2Data-
3Data+
4 Ground
5NA
Front Panel USB
(USB4)
Pin# Defi nitions
1 +5V
2PO-
3PO+
4 Ground
5Key

Table of Contents

Related product manuals