EasyManua.ls Logo

Supermicro X7DB8-X - SCSI Controller Enable;Disable (X7 DB8-X Only); SCSI Termination Enable;Disable (X7 DB8-X Only)

Supermicro X7DB8-X
131 pages
To Next Page IconTo Next Page
To Next Page IconTo Next Page
To Previous Page IconTo Previous Page
To Previous Page IconTo Previous Page
Loading...
2-26
X7DB8-X/X7DBE-X User's Manual
GLAN1
®
S
U
P
ER X7
DB8/E
-X
GLAN2
8-pin PWR
FP Ctrl
SPK
PW LED
JOH1
F
an3
I
D
E
1
F
l
o
p
p
y
BI
OS
320 S C S I C hannel A
Fan4
SAT
A
1
S
A
TA
0
USB 2/
3
S
MB
PC
I
-X 100 MHz(ZC
R
-X7
D
B
8only
)
PC
I
-
X1
33 M
H
z
J
W
D
B
a
t
t
ery
VGA
C
T
R
L
Nor
th
Br
i
dge
VGA
COM1
U
S
B0
/
1
K
B
/
M
o
u
se
Fan6
Fan5
ATX P
W
R
4-Pin
PWR
J3P
24-Pin
J
PG
1
SCSI CTRL
CPU1
CPU2
So
u
th
Brid
g
e
P
X
H
D
IM
M
1A (B ank 1)
Fan7
JAR
PSF
L
E
1
J
P
A
2
J
P
A
3
J
PA1
320 S CS I C hannel B
SAT
A
3
SATA2
SAT
A
4
SAT
A
5
J
L
1
JK1
Sl
o
t1
Sl
o
t2
Slot
3
PC
I
-
X1
33 M
H
z
Sl
o
t4
J
P
L1
J
P
L2
Sl
ot
5
Sl
ot
6
SIMLP IPMI
Sl
ot
7
DIM
M
1
B
(B
an
k1)
D
I
MM
2A
(B
ank 2)
DIM
M
2
B
(B
an
k2)
D
IMM 3A (B ank 3)
DIM
M
3
B
(B ank 3)
D
IMM 4A (B ank 4)
DIMM 4
B
(B ank 4)
J
BT
1
US
B4
JWOR
1
C
OM
2
D
A
2
WOL
D
A
1
SI
/O
JP1
L
A
N
C
T
R
L
J27
J28
S
G
P
I
O
1
S
GPI
O
2
SMBPS
PC
I
-
X1
0
0
MH
z
PC
I
-
X1
00 MH
z
P
C
I
-
X 133
MH
z
Video
Memory
P
X
H
Fan8
F
an2
F
an1
Buzzer
5000P
ESB2
Adaptec 7902
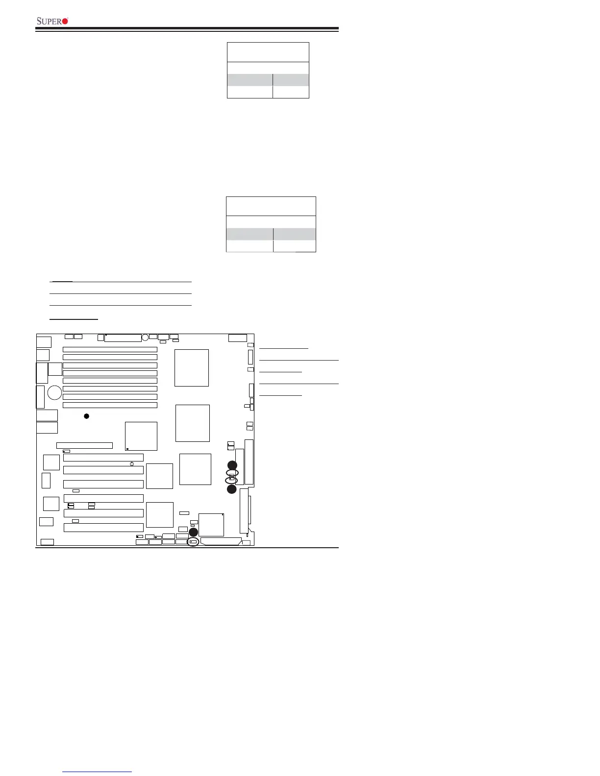
A
A. SCSI Enable
B. SCSI Channel A Termi-
nation Enable
C. SCSI Channel B Termi-
nation Enable
SCSI Controller Enable/
Disable (*X7DB8-X Only)
Jumper JPA1 is used to enable or disable
the LSI SCSI controller. The default set-
ting is on pins 1-2 to enable SCSI. See
the table on the right for jumper settings.
SCSI Termination Enable/
Disable (*X7DB8-X Only)
Jumpers JPA2/JPA3 are used to enable
or disable termination for SCSI Channel
A (JPA2) and Channel B (JPA3) con-
nectors. The default setting is open to
enable termination. See the table on the
right for jumper settings.
*Note: In order for the SCSI drives to
function properly, please do not change
the default setting (enabled) set by the
manufacturer.
SCSI Term. Enable/Disable
Jumper Settings
Jumper Setting Defi nition
Open Enabled
Closed Disabled
B
C
SCSI Enable/Disable
Jumper Settings (JPA1)
Jumper Setting Defi nition
Pins 1-2 Enabled
Pins 2-3 Disabled

Table of Contents

Related product manuals