EasyManua.ls Logo

Supermicro X7DB8-X - Power Fault (PWR Supply Failure); Alarm Reset

Supermicro X7DB8-X
131 pages
To Next Page IconTo Next Page
To Next Page IconTo Next Page
To Previous Page IconTo Previous Page
To Previous Page IconTo Previous Page
Loading...
2-20
X7DB8-X/X7DBE-X User's Manual
GLAN1
®
S
UPER X7DB8/E-
X
GLAN2
8-pin P WR
FP Ctrl
SPK
PW LED
JOH1
F
an3
I
D
E1
F
lo
p
p
y
BIOS
320 S C S I Channel A
Fan4
SA
T
A
1
SA
TA
0
U
SB
2
/
3
SMB
P
CI-X100
MHz
(ZCR
-
X7DB8 o
n
ly
)
PC
I
-
X1
3
3
M
H
z
JW
D
B
at
t
e
r
y
VG
A
CTRL
North
B
ridge
VGA
C
OM
1
U
SB0/1
KB/
M
ous
e
Fan6
Fan5
AT
XPWR
4-Pi
n
P
WR
J3P
2
4-Pin
J
PG
1
SCSI CTRL
CP
U1
CP
U2
So
u
th
Bridge
P
XH
D
IMM 1
A
(B ank 1
)
Fa
n7
JAR
PSF
LE1
J
P
A
2
J
P
A
3
J
PA
1
320 S C S I Channel B
SA
T
A
3
SA
T
A
2
SA
T
A
4
SA
T
A
5
J
L1
J
K1
Sl
o
t1
Sl
o
t2
S
l
o
t3
P
C
I
-
X1
3
3
MH
z
Sl
o
t4
JPL
1
J
PL
2
Sl
o
t5
Sl
o
t6
SIMLP IPMI
S
l
o
t
7
DIMM 1
B
(
Ban
k1)
D
IMM 2
A
(B ank 2
)
DI
M
M2B
(
Bank 2
)
D
IMM 3
A
(B ank 3
)
D
I
M
M3B
(
Bank 3
)
D
IMM 4
A
(B ank 4
)
DIMM 4B (B
an
k4)
J
BT1
US
B4
JWOR1
COM2
D
A
2
WOL
D
A
1
SI/
O
JP1
LAN
CTRL
J
2
7
J
2
8
SGP
I
O1
S
G
P
IO
2
SMBPS
P
CI
-
X100
M
H
z
P
C
I
-
X1
0
0
MH
z
P
C
I
-
X
13
3
MHz
Video
Memory
PXH
F
an8
F
an2
Fan1
Buzzer
5000P
ESB2
Adaptec 7902
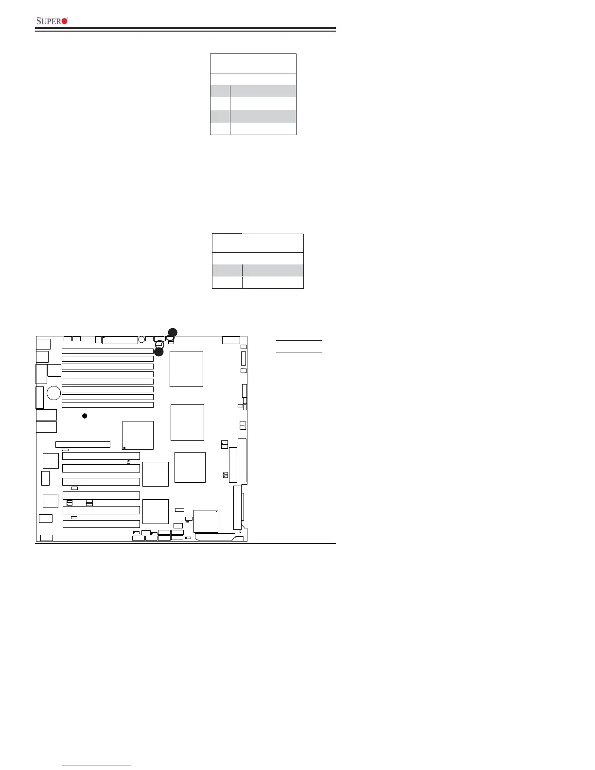
Power Fault (PWR Supply
Failure)
Connect a cable from your power
supply to the Power Fail (PSF) header
(JP3) to provide a warning in the
event of a power supply failure. This
warning signal is passed through the
PWR_LED pin to indicate of a power
failure on the chassis. See the table
on the right for pin defi nitions.
Note: This feature is only available when using
Supermicro redundant power supplies.
Alarm Reset
If three power supplies are installed
and Alarm Reset (JAR) is enabled, the
system will notify you when any of the
three power modules fails. Connect
JAR to a micro-switch to enable you
to turn off the alarm that is activated
when a power module fails. See the
table on the right for pin defi nitions.
PWR Supply Fail LED
Pin Defi nitions
Pin# Defi nition
1 PWR 1: Fail
2 PWR 2: Fail
3 PWR 3: Fail
4 Signal: Alarm Reset
Alarm Reset
Pin Setting Defi nition
Pin 1 Ground
Pin 2 +5V
A
B
A. Power Fault
B. Alarm Reset

Table of Contents

Related product manuals