EasyManua.ls Logo

Supero SUPER 370SBA - Page 17

Default Icon
92 pages
Print Icon
To Next Page IconTo Next Page
To Next Page IconTo Next Page
To Previous Page IconTo Previous Page
To Previous Page IconTo Previous Page
Loading...
Chapter 1: Introduction
1-7
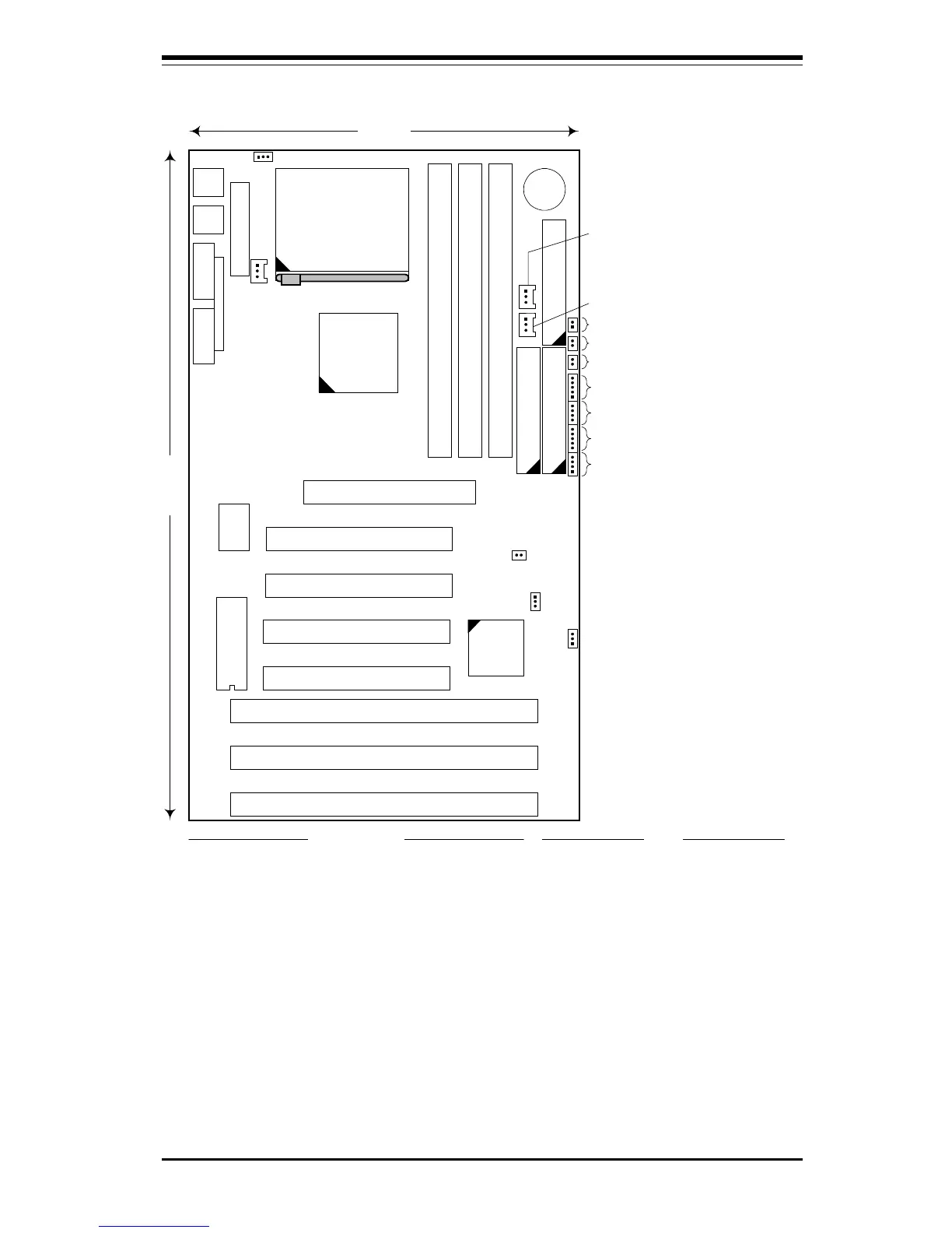
Figure 1-6. SUPER 370SLA Motherboard Layout
12 inches
7 inches
Super
l
370SLA
ISA 1
ISA 2
ISA 3
PCI 1
PCI 2
PCI 3
PCI 4
AGP
Super
I/O
DIMM - BANK 2
DIMM - BANK 1
DIMM - BANK 0
IDE 1
IDE 2 Floppy
Battery
1
1 1
440LX
Chipset
1
PIIX4EB
1
Keybd
---------
Mouse
USB
COM 1COM 2
LPT 1
JPWAKE (see Note 1)
JT1 - CPU FAN
JOH (OVERHEAT LED)
RESET SW
POWER ON LED
IR CON (INFRARED PORT)
SPEAKER
KEYLOCK
IDE LED
JL1 - CHASSIS
INTRUSION SW
JBT1 - CMOS CLEAR
JT3 - THERMAL CTL FAN
JT2 - CHASSIS FAN
(see Note 2)
BIOS
ATX Power
Celeron
Processor
(PPGA package)
1
Jumper Settings
JPWAKE: 1-2 Disable Keyboard Wake-Up (default)
2-3 Enable Keyboard Wake-Up (see Note 1)
JBT1: 1-2 Normal
2-3 CMOS Clear
Notes
1
To enable Keyboard Wake-Up, set
JPWAKE jumper to 2-3
and
ENABLE
Keyboard Wake-Up function in
system BIOS.
2
Chassis Intrusion Switch (JL1) is
normally open. If connected to
chassis switch, removing chassis
cover causes switch input to close.
3
No CPU jumper settings are required
for the Celeron (333/366 MHz)
processor. The settings are preset
(fixed bus ratio) in the processor.
WOL
1
1
1

Table of Contents

Other manuals for Supero SUPER 370SBA

Related product manuals