EasyManua.ls Logo

Sylvania SRC2213 - Page 9

Sylvania SRC2213
108 pages
Print Icon
To Next Page IconTo Next Page
To Next Page IconTo Next Page
To Previous Page IconTo Previous Page
To Previous Page IconTo Previous Page
Loading...
1-2-4 SFTY_2
Safety Check after Servicing
Examine the area surrounding the repaired location
for damage or deterioration. Observe that screws,
parts and wires have been returned to original posi-
tions. Afterwards, perform the following tests and con-
firm the specified values in order to verify compliance
with safety standards.
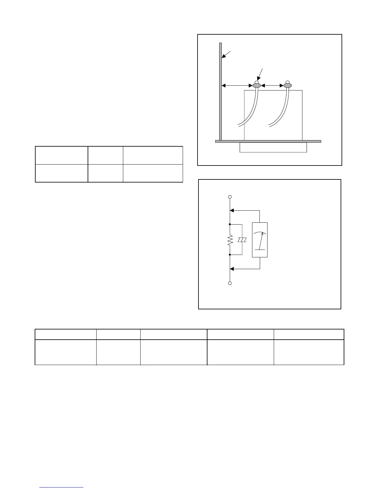
1. Clearance Distance
When replacing primary circuit components, confirm
specified clearance distance (d) and (d') between sol-
dered terminals, and between terminals and surround-
ing metallic parts. (See Fig. 1)
Table 1 : Ratings for selected area
Note: This table is unofficial and for reference only.
Be sure to confirm the precise values.
2. Leakage Current Test
Confirm the specified (or lower) leakage current be-
tween B (earth ground, power cord plug prongs) and
externally exposed accessible parts (RF terminals,
antenna terminals, video and audio input and output
terminals, microphone jacks, earphone jacks, etc.).
Measuring Method : (Power ON)
Insert load Z between B (earth ground, power cord
plug prongs) and exposed accessible parts. Use an
AC voltmeter to measure across both terminals of
load Z. See Fig. 2 and following table.
Table 2 : Leakage current ratings for selected areas
Note: This table is unofficial and for reference only. Be sure to confirm the precise values.
AC Line Voltage Region
Clearance
Distance (d) (d')
110 to 130 V
USA or
CANADA
3.2 mm
(0.126 inches)
Chassis or Secondary Conductor
dd’
Primary Circuit Terminals
Fig. 1
Fig. 2
AC Voltmeter
(High Impedance)
Exposed Accessible Part
B
One side of
Power Cord Plug Prongs
Z
AC Line Voltage Region Load Z Leakage Current (i) Earth Ground (B) to:
110 to 130 V
USA or
CANADA
0.15µF CAP. & 1.5k
RES. connected in
parallel
i0.5mA rms
Exposed accessible
parts

Other manuals for Sylvania SRC2213

Related product manuals