EasyManua.ls Logo

Synrad FH FLYER 3D - Page 189

Default Icon
250 pages
Print Icon
To Next Page IconTo Next Page
To Next Page IconTo Next Page
To Previous Page IconTo Previous Page
To Previous Page IconTo Previous Page
Loading...
technical reference
SYNRAD FH Series Flyer Operator’s Manual Version 3.4
159
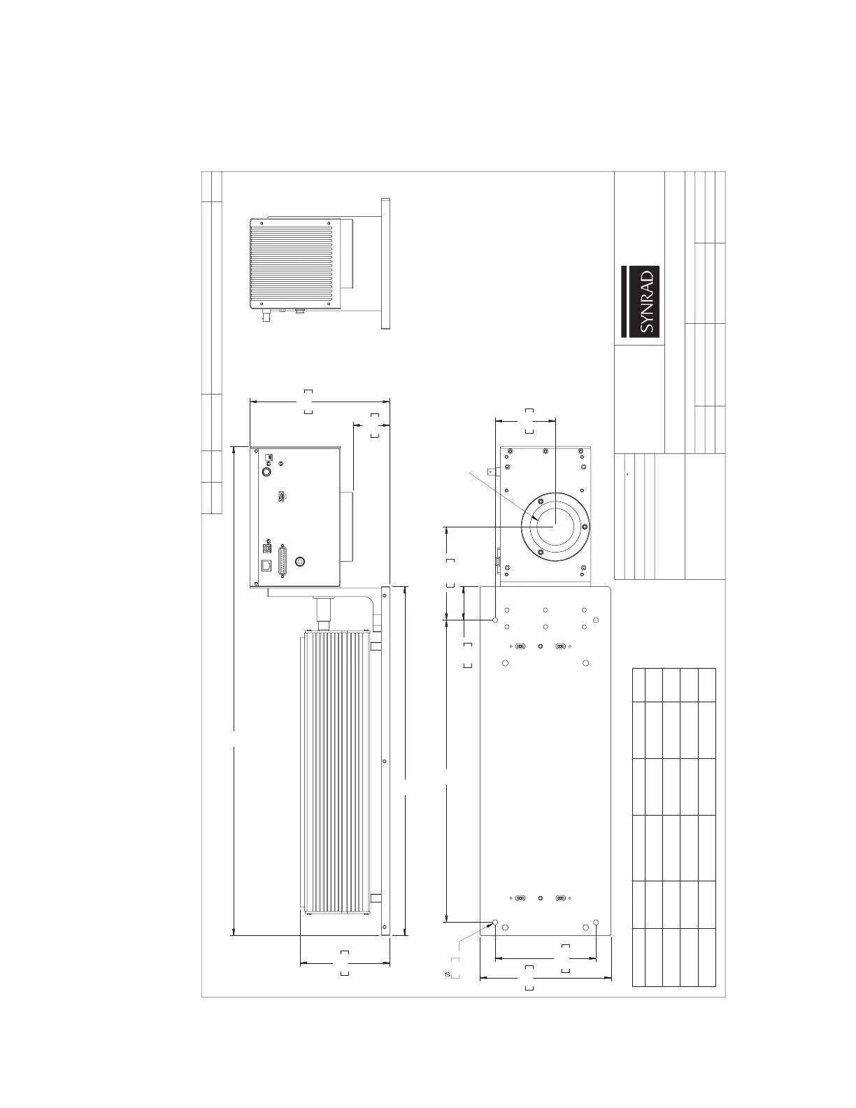
25 W Mounting Kit (48-2) 7.26 kg (16 lbs)
25 W Mounting Kit w/ Fan Shroud 9.98 kg (22 lbs)
30 W Mounting Kit (v30) 4.50 kg (10 lbs)
.DUORHSNAFLANOITPO
HTIW TINU DELOOC-RIA SWOHS 2 TEEHS .4
.LIAR2-84AOT
TNUOM LLIW )NAF-NON( RIA DNA RETAW 1-84 .3
.SNOISNEMID 'C' & 'B' ,'A' ROF TRAHC EES .2
.SRETEMILLIM ERA ] [ STEKCARB NI SNOISNEMID .1
:SETON
TEEHS'C' MID'B' MID'A' MID.CSEDREBMUN TRAP
1-8410-47691-032
41.92
]mm1.047[
97.02
]mm1.825[
000.81
]mm02.754[
1
SNAF/w 1-8420-47691-032
91.92
]mm4.147[
97.02
]mm1.825[
000.81
]mm02.754[
2
2-8440-47691-032
54.34
]mm7.3011[
97.43
]mm7.388[
000.42
]mm06.906[
1
SNAF/w 2-8450-47691-032
54.34
]mm7.3011[
97.43
]mm7.388[
000.42
]mm06.906[
2
5.112
33.8
'A'
091.2
36.55
'B'
33.5
3.531
TIXE MAEB
000.2
08.05
26.7
195.3
12.19
SELOH
21.141
655.5
04.251
000.6
'C'
GNITNUOM
003.
X4
08.7
1.891
5753
:NOITPIRCSED
:HSINIF
:LAIRETAM
VER
OCE
ETAD
NOITPIRCSED
BD
:DETON SSELNU SECNARELOT
70-guA-03
± = ELGNA
1.0
± = x.
10.0
± = xx.
500.0
± = xxx.
5.0
NOITCUDORP OT DESAELER
A
.CNIDARNYSFONOISSIMREP
:REBMUN TRAP
:REBMUN ELIF/GWD
TEEHS
:GNE
:YB NWARD
:ETAD
:STINU
:YROGETAC
:YB DEKCEHC
:ETAD
B :EZIS
:SSALC HSINIF
:YB DEVORPPA
:ETAD
NETTIRWTUOHTIWTRAPNIRO
ELOHWNIDESOLCSIDRODESU
EBTONLLAHSDNA.CNIDARNYS
OT YRATEIRPORPSIGNIWARD SIHT
7663-943)524( :xaF
2-84/1-84 ,REYLF - GNITNUOM & ENILTUO
70-nuJ-10
01-67691-003
1
01-67691-003
fo
2
I
sehcnI
YRATEIRPORP
.CNI DARNYS
ecalP supmaC 0064
57289 AW ,oetlikuM
0053-943)524( :enohP
A

Table of Contents

Related product manuals