EasyManua.ls Logo

Synrad FH FLYER 3D - Page 190

Default Icon
250 pages
Print Icon
To Next Page IconTo Next Page
To Next Page IconTo Next Page
To Previous Page IconTo Previous Page
To Previous Page IconTo Previous Page
Loading...
SYNRAD FH Series Flyer Operator’s Manual Version 3.4
160
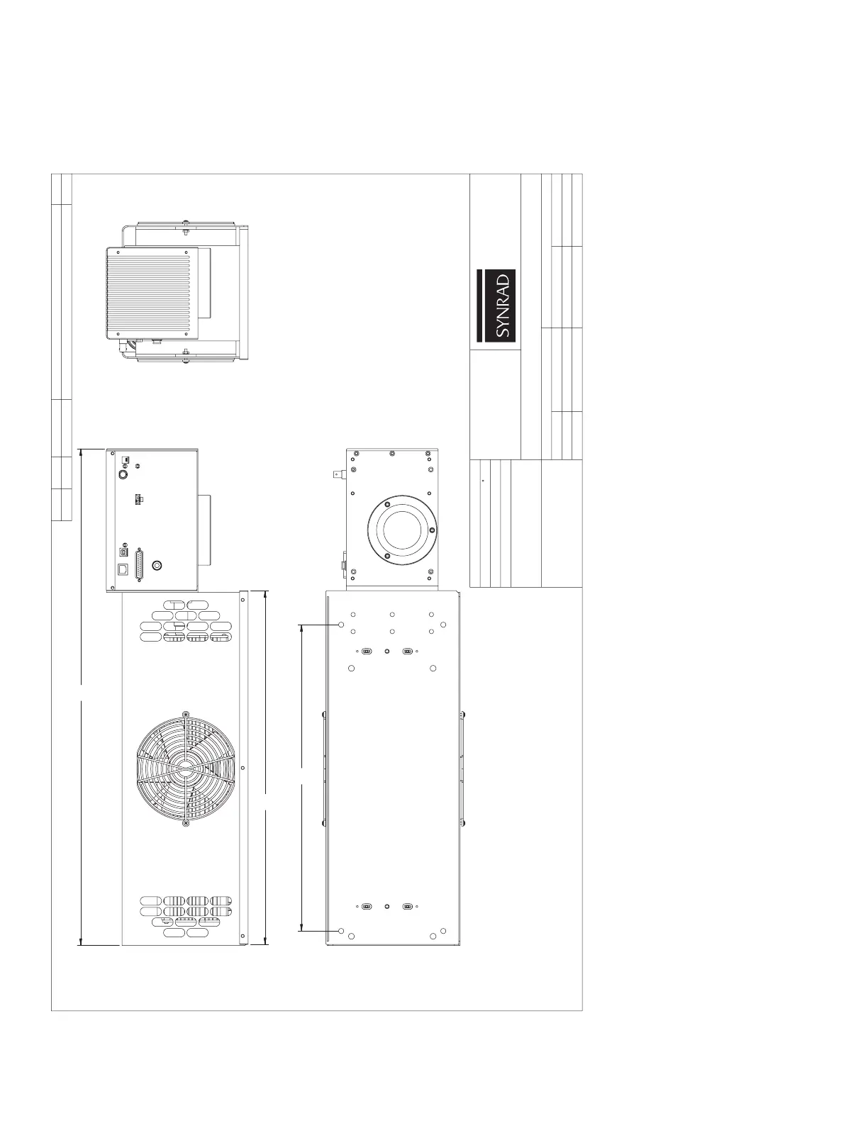
40 W Mounting Kit (v40) 6.80 kg (15 lbs)
50 W Mounting Kit (48-5) 8.16 kg (18 lbs)
60 W Mounting Kit (t60) 6.80 kg (15 lbs)
:NOITPIRCSED
:HSINIF
:LAIRETAM
VER
OCE
ETAD
NOITPIRCSED
BD
:DETON SSELNU SECNARELOT
5.0
± = ELGNA
1.0
± = x.
10.0
± = xx.
500.0
± = xxx.
YRATEIRPORP
OT YRATEIRPORPSIGNIWARD SIHT
EBTONLLAHSDNA.CNIDARNYS
ELOHWNIDESOLCSIDRODESU
NETTIRWTUOHTIWTRAPNIRO
.CNIDARNYSFONOISSIMREP
:REBMUN TRAP
:REBMUN ELIF/GWD
TEEHS
:GNE
:YB NWARD
:ETAD
:STINU
:YROGETAC
:YB DEKCEHC
:ETAD
B :EZIS
:SSALC HSINIF
:YB DEVORPPA
:ETAD
.CNI DARNYS
ecalP supmaC 0064
57289 AW ,oetlikuM
0053-943)524( :enohP
7663-943)524( :xaF
2-84/1-84 ,REYLF - GNITNUOM & ENILTUO
70-nuJ-10
01-67691-003
2
01-67691-003
fo
2
I
sehcnI
A
NOITCUDORP OT DESAELER
70-guA-035753
A
'B'
'A'
'C'

Table of Contents

Related product manuals