EasyManua.ls Logo

SystemAir fantech SHR 150R - Système Partiellement Spécialisé

SystemAir fantech SHR 150R
40 pages
To Next Page IconTo Next Page
To Next Page IconTo Next Page
To Previous Page IconTo Previous Page
To Previous Page IconTo Previous Page
Loading...
24
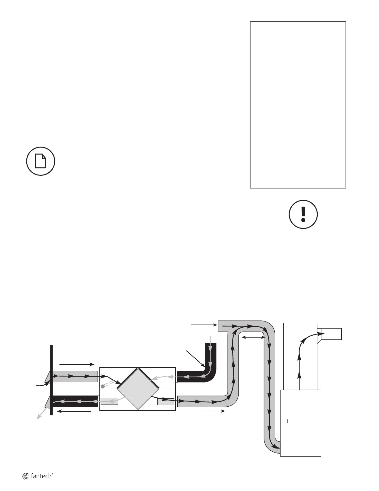
EXEMPLES D'INSTALLATION (SUITE)
RACCORDEMENT DIRECT du FLUX D’AIR D’APPROVISIONNEMENT à la BOUCHE DE REPRISE
D’AIR DE LA FOURNAISE
(L’air vicié est aspiré à partir des endroits clés de la maison.)
SYSTÈME PARTIELLEMENT SPÉCIALISÉ
Installation suggérée pour:
Fournaise centrale (unité
de traitement d’air, air
climatisé central)
Lorsque l’installation
des endroits habitable
n’est pas possible ou
pratique, dispendieux
ou lorsque l’unité
de traitement d’air
fonctionnera toute
l’année.
Avantages: Conditionne
l’air frais avant de la
distribuer dans la maison
1. Pour assurer une bonne distribution de l’air, il est nécessaire de faire
fonctionner le ventilateur de la fournaise pendant que le VRC est en
marche. Voir connexion électrique de la fournaise à la page 33.
2. Air vicié est aspiré à des endroits clés de la maison (salle de bain,
cuisine, buanderie).
3. L’air frais est fourni au plénum de retour d’air de la fournaise.
4. En raison de l’écart de pression entre le VRC et l’équipement auquel il
est raccordé, le débit d’air du VRC doit être équilibré sur place au
moyen de la procédure dans la section "équilibrage du débit d’air".
* Dans le cas d'un système multi-zone, s'il vous plaît contacter le service à la
clientèle de Fantech avant d'installer tout type d'installation nécessitant
l'utilisation synchronisé de la fournaise "
S’assurer que le VRC
est dans la possibilité
de rencontrer le débit
d’air recommandé
Conduits VRC/Fournaise pour Système partiellement spécialisé
*L’appareil est équilibré à vitesse normale et pendant
que le ventilateur de la fournaise est en marche.
.
Extérieur
Air frais
distribué à
l'intérieur
Air vicié provenant de l'intérieur
Retour d'air
1 m (3pi 3
po) min.
recommandé
Retour
d'air frais
* Les raccords de conduit
peuvent être différents
selon le modèle
Fournaise à
air pulsé
Air vicié
évacué à
l'extérieur
Air frais provenant
de l'extérieur

Related product manuals