EasyManua.ls Logo

SystemAir fantech SHR 150R - INSTALLATION EXAMPLES (CONTD); PARTIALLY DEDICATED SYSTEM (BETTER); HRV;Furnace ducting for Partially Dedicated System

SystemAir fantech SHR 150R
40 pages
Print Icon
To Next Page IconTo Next Page
To Next Page IconTo Next Page
To Previous Page IconTo Previous Page
To Previous Page IconTo Previous Page
Loading...
6
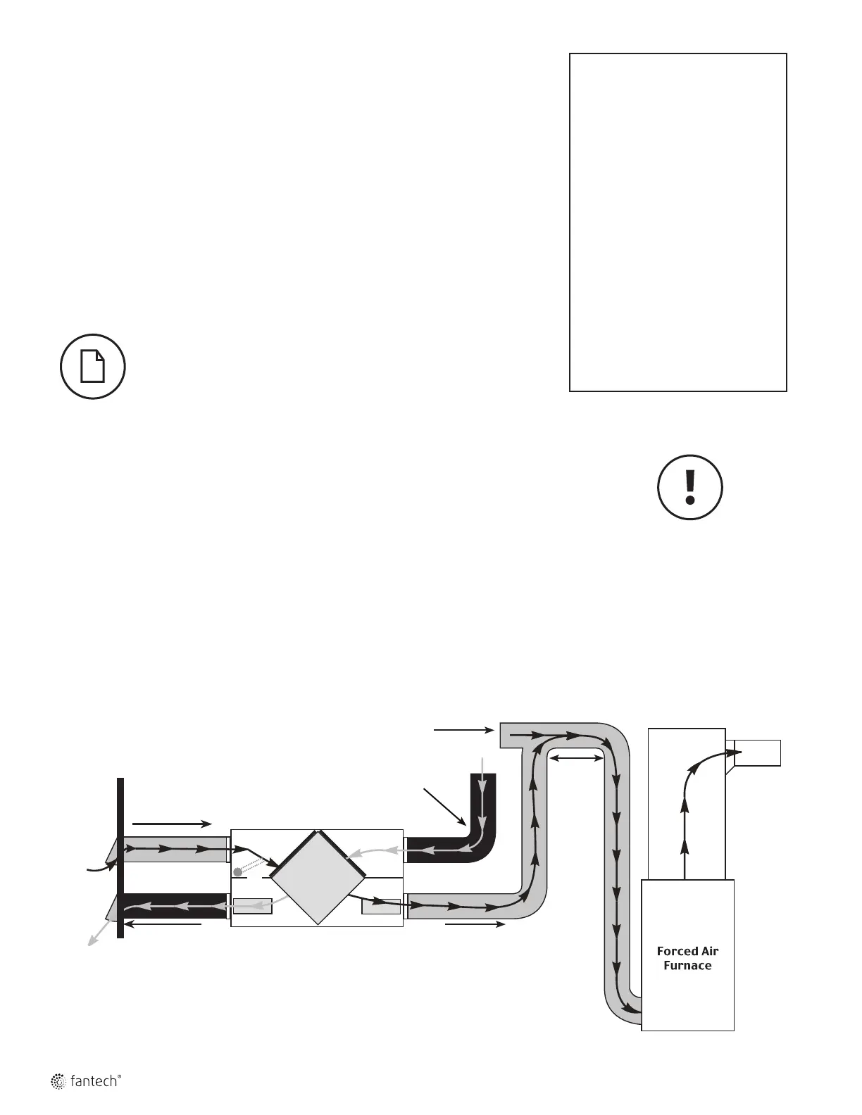
INSTALLATION EXAMPLES (CONT'D)
DIRECT CONNECTION of the FRESH air to living area to the RETURN PLENUM
of the AIR HANDLER (Stale air drawn from key areas of home)
PARTIALLY DEDICATED SYSTEM (BETTER)
Suggested installation for:
Central furnace (air
handling unit or central
air conditioners)
When ducting fresh
air to living area is not
possible or practical,
i.e. expensive or when
the central AHU will
operate year-round.
Benets: Conditions the
fresh air prior to
distributing it throughout
the house
1. In order to provide proper distribution of the fresh air, it is
recommended that the furnace blower be set to run continuously or
interconnected with HRV. See furnace electrical connection on
page 15.
2. Stale air is drawn from key areas of the home (bathroom, kitchen,
laundry room).
3. Fresh air is supplied to the return air plenum of the furnace.
4. Due to the difference in pressure between the HRV and the
equipment it is being connected to the HRV’s airflow must be
balanced on site, using the procedure found in the section “AIRFLOW
BALANCING”
* In the case of a multi-zone system, please contact Fantech customer
service prior to installing any installation type requiring the use of the
furnace interlock"
Make sure the HRV is
capable of meeting the
required airow rate.
HRV/Furnace ducting for Partially Dedicated System
Air from inside
* Unit air flow should be balanced while HRV is on "Normal" speed and
furnace blower is running.
Air return
1 m (3' 3")
min.
recommended
Cold air
return
* Ductwork layout may dif-
fer depending on model
Stale air to
outside
Fresh air from
outside
Fresh air to
living areas

Related product manuals