EasyManua.ls Logo

SystemAir fantech SHR 150R - INSTALLATION EXAMPLES (CONTD); SIMPLIFIED INSTALLATION (GOOD) (RETURN;RETURN METHOD); HRV;Furnace ducting for Simplified Installation - Option 1

SystemAir fantech SHR 150R
40 pages
Print Icon
To Next Page IconTo Next Page
To Next Page IconTo Next Page
To Previous Page IconTo Previous Page
To Previous Page IconTo Previous Page
Loading...
7
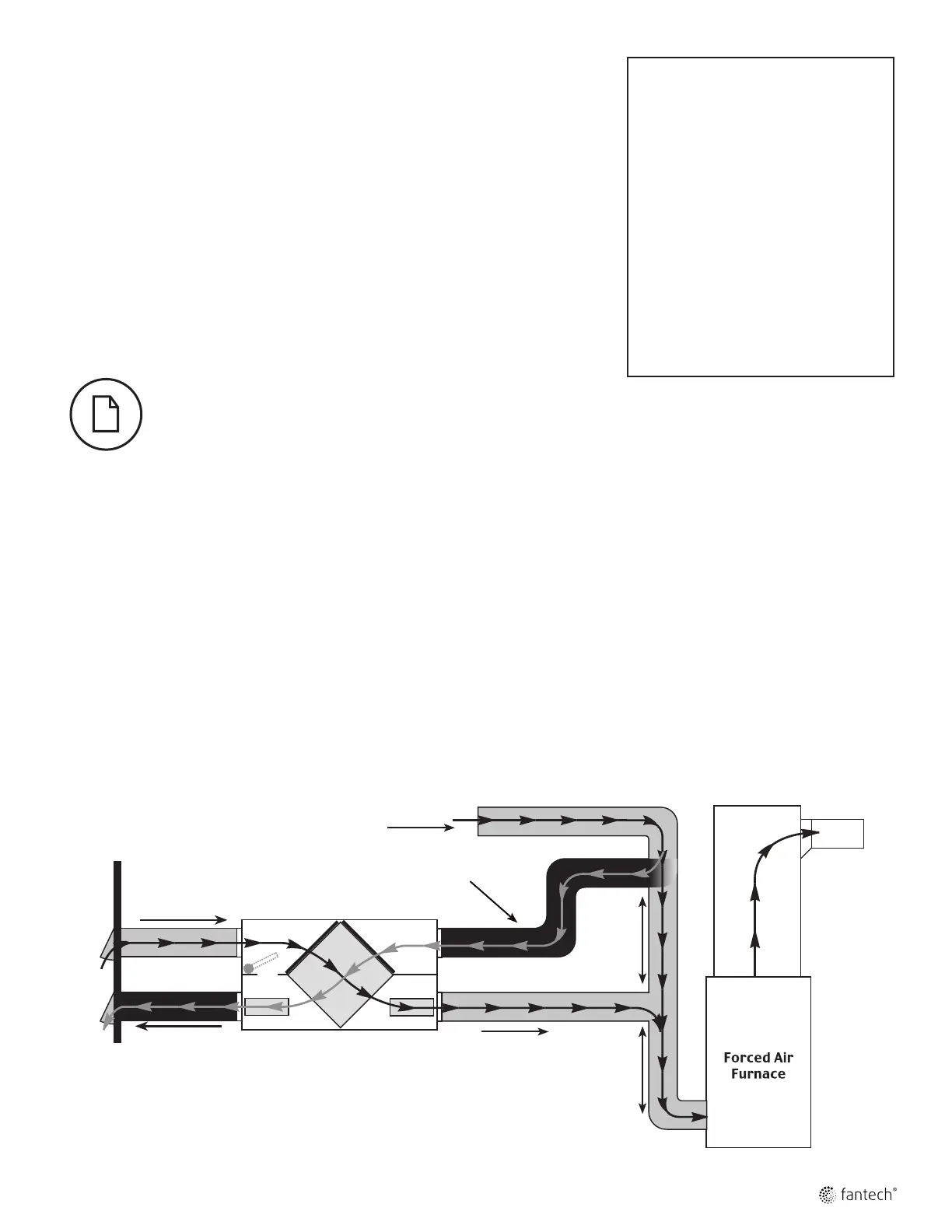
INSTALLATION EXAMPLES (CONT'D)
DIRECT CONNECTION of both the HRV SUPPLY AIR STREAM and EXHAUST AIR STREAM
to the FURNACE COLD AIR RETURN
SIMPLIFIED INSTALLATION
(GOOD)
(RETURN/RETURN METHOD)
Suggested installation for:
When bathroom and kitchen
already have local exhaust
system
May be suitable for
retrotting
Benets: Least expensive
installation type
1. Furnace blower must operate when ventilation from HRV is required. The furnace should
be set to run continuously or interlocked with HRV. See furnace electrical connection
on page 15.
2. A minimum separation of 1m (39’’) is recommended between the two direct
connections.
3. In order to prevent exhausting any fresh air, the HRV’s exhaust air connection should be
upstream of the HRV’s supply air connection when ducting to the furnace’s cold air return.
4. Due to the difference in pressure between the HRV and the equipment it is being
connected to the HRV’s airflow must be balanced on site, using the procedure found in
the section “AIRFLOW BALANCING”
* In the case of a multi-zone system, please contact Fantech customer
service prior to installing any installation type requiring the use of the
furnace interlock"
Air from inside
* Unit air flow should be balanced while HRV is on "Normal" speed and
furnace blower is running.
Outside
1 m (3' 3")
min.
recommended
Cold air
return
* Ductwork layout may dif-
fer depending on model
HRV/Furnace ducting for Simplified Installation - Option 1
Stale air to
outside
Fresh air from
outside
Fresh air to
living areas
1 m (3' 3")
min.
recommended
Air return

Related product manuals