EasyManua.ls Logo

Tascam IF-AE8 - Dimensional Drawing; Rack Mounting; Block Diagram

Tascam IF-AE8
8 pages
Print Icon
To Next Page IconTo Next Page
To Next Page IconTo Next Page
To Previous Page IconTo Previous Page
To Previous Page IconTo Previous Page
Loading...
IF-AE8 Digital Audio Converter
TASCAM IF-AE8
7
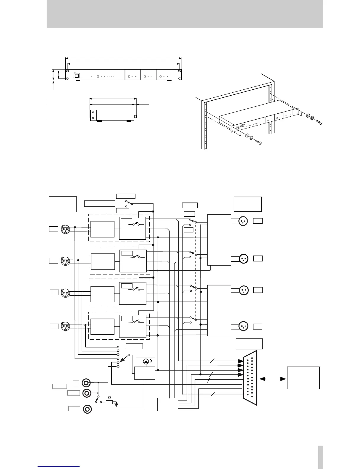
4.1 Dimensional drawing 4.2 Rack mounting
Use the supplied rack mounting kit to install the
IF-AE8 in a standard 19” rack, as shown below:
4.3 Block diagram
482mm
466mm
44mm
4mm
32mm
194.8mm
181.5mm 10.5mm
CLOCK
FSC
AD1892
THRU
Data In
Emph In
Data Out
4
Emph Out
LR CLK In
LR CLK Out
2
2
Digital Mixer
or
DTRS
FS Code In
FS Code Out
IN
THRU
(AUTO TERM)
WORD
PLL
LOCKED
4
TC9271
D OUT
D IN
TDIF
Fs CONVERT
CONVERT
THRU
Data
Fs / Emph
CLK
D IN 7-8
D IN 5-6
D IN 3-4
D IN 1-2
TDIF-1
WORD
OUT
DIGITAL I/O
INPUTS
(AES/EBU)
DIGITAL I/O
OUTPUTS
(AES/EBU)
1-2
3-4
5-6
7-8
1-2
3-4
5-6
7-8
TC9271
DIGITAL I/O
(TDIF-1)
FSC
AD1892
THRU
FSC
AD1892
THRU
FSC
AD1892
THRU
75
CPU
Digital
Interface
Receiver
Digital
Interface
Receiver
Digital
Interface
Receiver
Digital
Interface
Receiver
Digital
Interface
Transmitter
Digital
Interface
Transmitter
Fs / Emph

Related product manuals