EasyManua.ls Logo

TDE MACNO BDF DIGITAL OPDE SD 22 - Page 25

TDE MACNO BDF DIGITAL OPDE SD 22
57 pages
Print Icon
To Next Page IconTo Next Page
To Next Page IconTo Next Page
To Previous Page IconTo Previous Page
To Previous Page IconTo Previous Page
Loading...
MP01200E00 V_1.0
23
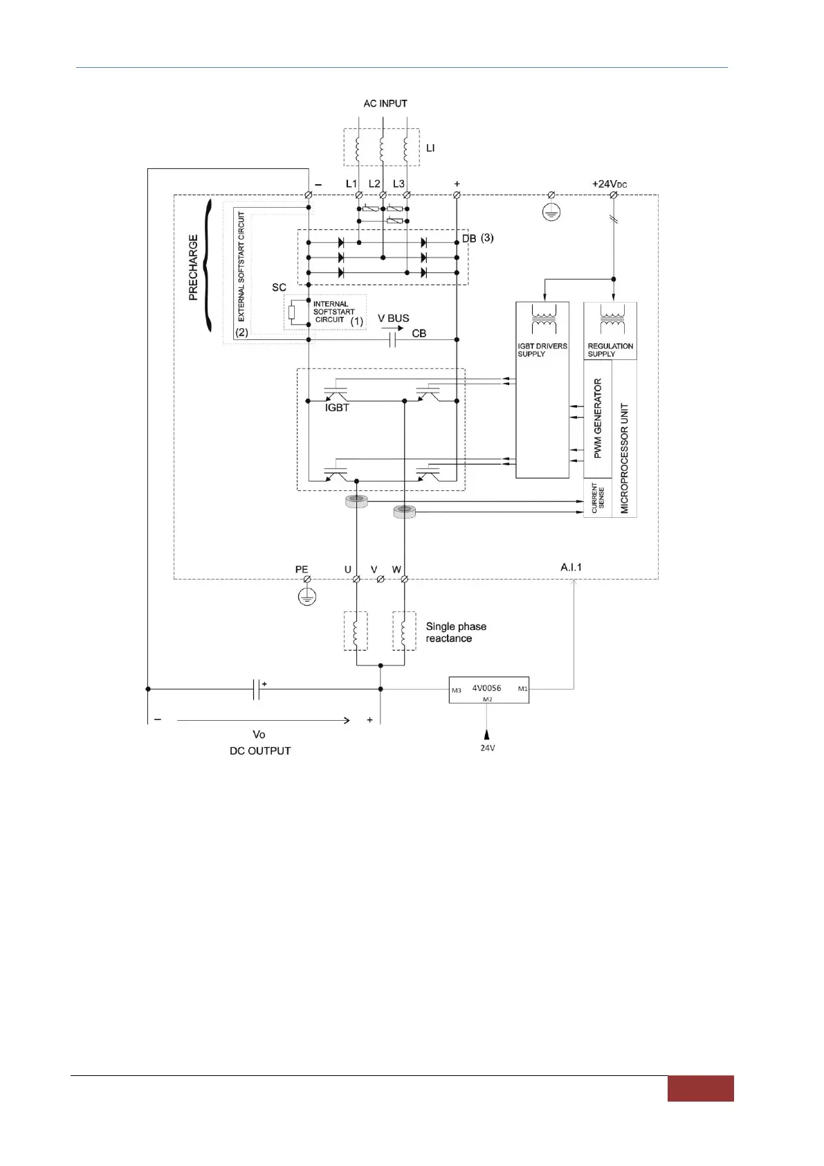
FIG. 10 – Power stage with AC input (optional)

Related product manuals