EasyManua.ls Logo

TECALEMIT TEC4004 - Chapter 2: Specifications; General Lift Specifications

TECALEMIT TEC4004
53 pages
Print Icon
To Next Page IconTo Next Page
To Next Page IconTo Next Page
To Previous Page IconTo Previous Page
To Previous Page IconTo Previous Page
Loading...
CAP.2. SPECIFICHE TECNICHE
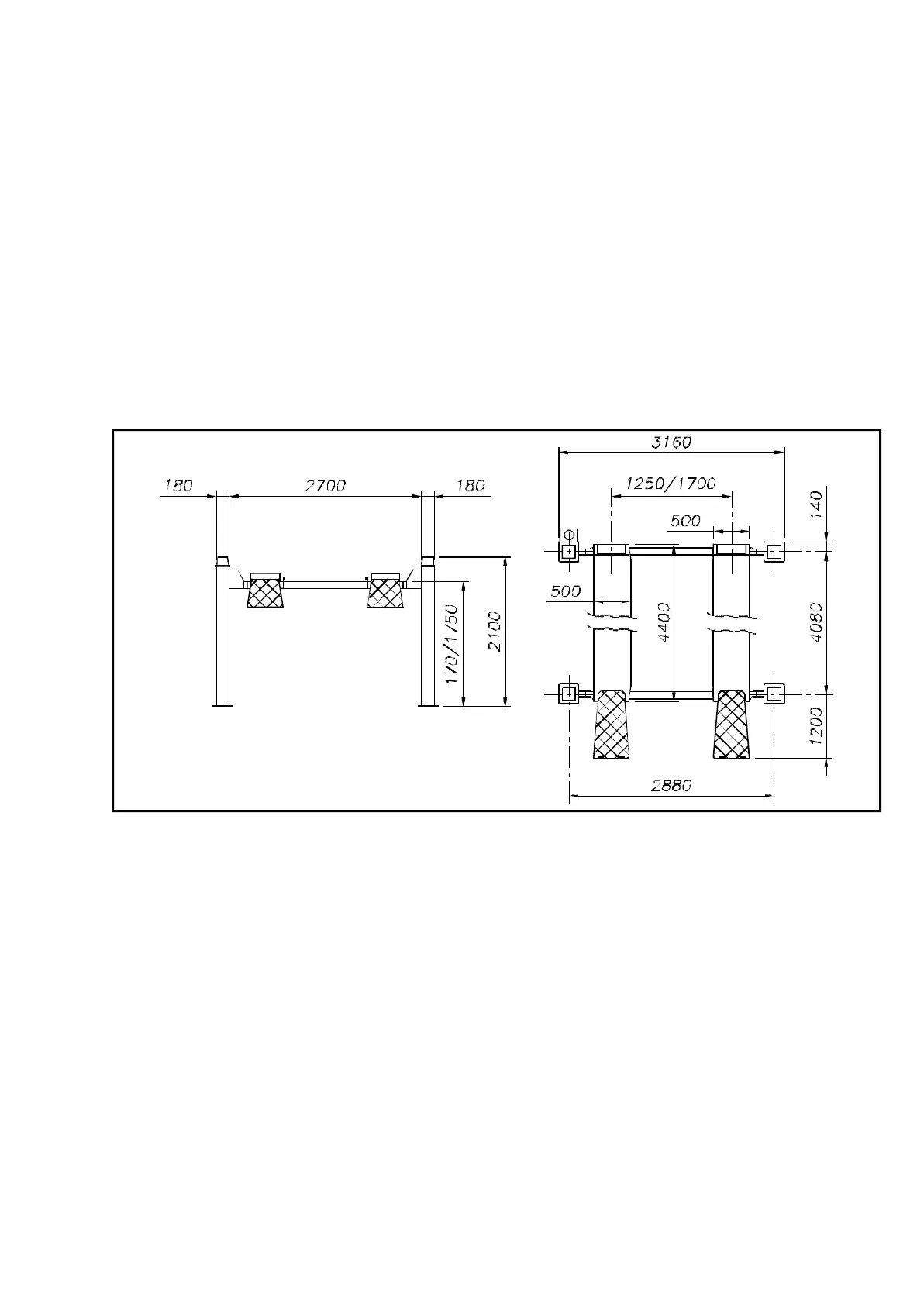
POR TA TA: ................................................4000 Kg (39240 N)
Alt. max. sol le va men to auto ......................1750 mm
Alt. min. sup por ti sol le va men to .................170 mm
In ter as se lon gi tu di na le co lon ne .................4080 mm
In ter as se tra sver sa le co lon ne ...................2880 mm
Lar ghez za li be ra tra co lon ne .....................2700 mm
Lar ghez za pe da ne .....................................500 mm
Lun ghez za pe da ne....................................4400 mm
Tem po di sa li ta ..........................................50 sec
Tem po di di sce sa ......................................45 sec.
FUNE di sol le va men to in ac ciaio, con le se guen ti ca rat te ri sti che:
Dia me tro ....................................................11 mm
Nu me ro di fili .............................................227
Re si sten za dei fili ......................................1960 N
Dia me tro pri mi ti vo pu leg ge........................220 mm
Ru mo ro si tà ................................................70dB(A)/1m
PESO to ta le del sol le va to re .....................cir ca 900 Kg
Tem pe ra tu ra di fun zio na men to .................-10°C / + 50°C
Ambiente di lavoro: locale chiuso.
Fig.11 Di men sio ni ed in gom bri
MOTORE ELETTRICO
Tipo ...........................................................C90
Po ten za .....................................................2.2 KW
TEfWeight=4Ten sio ne............................... 230- 400V trif. +/-5%
Fre quen za ................................................. 50 Hz
N° poli........................................................4
Ve lo ci tà......................................................1400 giri/1’
For ma co strut ti va .......................................B 14
Clas se iso la men to .....................................F
As sor bi men to ............................................230V: 11A
..................................................................400V: 6,4A
Il col le ga men to del mo to re deve es se re ese gui to ri fe ren do si agli
sche mi elet tri ci al le ga ti.Il sen so di ro ta zio ne del mo to re è si ni stro
(an tio ra rio) come in di ca to nel la tar ghet ta ap pli ca ta sul mo to re stes
-
so.
POMPA
Tipo ...........................................................18
Mo del lo......................................................10A5X348
Ci lin dra ta ...................................................5 cm3/g
Tra smis sio ne: tipo di giun to.......................TR08
Pres sio ne di la vo ro con ti nua ti va ................ 210 bar
Pres sio ne di la vo ro in ter mit ten te ............... 230 bar
Pres sio ne di pic co .....................................250 bar
CHAPTER 2 SPECIFICATIONS
CA PA CITY:...............................................4000 kg (39240 N)
Max. vehicle lifting height ..........................1750 mm
Min. ground clearance of lift structure ......... 170 mm
Longitudinal C/C distance between post .... 4080 mm
Transverse C/C distance between posts ... 2880 mm
Effective clearance between posts ............. 2700 mm
Platform width ............................................500 mm
Platform length .......................................... 4400 mm
Lift time ......................................................50 sec
Lowering time .............................................45 sec
LIFTING CABLES in steel, having the following features:
Dia me ter....................................................11 mm
Strands..................................................... 227
Tensile strength of strand...........................1960 N
Pulley pitch diameter ................................. 220 mm
Noi se......................................................... 70dB(A)/1m
OVERALL WEIGHT of lift unit.................. 900 kg ap prox.
Working temperature range ........................ -10°C / + 50°C
Installation requirements: enclosed area.
Fig.11 Overall dimensions and clearances
MOTOR
Type .......................................................... C90
Power ........................................................ 2.2 kW
Vol ta ge ..................................................... 230- 400V th.-ph. +/-5%
Fre quency................................................ 50 Hz
Po les ......................................................... 4
Speed .................................................. ..... 1400 rpm
Housing shape...........................................B 14
Insulation class .......................................... F
Current draw .......................................... 230V: 11A
..................................................................400V: 6.4A
When connecting the motor refer to the enclosed wiring diagrams.
The motor has left- handed rotation (counter- clockwise) as shown
on the data plate on the casing.
PUMP
Type ...................................................................18
Mo del ..................................................................10A5X348
Di spla ce ment ......................................................5 cc/rev.
Transmission: sleeve co u pling type ......................TR08
Continuous working pressure ............................. 210 bar
Intermittent working pressure............................. 230 bar
Peak pres su re ................................................... 250 bar
9