EasyManua.ls Logo

Technics SA-EH760 - Page 52

Technics SA-EH760
67 pages
Print Icon
To Next Page IconTo Next Page
To Next Page IconTo Next Page
To Previous Page IconTo Previous Page
To Previous Page IconTo Previous Page
Loading...
B
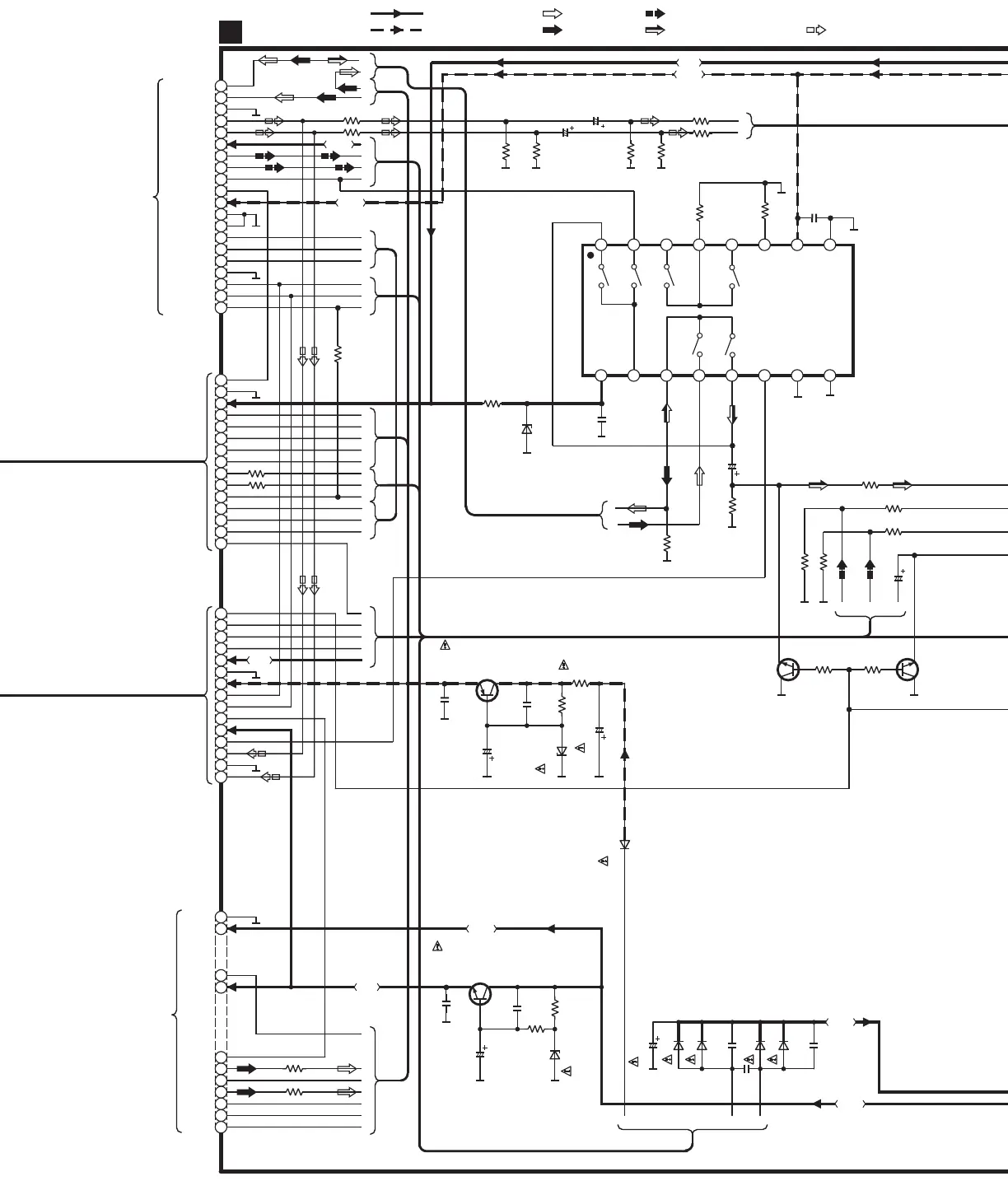
SCHEMATIC DIAGRAM- 4
MAIN CIRCUIT
W501
W902A
W901A
CP101
G
F
E
A
C
D
C
A
B
A
6
7
8
9
10
11
C
F
G
O
M
K
C
B
J
D
C
B
A
E
D
1
2
3
1
2
3
4
5
6
7
8
9
10
11
12
13
14
15
16
20
17
18
19
B
B
E
F
G
H
I
A
N
L
DET
Rch IN
CE
Lch IN
DI
DO
CL
+B(2)
SD
+B(1)
T.GND
TU L/C ch
TUNER Rch
TW Lch IN
TW Rch IN
A.GND
MID Lch IN
MID Rch IN
MIC
- 7.5V
V.GND
D.GND
CS/REQ
CLK
DATA
CT.GND
SH FL1
SH FL2
SYNC
S.W
Q707
2SB1548PQAU
REGULATOR
PRQ
Q723
2SC3940AQSTA
REGULATOR
R597 2.2K
R598 2.2K
R712
2.2K
D705
RL1N4003N02
C715
25V4700
C714
1000P
C731
1000P
C741
0.1
D717- 720
RL1N4003N02
D718
D717
D720
D719
D737
MA4082LTA
R763
4.7K
R764
330
C733
0.047
C740
16V10
R230 1K
R229 1K
D721
MA4300MTA
R708
4.7K
C707
0.047
C706
35V10
C737
50V100
R707
1/4W4.7
1
2
3
4
5
6
7
8
9
10
11
12
13
14
15
DC 10V
To
MAIN CIRCUIT
of SOUND
PROCESSOR
To TUNER UINT
on SCHEMATIC
DIAGRAM- 9
10
4
5
C735
0.047
1
2
3
4
5
6
7
8
9
10
11
12
13
14
15
R629 1K
A
B
B
A
R563
2.7K
R564
2.7K
C660
16V10
C659
16V10
R615
4.7K
R614
4.7K
R631
3.9K
R632
3.9K
7
C202
0.1
R203
100K
R204
100K
642
14 13 12
53
15
1
916
C201
0.1
A
B
R202
100K
11
8
CDB
C602
16V10
R603
3.3K
Y1 Y0
Z1
Z0
INH VSS G
CBA
X0X1
V
DD
IC201
BU4053BCFE2
SIGNAL SELECTOR
C708
0.047
R211
270
D201
MA4056MTA
R626 1K
R687 1.5K
R688 1.5K
Q605,606
2SD2144STA
MUTING
Q605
Q606
R683
1K
R684
1K
R605 4.7K
R606 4.7K
R617
4.7K
C601
16V10
:
SOURCE SIGNAL LINE
:
POSITIVE VOLTAGE LINE
:
NEGATIVE VOLTAGE LINE
:
FM SIGNAL LINE
:
AM SIGNAL LINE
:
SURROUND SP.DRIVE SIGNAL LINE
:
CENTER SP.DRIVE SIGNAL LINE
-7.5V
14.8V
14.8V7.2V
7.8V
-34.2V-27.6V
-28.1V
10.4V
7.5V
-7.5V
0V0V0V0V5.5V
0V 0V 0V 0V -7.5V
0V0V
0V 0V
6.2V
7.2V
14.2V
14.8V

Related product manuals