EasyManua.ls Logo

Technics SA-EH760 - Page 58

Technics SA-EH760
67 pages
Print Icon
To Next Page IconTo Next Page
To Next Page IconTo Next Page
To Previous Page IconTo Previous Page
To Previous Page IconTo Previous Page
Loading...
U
V
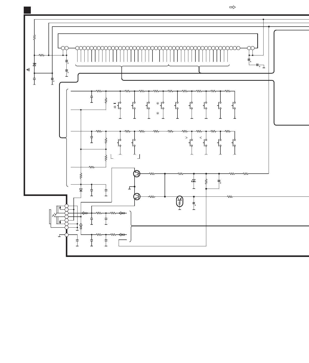
OPERATION CIRCUIT
A
SCHEMATIC DIAGRAM- 1
FL901 (RSL0298- F)
Y A A RQPONMLKJIHGFDCBBCDEFGHIJLLMNOPQRSTUVWX
S
T
E
1
5
4
2
3
7
8
T
S
S908
(
INPUT SELECTOR
)
S907
(
SET
)
S906
(
TUNING MODE
)
S905
(
FM AUTO/MONO
)
S903
(
CLOCK/TIMER,
-
DEMO
)
S902
(
MODE
)
S913
(DIGITAL
S.WOOFER
)
S912
(TUNER/BAND)
S915
(
PTY
)
S914
(
PS
)
JK903
HEADPHONES
R997
150
R996
150
D973
MA4030MTA
C921
1000P
C922
35V33
C920
50V4.7
R925
1K
C908
470P
R922
10K
R924
1K
C907
470P
R921
10K
R949
4.7K
R950
100
R944
2.2K
C924
0.1
C904
0.01
D974
MA165TA
C395
0.047
C509
0.01
R511
47
R509
47
R512
47
R510
47
C396
0.047
C510
0.01
C923
0.1
R912
4.7K
R911
3.3K
R910
2.2K
R909
1.8K
R916
1.5K
R915
1.2K
R914
1K
R913
820
R908
4.7K
R907
3.3K
R906
2.2K
R905
1.8K
R904
1.5K
R903
1.2K
R902
1K
R901
820
C919
50V4.7
FL DISPLAY
1 6 8 10 11 12 13 14 15 16 17 18 19 20 21 22 23 24 25 26 27 28 29 30 31 32 33 34 35 36 37 38 39 40 41 42 43 44 45 46 47 48 49 50 53 542 5 7 9
W905
S901
(
/
)
S910
(TUNING,
)
S911
(
TUNING,
)
(RDS DISP MODE)
S904
(
PLAY/ REC
)
S909
(6CH DISCRETE
INPUT)
C928
50V4.7
C927
50V4.7
R964
120
R963
120
Q912
Q911
R968
1M
1
0
K
Q961
UN4115TA
MUTING CONT.
D961
MA4075MTA
C961
16V10
Q911,912
2SD2144STA
MUTING
R966
3.9K
R965
3.9K
R967
2.2K
C931
16V10
M
R975
150K
NOTE:
The number which noted at the connectors on the schematic diagram as
"SCHEMATIC DIAGRAM-1" or "SCHEMATIC DIAGRAM-2"
indicates the schematic diagram serial number located on the left corner in the schematic diagram.
: SOURCE SIGNAL LINE
0V
-
6.1V
-
6.1V
0V
-
6.2V 0.1V

Related product manuals