EasyManua.ls Logo

Technics SA-EH760 - Page 66

Technics SA-EH760
67 pages
Print Icon
To Next Page IconTo Next Page
To Next Page IconTo Next Page
To Previous Page IconTo Previous Page
To Previous Page IconTo Previous Page
Loading...
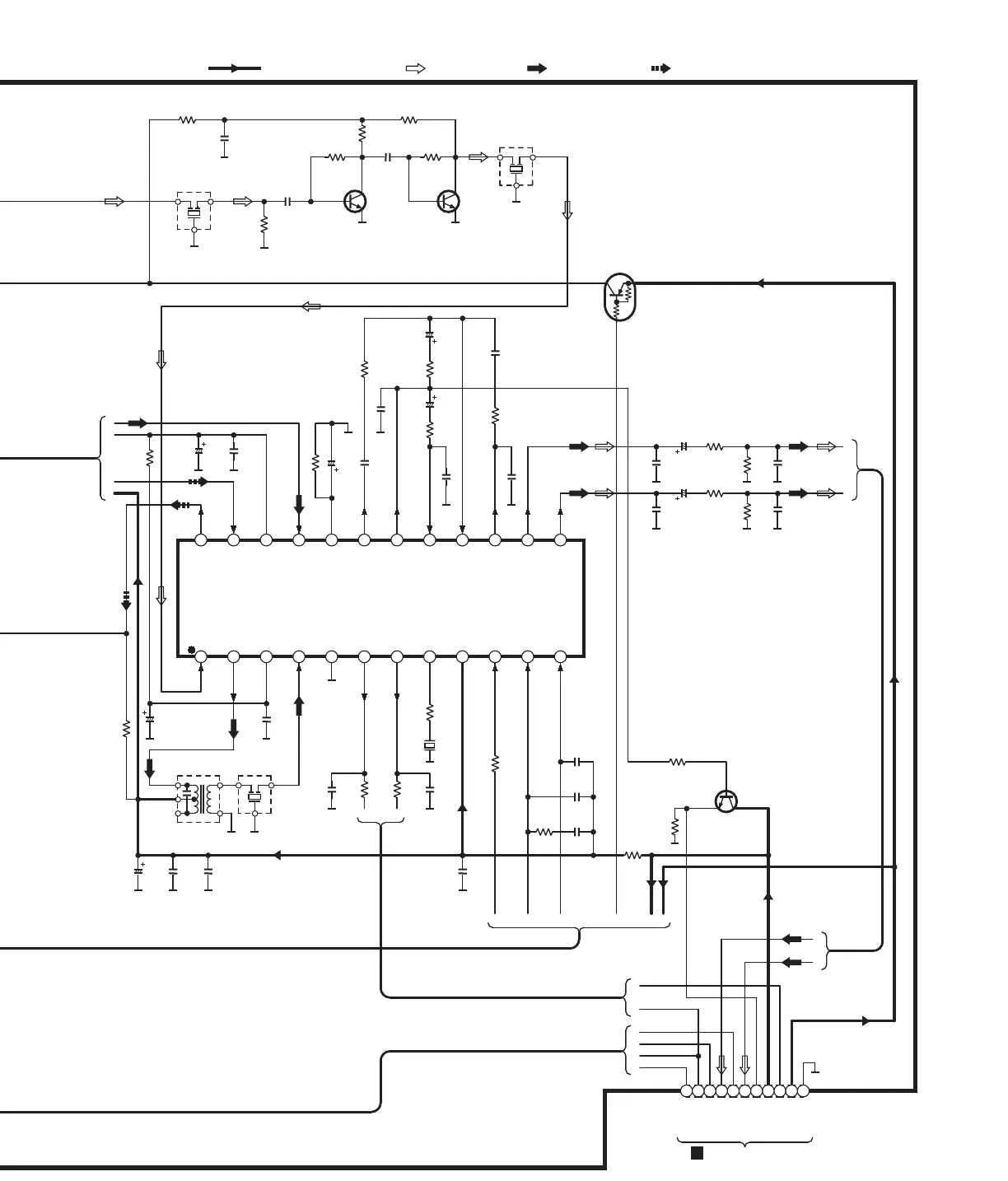
C
B
24 23 22 21 20 19 18 17 16 15 14 13
1 2 3 4 5 6 7 8 9 10 11 12
FM IF IN
AM MIX OUT
REG
AM IF IN
GND
SD
ST
FM DET
Vcc
STRQ
FM/AM
MONO
AM OSC OUT
AM OSC
AFC
AM RF IN
AGC
AM OUT
DET OUT
PILOT IN
MPX IN
PILOT OUT
Rch OUT
Lch OUT
BADFC E
470
2.7K 1
68
0.1
1000P
470
0.01
5 ~ 150
AB
1
22
100
0.018
11K
100K
4700P
B
A
4700P
100K
1K1
0.018
1000P ~ 0.01
150P
68K 0.1
1022K4.7
4.7
47K
1000P
3.3
A
D
B
C
10K
0.01
330
1000P
LA1833MN
FM/AM IF AMP,
DET/AM OSC,MIX/FM MPX
A
B
B
A
D
A
2SC2712
SWITCHING
3.3K
2SC2413
FM IF AMP
2SC2413
FM IF AMP
330
SCHEMATIC DIAGRAM-9
11
13 245678910
1K ~ 10K
470
4.7K ~ 22K
0.022
0.1
DTA114
POWER SUPPLY
(FM:ON)
1K ~ 10K
100P ~ 1000P
0.01 ~ 0.068 10K ~ 100K
1K ~ 10K
270 ~ 680
270K ~ 680K
10P ~
39P
270K ~
680K
CL
DO
DI
Lch OUT
CE
Rch OUT
DET
+B(2)
SD
+B(1)
T.GND
To MAIN CIRCUIT(CP101)
on SCHEMATIC DIAGRAM-4
B
1
0.47
:POSITIVE VOLTAGE LINE :FM SIGNAL LINE :AM SIGNAL LINE :AM OSC SIGNAL LINE

Related product manuals