EasyManua.ls Logo

Technoblock AS Series - Page 52

Default Icon
Print Icon
To Next Page IconTo Next Page
To Next Page IconTo Next Page
To Previous Page IconTo Previous Page
To Previous Page IconTo Previous Page
Loading...
52
6. Instalación del equipo
6.1 Indicaciones
El Fabricante ha aplicado el uso de etiquetas de advertencia con las indicaciones recogidas
en la tabla resumen
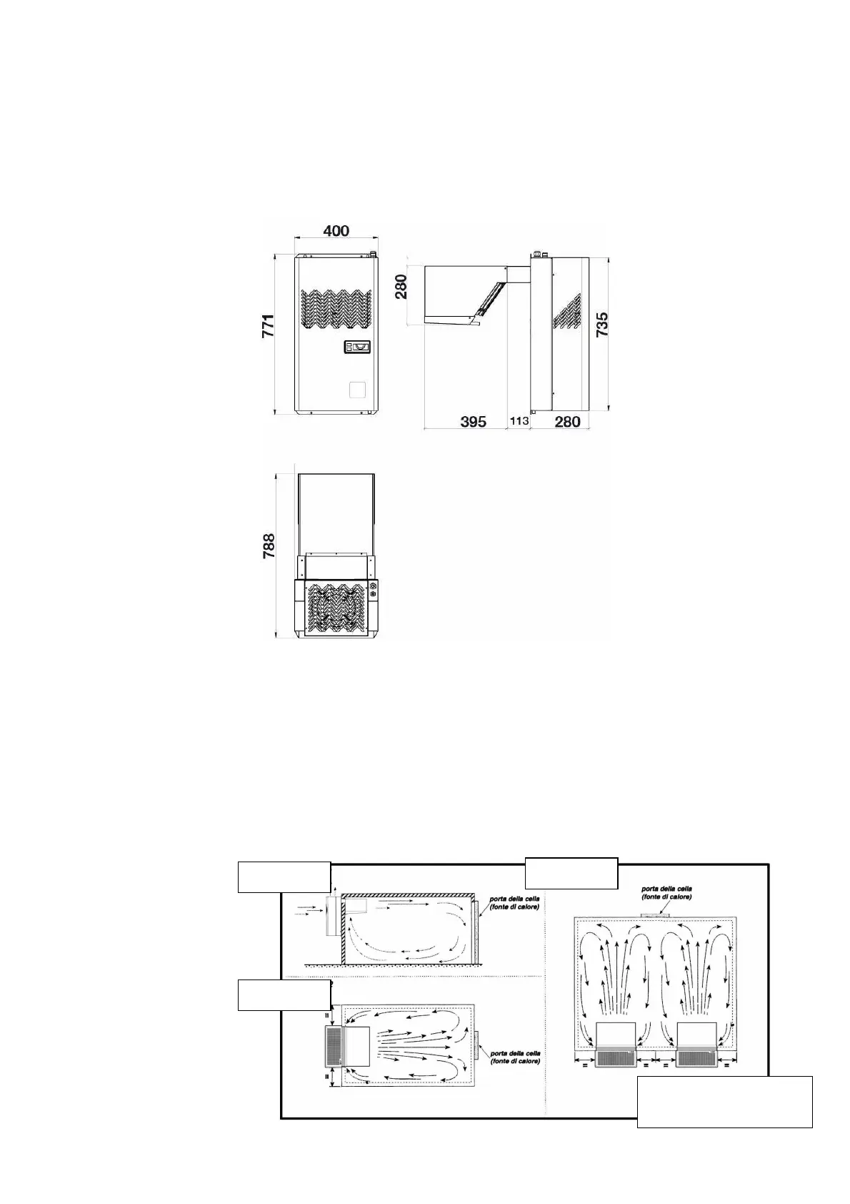
6.2 Dimensiones del equipo
6.3 Colocación del equipo
Para obtener el mejor funcionamiento posible del equipo le aconsejamos que:
A) Coloque el equipo en un entorno que disponga de un buen cambio de aire y lejos
de fuentes excesivas de calor.
B) Abra la cámara lo mínimo indispensable.
C) Cerciórese de que el equipo cuenta con una buena aspiración, así como de una
buena expulsión del aire movido.
D) Conecte un tubo para la evacuación del agua en el desagüe del agua de
condensación, situado en la parte inferior del equipo.
N.B.: Las unidades GM disponen de un sistema de evaporación del agua de
condensación, el desagüe es solo una precaución en caso de anomalías de
funcionamiento o de uso.
Solución 1
Solución 2
Solución 3
Instalación en cámara
con más de una unidad