EasyManua.ls Logo

Technoblock AS Series - Page 53

Default Icon
Print Icon
To Next Page IconTo Next Page
To Next Page IconTo Next Page
To Previous Page IconTo Previous Page
To Previous Page IconTo Previous Page
Loading...
53
6.4 Espacios libres obligatorios
Para permitir un uso correcto del equipo y facilitar una ágil manutención del mismo en
condiciones de seguridad, está previsto que la instalación tenga lugar en una posición que
respete los espacios libres mínimos para la apertura del equipo.
6.5 Montaje
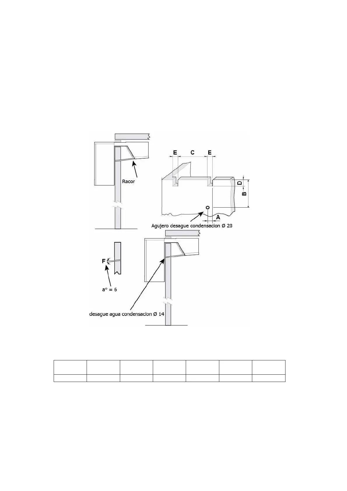
VERSIÓN TIPO MOCHILA
Antes de colocar el equipo, hay que realizar unos cortes y agujeros en la cámara como indica la figura. Sujete el
equipo con los tornillos apropiados. A continuación coloque el equipo en la cámara; realice la conexión entre el
desagüe de la bandeja de evaporación y el agujero realizado en la pared utilizando el racor en que
habrá introducido previamente la resistencia de desagüe (solo para los modelos de Baja temperatura). Sujete
luego el racor con el tornillo proporcionado. Rellene el agujero de la pared con material aislante,
poliestireno o silicona, y coloque la tapa encima del agujero.
A
mm
B
mm
C
mm
D
mm
E
mm
F
AS1 19 316 288 83 43 6