EasyManua.ls Logo

Tektronix 2213 - Page 168

Tektronix 2213
224 pages
Print Icon
To Next Page IconTo Next Page
To Next Page IconTo Next Page
To Previous Page IconTo Previous Page
To Previous Page IconTo Previous Page
Loading...
ΝD
ΜΕ
~
ΑιΑΗ
DL
ΕΤΤΕΗΑΤ
5
Ι
GΝΑ
L
υΝΕ
S
Τ00R
ΜΟΜ
07
ΗΕρ
DIAG
R
AMS
I
N
DICATES
ΤΗΕ
GRID
COORDINATE
ON
ANOTHER
SCHEMATIC
(FOR
Ειυυνιε
.
αε
)
C142
TR
IG
FRO
M
MSLS
B-6
SF
W"
9
.
ικ
ύ
ΜΑ
1
γΜ
-
1G
Ιθ
150
ι
5C-
8
TF
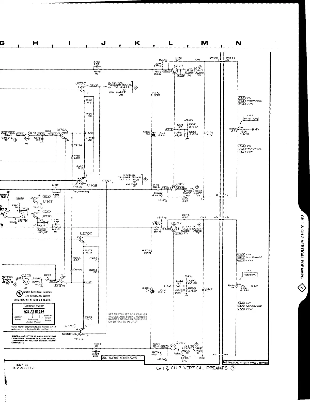
3827-23
R
EV
A
U
G
198?
-
R173
UI70
A
Q173
_
α
.
ο
ικ
©
Ι
5
©
Static
Se
n sitive
Devices
See
M
amtenance
Section
CO
MP
O
NEN
T
NUMBER
E
XA
MPLE
C273
-L
ι
-e-'
Α
15
ΙΟο
;
;
U27CA
Com
p
onent
Num
b
er
Α
~
Α2
812
34
ε
em
Assembly
+
ι
ς
h
α
1 ιε
Number Sn6αs
τ
em
b
ly
[
υευίΙ
Num
b
er
Number
( ί
/
used)
επαππ
-m
οηια
,αεη
ρο,e
ηι
,
παν
e
ηηπ
sse
ηα b
ι
y
Ηη m ΝΙ
α
eb-see
εηα
ηι
παριαε
e
α b
ι
, ει e
ειιιεαι
Part,
ιι
,
ι .
U
270
B
4
C
I'75
270
+α
.
ωΜ
2
4P
Ι
78
4
757
.0
Cr
ιι
W1001
-3
ι
WI000
-3
+3
.5
Cw
MIDRA
NG
E
τ
4
.
Η
)
CCW
Gw
-
Β
"
r.V
RI91
-
4
.(
.4K
+~
CW
+4~
.
MIDRA
NGE
C-
C-3
-
:v
c
ω
M
ι
ORANGE
CI
-
4-
.e
-
,)
CCw
G
ΑΖ
8291
4.64Κ
-8
.(
.V
+4
.
Β
C
νυ
ΜΙΟ
R
Ααλα
G
Ε
.
t3
.5
CCW

Other manuals for Tektronix 2213

Related product manuals