EasyManua.ls Logo

Telcoma ZEN 100E - Page 40

Telcoma ZEN 100E
Print Icon
To Next Page IconTo Next Page
To Next Page IconTo Next Page
To Previous Page IconTo Previous Page
To Previous Page IconTo Previous Page
Loading...
40
E
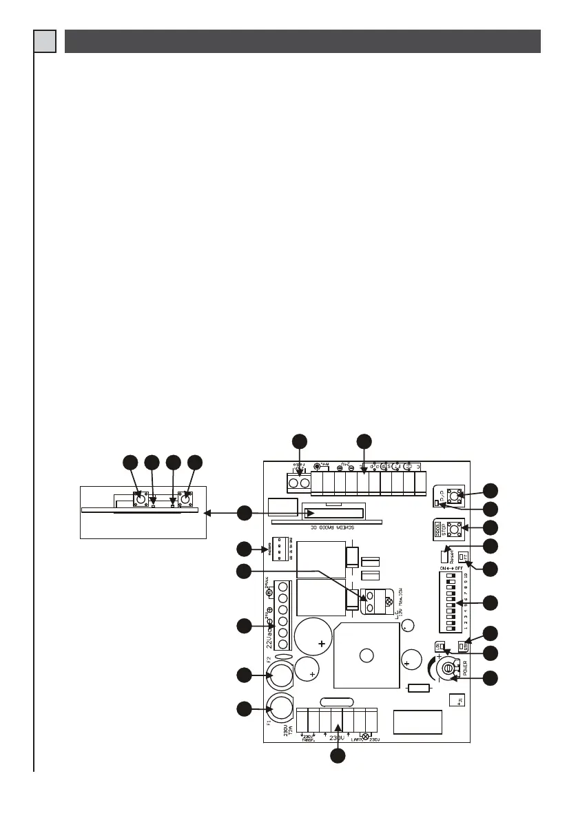
1) Regleta de conexión de 230 V (línea, primario del transformador y luz intermitente)
2) Fusible de línea T2A 230V
3) Fusible de alimentación T10A 24V
4) Regleta de conexión del motor 24V y secundario del transformador (22V)
5) Regleta para la luz de cortesía 12V 10W
6) Conector para el encoder
7) Conector para la tarjeta radio opcional mod. OC.
8) Botón de programación del canal 1 radio
9) Led canal 1 radio
10) Led canal 2 radio
11) Botón de programación del canal 2 radio
12) Regleta de conexión salida segundo canal radio (si está disponible).
13) Regleta de conexión entradas 24V y antena.
14) Botón P/P Paso a paso
15) Led de señalización del estado de la entrada PASO A PASO. Led apagado = entrada abierta.
16) Botón PROG para Programación y Parada*
17) Reajuste de la central. Cortocircuitar por un instante los 2 contactos equivale a cortar y activar, nuevamente, la tensión.
18) Led de señalización estado entrada FOTOCÉLULA. Led encendido = entrada cerrada
19) Dip-switch funciones
20) Led de señalización estado entrada PARADA. Led encendido = entrada cerrada
21) Led Programación (LD1)
22) Trimmer de regulación de la potencia.
(*) Este botón de PARADA no debe ser considerado de seguridad sino sólo de servicio para facilitar los ensayos durante la instalación.
DESCRIPCIÓN DE LAS PIEZAS (fig. 14)
22
5
19
18
20
1312
6
21
17
16
14
15
8
9
10
11
4
3
2
1
Z124
P1
P2
Radio RX mod. OC (optional)
7
Fig. 14

Related product manuals