EasyManua.ls Logo

Telcoma ZEN 100E - Page 8

Telcoma ZEN 100E
Print Icon
To Next Page IconTo Next Page
To Next Page IconTo Next Page
To Previous Page IconTo Previous Page
To Previous Page IconTo Previous Page
Loading...
8
I
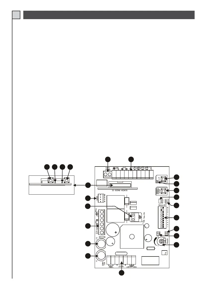
1) Morsettiera collegamenti a 230 V (linea, primario trasformatore e lampeggiante)
2) Fusibile linea T2A 230V
3) Fusibile alimentazione T10A 24V
4) Morsettiera collegamenti motore, 24V e secondario trasformatore (22V)
5) Morsettiera per luce cortesia 12V 10W
6) Connettore collegamento encoder
7) Connettore per scheda radio opzionalemod. OC.
8) Tastino programmazione canale 1 radio
9) Led canale 1 radio
10) Led canale 2 radio
11) Tastino programmazione canale 2 radio
12) Morsettiera collegamento uscita secondo canale radio (se disponibile).
13) Morsettiera collegamento ingressi, 24V e antenna.
14) Pulsante P/P Passo/Passo
15) Led di segnalazione stato ingresso PASSO/PASSO. Led spento = ingresso aperto.
16) Pulsante PROG per Programmazione e Stop*
17) Reset centralina. Cortocircuitare per un attimo i 2 pin equivale a togliere e ridare la tensione.
18) Led di segnalazione stato ingresso FOTOCELLULA. Led acceso = ingresso chiuso
19) Dip-switch funzioni
20) Led di segnalazione stato ingresso STOP. Led acceso = ingresso chiuso
21) Led Programmazione (LD1)
22) Trimmer per regolazione potenza.
(*) Questo pulsante di STOP non deve essere considerato di sicurezza ma solo di servizio per facilitare i test durante l’installazione.
DESCRIZIONE DELLE PARTI (fig. 14)
22
5
19
18
20
1312
6
21
17
16
14
15
8
9
10
11
4
3
2
1
Z124
P1
P2
Radio RX mod. OC (optional)
7
Fig. 14

Related product manuals