EasyManua.ls Logo

TemperZone ISD 220Q - Application Considerations and Wiring; Noise Isolation Recommendations; Wiring Schematic Overview; Fan Speed Selection Wiring

TemperZone ISD 220Q
4 pages
Print Icon
To Next Page IconTo Next Page
To Next Page IconTo Next Page
To Previous Page IconTo Previous Page
To Previous Page IconTo Previous Page
Loading...
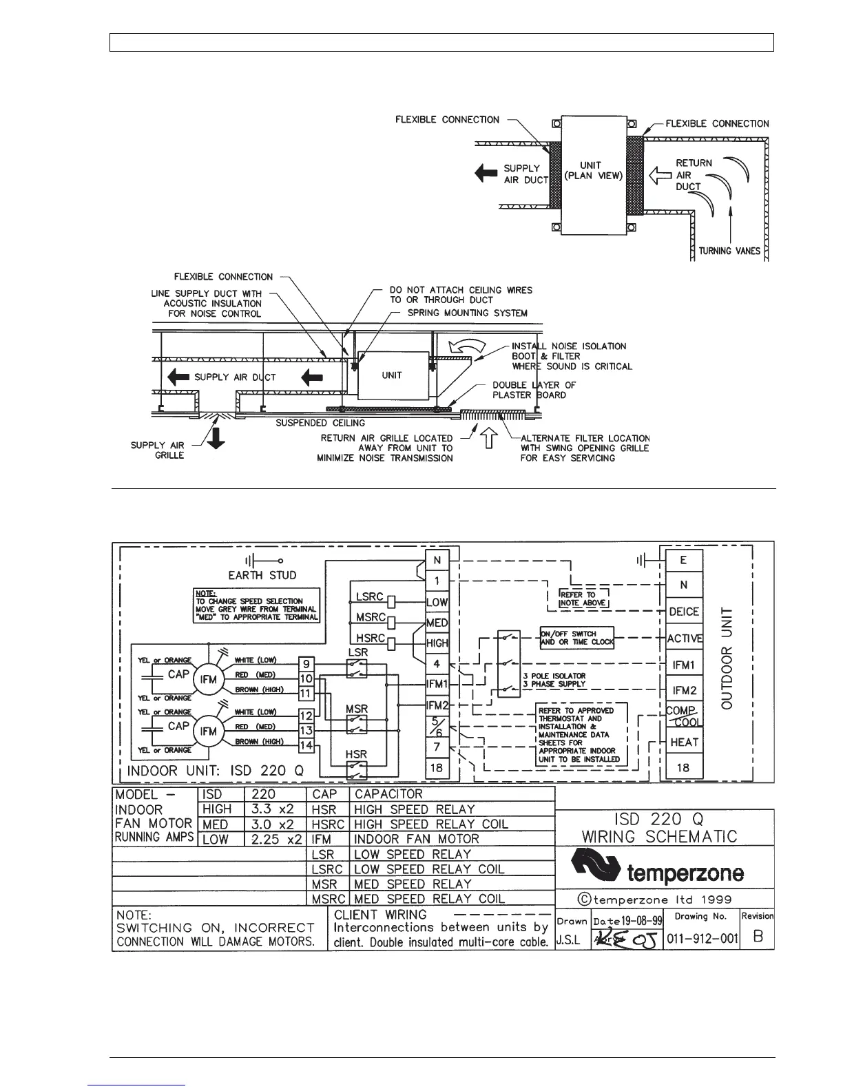
Recommendations for Noise Isolation
- particularly for high static installations:
1. Avoid installing units, with non-ducted return air, directly above
spaces where noise is critical.
2. Use flexible connections between unit and rigid ducting.
3. Use generously sized acoustically lined ducts.
4. If generous duct size is not possible, use turning vanes on bends
to reduce air turbulence (regenerated noise).
5. Use 90° bends in ducting to significantly assist in noise reduction.
Fig. 6 Application Considerations
Wiring
NOTE
The manufacturer reserves the right to
change specifications at any time without
notice or obligation. Certified dimensions
available on request.
ISD 220Q

Related product manuals