EasyManua.ls Logo

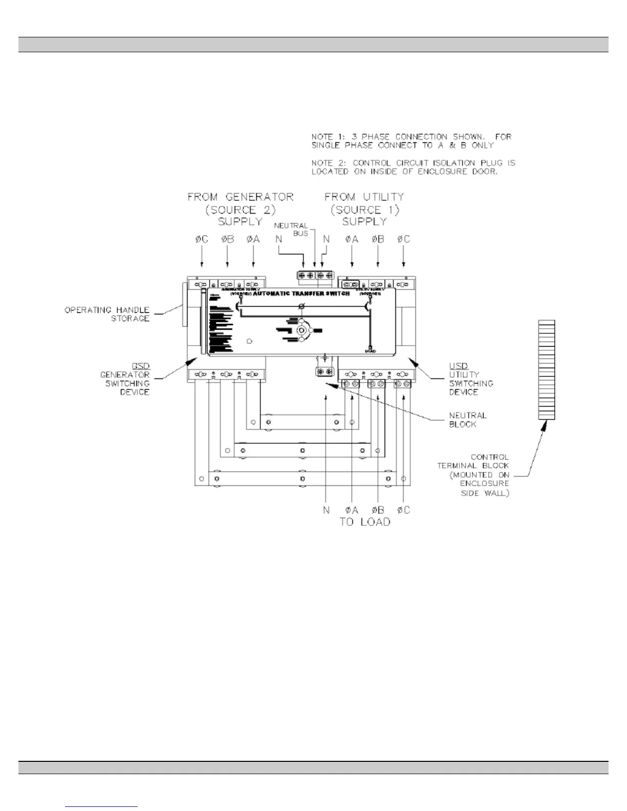
THOMSON TS 840 - 12 Front View (Typical) 3 Pole 400 A-800 A S-Style Transfer Mechanism25

THOMSON TS 840
43 pages
Print Icon
To Next Page IconTo Next Page
To Next Page IconTo Next Page
To Previous Page IconTo Previous Page
To Previous Page IconTo Previous Page
Loading...
TS 840 TRANSFER SWITCH
PM057 REV 8 10/01/25 25 Thomson Technology
12. FRONT VIEW (TYPICAL) 3 POLE 400A-800A S-Style TRANSFER
MECHANISM

Table of Contents

Related product manuals