EasyManua.ls Logo

Thor Kitchen HRG4802U - Page 22

Thor Kitchen HRG4802U
60 pages
Print Icon
To Next Page IconTo Next Page
To Next Page IconTo Next Page
To Previous Page IconTo Previous Page
To Previous Page IconTo Previous Page
Loading...
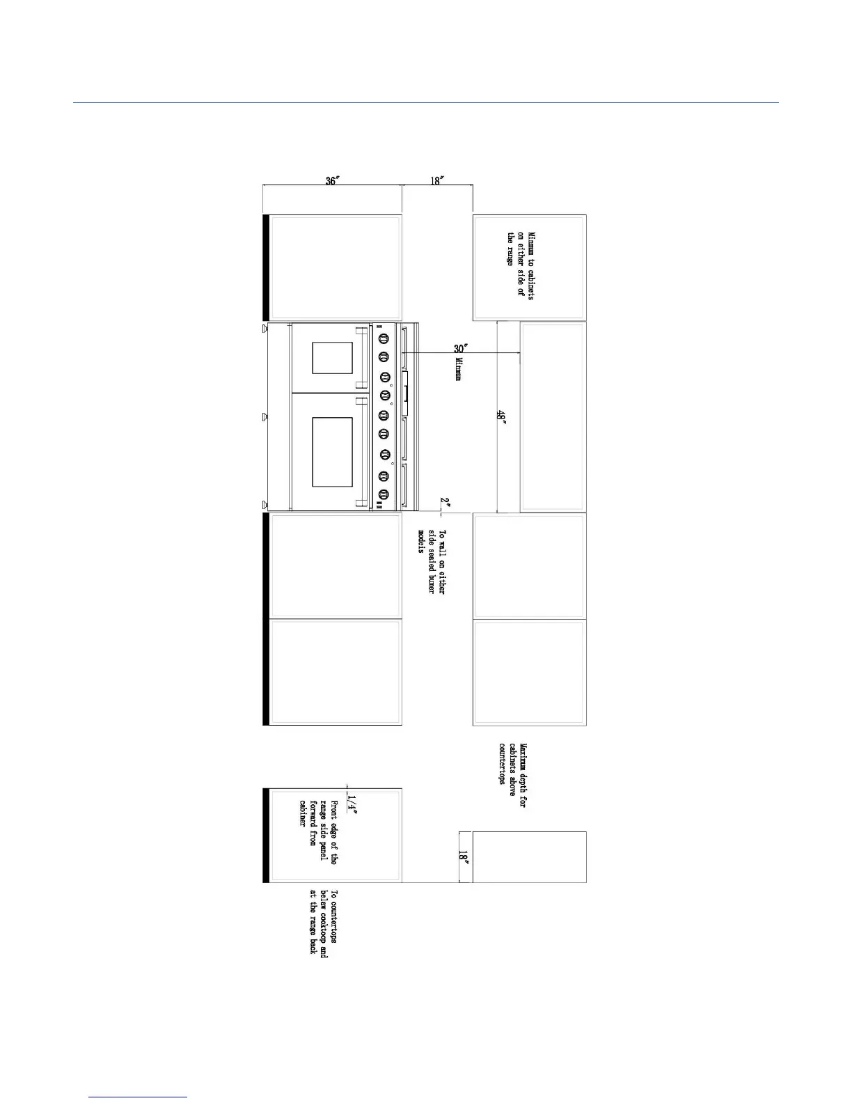
Dimension and Clearance
21
48 Gas Range Clearance

Table of Contents

Other manuals for Thor Kitchen HRG4802U

Related product manuals