EasyManua.ls Logo

Thor Kitchen HRG4802U - Page 26

Thor Kitchen HRG4802U
60 pages
Print Icon
To Next Page IconTo Next Page
To Next Page IconTo Next Page
To Previous Page IconTo Previous Page
To Previous Page IconTo Previous Page
Loading...
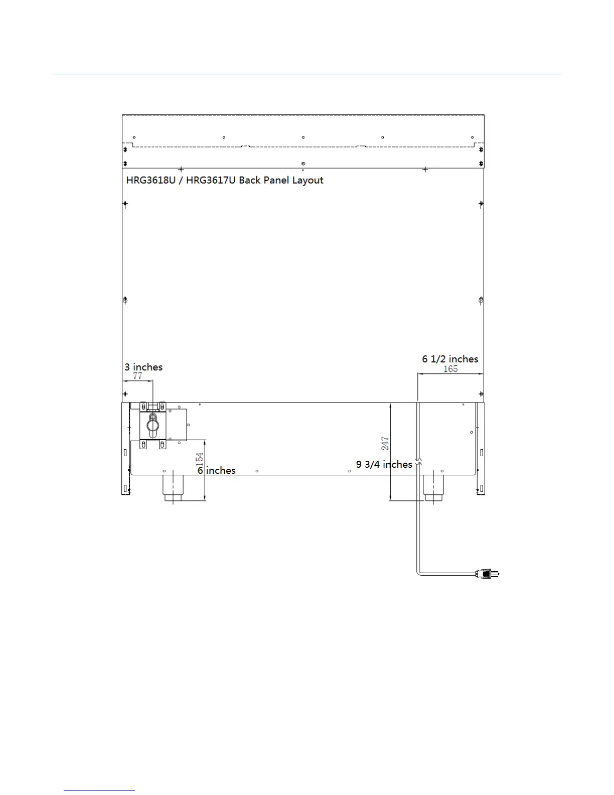
Dimension and Clearance
25
HRG3618U / HRG3617U Back Panel Layout

Table of Contents

Other manuals for Thor Kitchen HRG4802U

Related product manuals