EasyManua.ls Logo

Toro 315-8 - Page 71

Toro 315-8
188 pages
Print Icon
To Next Page IconTo Next Page
To Next Page IconTo Next Page
To Previous Page IconTo Previous Page
To Previous Page IconTo Previous Page
Loading...
2006 1332-G (Int’l)
2007 G132 (Int’l)
Demystification Guide 8 - 3
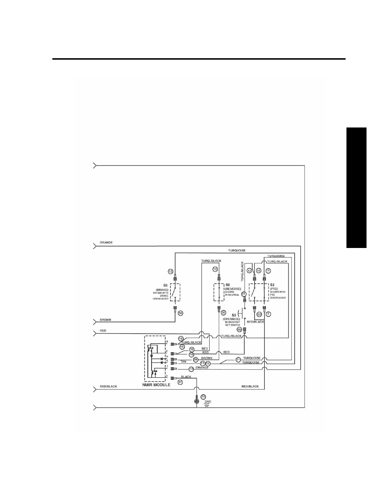
Wiring Diagram
Wiring Diagram

Table of Contents

Related product manuals