EasyManua.ls Logo

Toro 520XI - Page 85

Toro 520XI
93 pages
Print Icon
To Next Page IconTo Next Page
To Next Page IconTo Next Page
To Previous Page IconTo Previous Page
To Previous Page IconTo Previous Page
Loading...
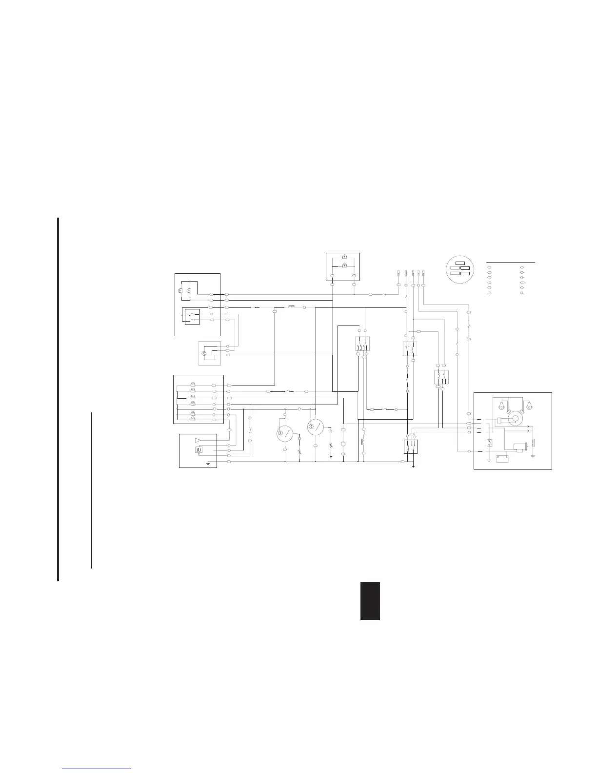
520/522xi
GY
B+
OSCILLATOR
VOLTAGE
COMPARATOR
ELECTRONICS MODULE
PN 94-7612
1
2
3
5
4
T
BK
OR
A
T
BATTERY
REVERSE C
K
T
OR
#194 LAMP
#168 LAMP
W
SW5
(REVERSE SWITCH)
REVERSE SWITCH
CLOSES WHEN HYDRO
TRACTION LEVER IS
MOVED TO REVERSE
PP
P
GY
W
PTO J
W
#194 LAMP
#194
LAMP
L
S
G
I
BK
P
GRN
BU
VIO
95-3029
CRUISE MODULE
C
A
B
WARNING LIGHT HARNESS
CRUISE
PARK
OIL B
D
H
GRN
VIO
BU
#194 LAMP
#194 LAMP
#194 LAMP
BU
CRUISE SWITCH OPERATION
OFF NO CONNECTION
ON 3 AND 2 CONNECTED
MOMENTARY 3 AND 2 CONNECTED 5 AND 6 CONNECTED
BN
Y
BK
PARK SWITCH CLOSES WHEN PARKING
BRAKE LEVER IS ENGAGED
(PARK SWITCH)
SW6
2
3
5
6
(MOMENTARY)
SW8
GY
BN
BK
(SEAT SWITCH)
SW1
SW3
(PTO SWITCH)
PTO SWITCH IS SHOWN
IN OFF POSITION
SEAT SWITCH IS CLOSED
WHEN OPERATOR IS IN
THE SEAT
BK
W P
K3
(INTERLOCK RELAY)
Y
T
P
FUEL
GAUGE
BK
GRN
W
BN
(BRAKE SWITCH)
SW2
GY
PTO CLUTCH
BK
BK
#194
LAMP
L
S
G
I
Y
BRAKE SWITCH CLOSES WHEN
BRAKE IS DEPRESSED
TEMP.
GAUGE
TEMP.
SENDER
P
HOUR
METER
K1
(KILL RELAY)
BK
Y
GRN
Y
GN GN
REAR HARNESS
BN
Y
CRUISE SWITCH SW7
(CRUISE DISENGAGE SWITCH)
SWITCH OPENS WHEN
BRAKE IS DEPRESSED
BK
TAIL LIGHTS
BK
OR
B
A
E
C
Y
BN
D
OR
CRUISE MAGNET
VIO
3
I
OR
10A
F4
P
P
10A
F3
P
OR
(IGNITION SWITCH)
OFF--------------------NO CONNECTION
RUN/LIGHTS----------B I R L
RUN--------------------B I R
START-------------------B I R S
4
L
ORBK
BK OR
HEADLIGHT HARNESS
SW4
I
IGNITION SWITCH TERMINAL
LOCATIONS VEIWED FROM BACK.
VIORBN
2
R
1
S
5
B
ORANGE
GREY
OR
GY
WIRE COLOR CODES
GREEN
BLUE
BROWN
BLACK
GN
BU
BN
BK
VIO
WHITE
YELLOW
Y
W
VIOLET
TAN
RED
VIO
T
R
PINK
P
B
L
R
S
GND
W
GRN
BU
BN
K2
(START RELAY)
BK
BN
OR
OR
R
W
BU
GRN
START
OIL
REG
MAG
B+
AC
IGNITION
MODULES
SPARK PLUGSPARK PLUG
AC
+-
OIL
SWITCH
SOLINOID
SHIFT
STARTER
FUEL
SOLINOID
VIO
ENGINE HARNESS
R
30A
F1
R
25A
F2
VIO
OIL SWITCH OPENS
WITH OIL PRESSURE
20 & 22 Kohler
FUEL
SENDER
GND
7
4
8
5
1
2
-
+
5
3
4
1
2
5
3
4
1
2
5
3
4
1
2
6
ELECTRICAL
6-18 5xi Series Tractor Service Manual

Table of Contents

Related product manuals