EasyManua.ls Logo

Toro Workman 1100 - Schematics

Toro Workman 1100
36 pages
To Next Page IconTo Next Page
To Next Page IconTo Next Page
To Previous Page IconTo Previous Page
To Previous Page IconTo Previous Page
Loading...
35
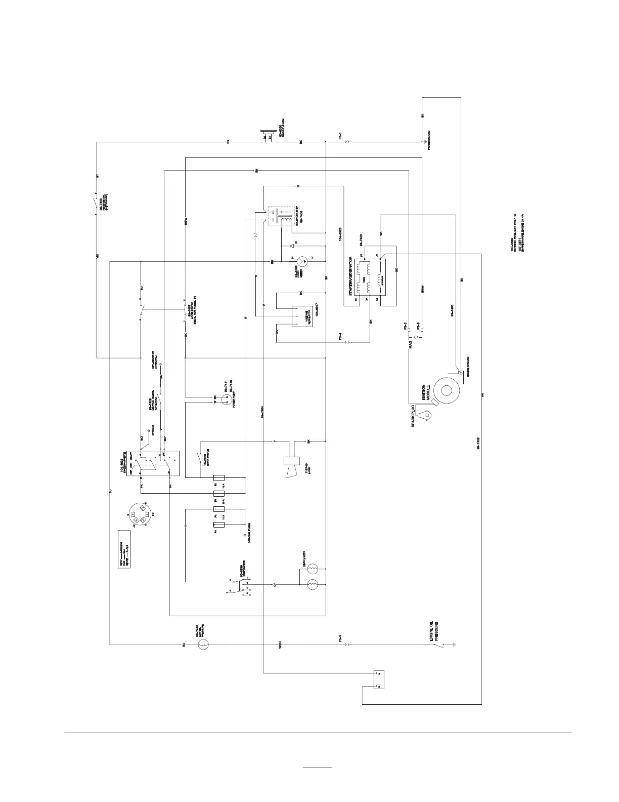
Schematics
m-7375
Electrical Schematic

Table of Contents

Other manuals for Toro Workman 1100

Related product manuals