EasyManua.ls Logo

Torque X-CREATE WALL SPACE - One Module Assembly

Torque X-CREATE WALL SPACE
46 pages
Print Icon
To Next Page IconTo Next Page
To Next Page IconTo Next Page
To Previous Page IconTo Previous Page
To Previous Page IconTo Previous Page
Loading...
50 180
3
190150 170160
6
130 14012090 110100403010 706020 80
1 2 4 5 7
200
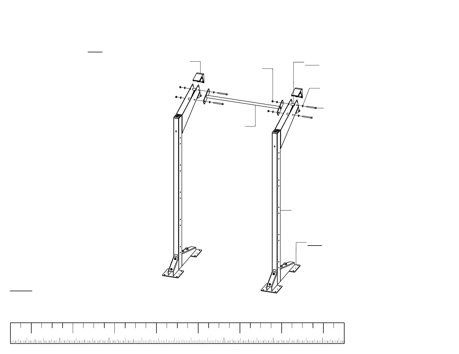
XCREATE-8U (2)
XCREATE-4SX (2)
NOTE:
REMOVE END CAPS PRIOR TO ASSEMBLY.
RE-ATTACH END CAPS AFTER ASSEMBLY (2)
NOTE:
URETHANE BOOTS
WILL BE ASSEMBLED
IN THE LAST STEP
NOTE:
MAKE SURE TO USE PRE-
INSTALLED SPACERS (4)
1/2" FLAT WASHER (8)
(PRE-INSTALLED)
1/2 X 4-3/4" BOLT (4)
(PRE-INSTALLED)
1/2" LOCK NUT (4)
(PRE-INSTALLED)
3
ONE MODULE
ASSEMBLY
NOTE:
LOOSELY
assemble bolt connections in this step.
If more than one module will be assemble, refer to
PAGE 6
.

Related product manuals