EasyManua.ls Logo

Toshiba MMY-MAP0802FT8-E - Page 6

Toshiba MMY-MAP0802FT8-E
45 pages
Print Icon
To Next Page IconTo Next Page
To Next Page IconTo Next Page
To Previous Page IconTo Previous Page
To Previous Page IconTo Previous Page
Loading...
6
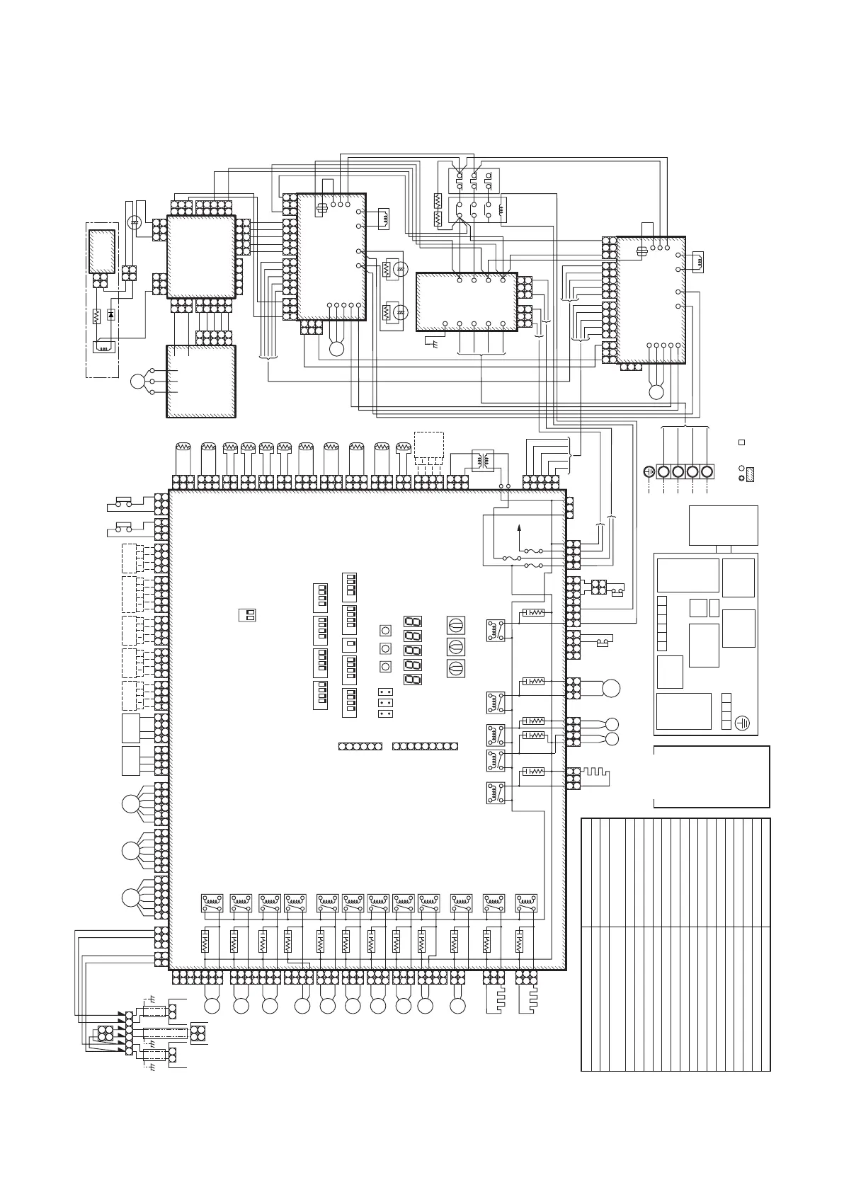
CM1, CM2
PMV1, PMV2, PMV3
SV2, SV41, SV42, SV51, SV3A, SV3B,
SV3C, SV3D, SV3E, SV61, SV11, SV12
4WV1
COMP1, COMP2
TS1, TS2
TD1, TD2
TE1
TO
TK1, TK2, TK3, TK4
TL
HEATER1, HEATER2, ACCUMULATOR
FM
PS
PD
63H1, 63H2
MG-SW
OCR
HVC1, HVC2
Compressor
Pulse motor valve
2-way valve coil
4-way valve coil
Compressor case thermo.
Pipe temp. sensor (Inlet)
Pipe temp. sensor (Outlet)
Heat exchange temp. sensor
Air temp. sensor
Oil temp. sensor
Liquid temp. sensor
Case heater, 230V, 26W
Fan motor (DC)
Low pressure sensor
High pressure sensor
High pressure switch
Magnet switch
Overcurrent relay
High voltage capacitor
Symbol
Parts name
RED : RED
WHI : WHITE
YEL : YELLOW
BLU : BLUE
BLK : BLACK
GRY : GRAY
PNK : PINK
ORN : ORANGE
BRN : BRWN
VLT : VIOLET
Noise filter
P.C. board
MCC-1366
Fan IPDU
MCC-896
Interface
control
P.C. board
(I/F)
MCC-1429
Power supply
terminal
Comp. IPDU
No.1
MCC-1502
MG-
SW
OCR
Comp. IPDU
No.2
MCC-1502
Power supply
for fan
MCC-1439
U1 U2 U3 U4 U5 U6
L1 L2 L3 N
Connecting terminal
Color
indication
Parts layout
1
1
2
2
1
1
2
2
3
3
CN03
(WHI)
CN300
(WHI)
CN301
(WHI)
CN500
(WHI)
CN01
(BLU)
BLU
BLU
WHI
WHI
7
5
3
1
7
5
3
1
SV41
BLU
BLU
CN312(WHI)
3
1
3
1
SV2
BLU
BLU
CN324(RED)
3
1
3
1
SV3A
BLU
BLU
CN313(YEL)
3
1
3
1
SV3B
BLU
BLU
CN314(BLK)
3
1
3
1
SV3C
BLU
BLU
CN319(WHI)
3
1
3
1
SV12
BLU
BLU
BLU
BLU
BRN
BRN
CN316(WHI)
Heater 1
1
3
1
3
CN315(BLU)
Heater 2
1
3
1
3
CN310
(WHI)
CN311
(BLU)
CN309
(WHI)
4
3
2
1
2
1
SV51
BLU
BLU
CN322(WHI)
4
3
2
1
4
3
SV11
SV42
BLU
BLU
7
5
3
1
3
1
SV61
BLU
BLU
RY503
CR503
RY500
CR500
RY502
CR502
RY506
CR506
RY507
CR507
RY508
CR508
RY509
CR509
RY513
CR513
RY514
CR514
RY516
CR516
RY517
CR517
RY504
CR504
U1 U2 U3 U4 U5 U6
U1 U2 U5 U6
1
1
2
2
6 5 4 3 2 1
6 5 4 3 2 1
RED
BRN
BLU
ORN
YEL
WHI
PMV1
4 3 2
4 3 2 1
RED
BLK
WHI
6 5 4 3 2 1
6 5 4 3 2 1
RED
BRN
BLU
ORN
YEL
WHI
PMV2
CN302
(RED)
6 5 4 3 2 1
6 5 4 3 2 1
RED
BRN
BLU
ORN
YEL
WHI
PMV3
Pressure
Sensor
PS
CN501
(RED)
4 3 1
4 3 2 1
RED
BLK
WHI
Pressure
Sensor
PD
CN508
(RED)
4 3 2 1
4 3 2 1
Option
Board
CN509
(BLK)
4 3 2 1
4 3 2 1
Option
Board
CN510
(WHI)
4 3 2 1
4 3 2 1
Option
Board
CN512
(BLU)
CN306
(WHI)
63H1
4 3 2 1
4 3 2 1
1 3
1 3
Option
Board
CN513
(BLU)
4 3 2 1
4
5
5 3 2 1
Option
Board
CN308
(BLU)
63H2
1 3
1 3
BLU(BLK)
BLU(BLK)
CN502
(WHI)
3
1
3
1
TD1
(YEL)
TD2
(RED)
TS1
(GRY)
BLU(BLK)
BLU(BLK)
BLK
BLK
3
1
3
1
CN504
(WHI)
CN503
(PNK)
TK1
(BLK)
BLU(BLK)
BLU(BLK)
3
1
3
1
CN514
(BLK)
TK2
(BLU)
BLU(BLK)
BLU(BLK)
3
1
3
1
CN515
(GRN)
TK3
(BLU)
BLU(BLK)
BLU(BLK)
3
1
3
1
CN516
(RED)
TK4
(GRN)
BLU(BLK)
BLU(BLK)
3
1
3
1
CN523
(YEL)
BLU
BLU
3
1
3
1
CN100
(BLK)
3
1
3
4 4
1
CN511
(GRN)
2
1
2
1
TS2
BLK
BLK
CN522
(BLK)
2
1
2
1
TE1
(BLK)
BLK
BLK
CN505
(GRN)
2
1
2
1
TO
(BLK)
BLK
BLK
CN507
(YEL)
2
1
2
1
TL
(WHI)
BLK
BLK
CN521
(WHI)
2
1
2
2 2
1
Option
board
3
1
3
4 4
1
CN600(WHI)
T6.3A
FUSE
CN325
(YEL)
Option
CN400
(WHI)
CN305(RED)
ORN
BLK BLK
ORN
CN307(WHI)
RY521RY511
CN401
WHI
RED
PNK
RED
BLU
WHI
BLK
CN402
2 2
5 5
5 3 1 3 17
7 5
4
4
3
3
3
2
21
3 1
3 1
4 3 2 1
2 1
1
1
T6.3A
FUSE
T6.3A
FUSE
RED
WHI
BLK
GRY
CN317
(BLU)
CN323
(WHI)
4
4
3
3
2
2
1
1
BLU
BLU
BLU
BLU
L1
L2
L3
N
ORN
RED
BLU
ORN
BLU
BLU
Comp1
Comp2
1 3
1 3
4WV1
SV
3E
SV
3D
RY519RY518
CN321
(RED)
BRN
1 2
1 2
Accumulator
heater
RY510
CR521 CR519CR511
CR
510
CR
518
ON
SW30
SW01
SW06
4
31
ON
2
SW14
431
ON
2
SW13
1
ON
SW08
4
31
ON
2
SW12
431
ON
2
SW11
431
ON
2
SW07
431
ON
2
SW06
431
ON
2
SW10
431
ON
2
SW09
SW05SW04
CN32
SW02 SW03
D603D602D601D600 D604
CN31
CN30
CN800
CN802
Flash
6
5
4
3
2
1
6
5
4
9
8
7
3
2
1
(Srvice)
3 1
3 1
3 1
3 1
3 2 1
3 2
5 4
5 4 1
3 2 1
3 2
5 4
5 4 1
3
1
CN18
(RED)
CN17
(BLK)
CN06
(WHI)
CN26
(BLU)
CN11
CN10
CN09
CN25
(WHI)
W
V
U
BLK
PNK
RED
RED
BLU
WHI
BLK
PNK
RED
BLU
WHI
BLK
BLU
YEL
WHI
RED
YEL
BLU
CN22
CN23
CM2
CN03
CN02
CN01
CN15 CN13
CN07
WHI
CN08
WHI
L1
L2
L3
BLK
WHI
RED
Reactor
3 1
3 1
3 1
3 1
3 4 5
3 4
1 2
1 2 5
3 4 5
3 4
1 2
1 2 53 41 2 5
3 2 1
3 2
5 4
5 4 1
2 2
3 3
1 1
CN18
(RED)
CN17
(BLK)
CN06
(WHI)
CN26
(BLU)
CN503
(WHI)
CN504 CN505(RED)
CN502
(BLU)
GRY
RED
BLU
YEL
RED
CN501
(RED)
CN11
CN10
CN09
CN25
(WHI)
YEL
BLU
W
V
U
CN21
CN01
CN02
CN03
RED
WHI
BLK
GRY
CN04
CN23(BLU)CN22(WHI)
CN17
CN18
CN19
CN20
BLK
WHI
RED
YEL
BLU
CN22
CN23
CM1
CN15
BLK
BLU
YEL
YEL
BLK
BLU
BLK
CN13
CN20
WHI
CN21
WHI
BLK
WHI
RED
Reactor
+– +–
1 3
1 3
1 3
1 3
1
3
5
2
4
6
2
4
6
A1 A2
Mg-SW OCR
RED
RED
RED
RED
WHI
BLK
BLK
BLK
GRY
GRY
GRY
PTC Themistor
5
4
3
2
1
5
4
3
2
1
3
1
3
1
5
3
1
5
3
1
3
1
3
1
5
4
3
2
1
5
4
3
2
1
CN01
(WHI)
RED
WHI
BLK
UVW
FM
–
+
PNK
PNK
RED
RED
BLU
BLU
WHI
BLK
WHI
BLK
Indoor
unit
Outdoor
unit
Central
remote
controller
Transformer
RED
WHI
BLK
GRY
L1
L2
L3
N
Power Supply
3phase
380-415V 50Hz
1. The two-dot chain line indicates wiring at the local site, and the dashed line indicates
accessories sold separately and service wires, respectively.
2. , , and indicate the terminal board and the numerals indicate the terminal numbers.
3. indicates P.C. board.
* Be sure to fix the electric parts cover surely with two screws.
(Otherwise water enters into the box resulting in malfunction.)
Interface Control P.C. Board
MCC-1429
IPDU Board (2)
MCC-1502
Noise filter
P.C. board
MCC-1366
IPDU P.C. Board (1)
MCC-1502
FAN IPDU
P.C. Board
MCC-896, 897
Power supply
P.C. board for FAN
MCC-1439
Earth screw
U3 U4
U1 U2
BLK
WHI
BLU
BLU
RED
PNK
YEL
CN03
CN02
CN01
L1
L2
L3
HVC1 HVC2
CN500(WHI)
Passive
filter
3
3
1
1
2
1
2
1
3
3
1
1
MCC-1580
CN01(WHI)
CN507
(YEL)
CN506
(BLK)
+–
+
~
Passive filter box
Passive filter
Electric parts box
RED
RED
WHI YEL
YEL
YEL
YEL
BLU
BLU
BLU
Reactor
1
2
1
2
Model: MMY-MAP0802FT8-E, MMY-MAP1002FT8-E, MMY-MAP1202FT8-E

Related product manuals