EasyManua.ls Logo

Toshiba MMY-MAP0804HT8P-E - Page 261

Toshiba MMY-MAP0804HT8P-E
323 pages
Print Icon
To Next Page IconTo Next Page
To Next Page IconTo Next Page
To Previous Page IconTo Previous Page
To Previous Page IconTo Previous Page
Loading...
– 260 –
<MMY-MAP0804 , MAP1004 and MAP1204 >
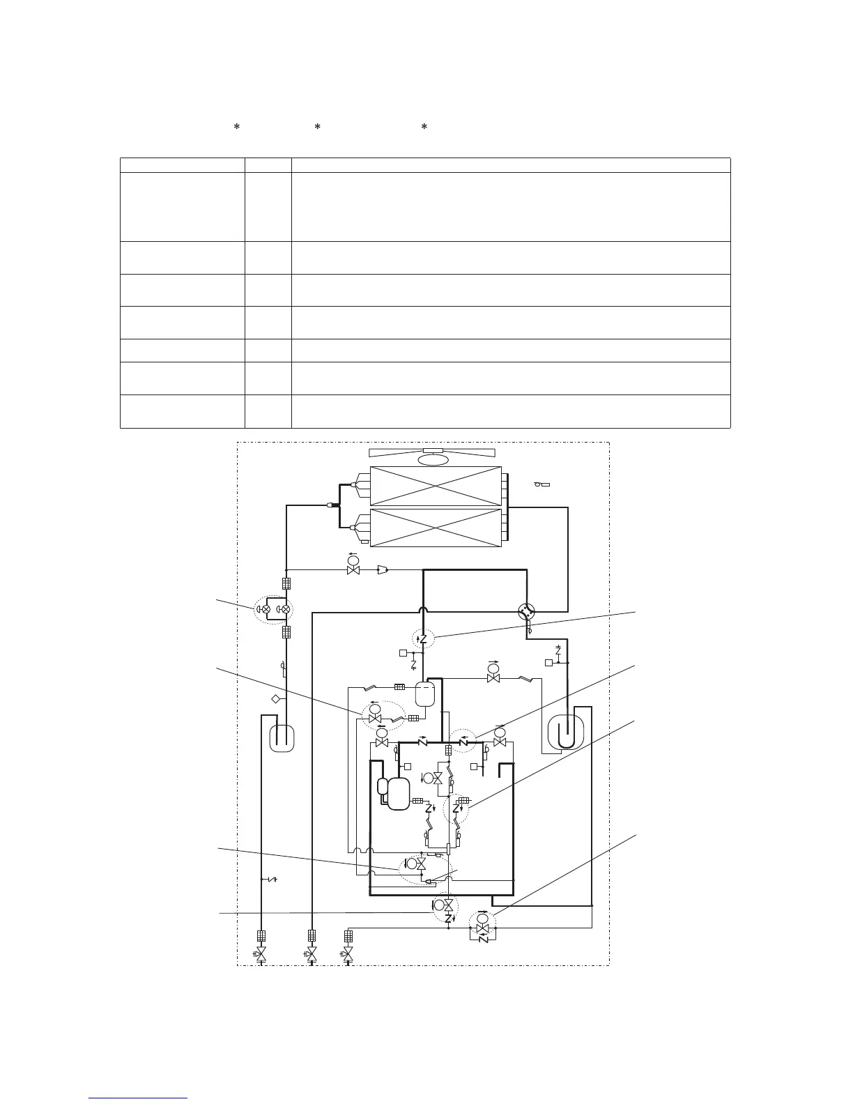
Check items and procedures to follow when checking oil circuit with compressor(s) disconnected
erudecorPnoitacoLmeti kcehC
Leakage of outdoor PMV
Leakage of check valve in
discharge pipe convergent
section
A,C
1) With PMV1 and 2 fully closed, apply pressure to the check joint of liquid pipe with nitrogen, and check the
pressure at the check joint of discharge pipe.
If the pressure at the check joint of discharge pipe increases, there is a leak from PMV1 or 2 (A) and check valve
of discharge pipe (C). Replace the faulty parts.
2) If the pressure does not increase, fully open outdoor PMV 1 and 2 and check the pressure at the check joint of
discharge pipe again.
If the pressure increases, there is a leak from the check valve of discharge pipe (C). Replace the part.
Leakage of check valve in
discharge pipe
E
3) With pressure applied to the check joint of discharge pipe with nitrogen, if gas escapes from the discharge pipe
section of the disconnected compressor, there is a leak from the check valve of discharge pipe (E). Replace the
part.
Leakage of check valve in oil
equalization circuit
F
4) With pressure applied to the check joint of discharge pipe with nitrogen, if gas escapes from the oil equalization
pipe section of the disconnected compressor, there is a leak from the oil equalization pipe check valve (F).
Replace the part.
Leakage of SV3A valve G
5) With pressure applied to the check joint of discharge pipe with nitrogen, manually open the SV3B valve. If gas
escapes from the suction pipe section of the disconnected compressor, there is a leak from the SV3A valve.
Replace the part.
Leakage of SV3B valve H
6) Then manually open the SV3A valve. If gas escapes from the suction pipe section of the disconnected
compressor, there is a leak from the SV3B valve. Replace the part.
Clogging of SV3E valve
Clogging of oil-return distributor
I
7) With pressure applied to the check joint of discharge pipe with nitrogen, manually open the SV3E valve. If gas
does not escape from the suction pipe section of the disconnected compressor, the SV3E valve or oil-return
distributor is clogged. Replace the part.
Clogging of SV3D valve
Clogging of oil-return capillary
Clogging of oil-return distributor
J
8) With pressure applied to the check joint of discharge pipe with nitrogen, manually open the SV3D valve. If gas
does not escape from the suction pipe section of the disconnected compressor, the SV3D valve, oil-return
capillary or oil-return distributor is clogged. Replace the part.
A
G
J
I
E
H
F
C
(TL)
PMV1
4-way valve
(TD2)
(TS1)
(SV2)
Low-pressure sensor
(SV5)
(TE
1)
M
(SV3D)
PMV2
(TK2)
Right-side
(SV3B)
(TK1)
(SV3A)
(TD1)
(TK4)
(SV3E)
(TK5 )
(SV41)
(
SV42
)
A3
Fan
(
SV3C
Reducer
(TO)
SV
SV
SV
SV
SV
SV
SV
SV
SV
Main heat exchanger
Left-side
Main heat exchanger
Fan motor
Oil-return
distributor
Accumulator
Fusible
plug
Liquid tank
Check valve
Check valve
Check valve
Check valve
Check valve
Check valve
High-pressure sensor
Discharge pipe check joint
Oil separator
Oil-return
capillary
High-pressure
SW
High-pressure
SW
Oil pipe
Liquid pipe check
joint
Liquid-side
service valve
Gas-side
service valve
Balance pipe
packed valve
Compressor
1
(Inverter)

Table of Contents

Related product manuals