EasyManua.ls Logo

Toshiba MMY-MAP0804HT8P-E - Page 91

Toshiba MMY-MAP0804HT8P-E
323 pages
Print Icon
To Next Page IconTo Next Page
To Next Page IconTo Next Page
To Previous Page IconTo Previous Page
To Previous Page IconTo Previous Page
Loading...
– 90 –
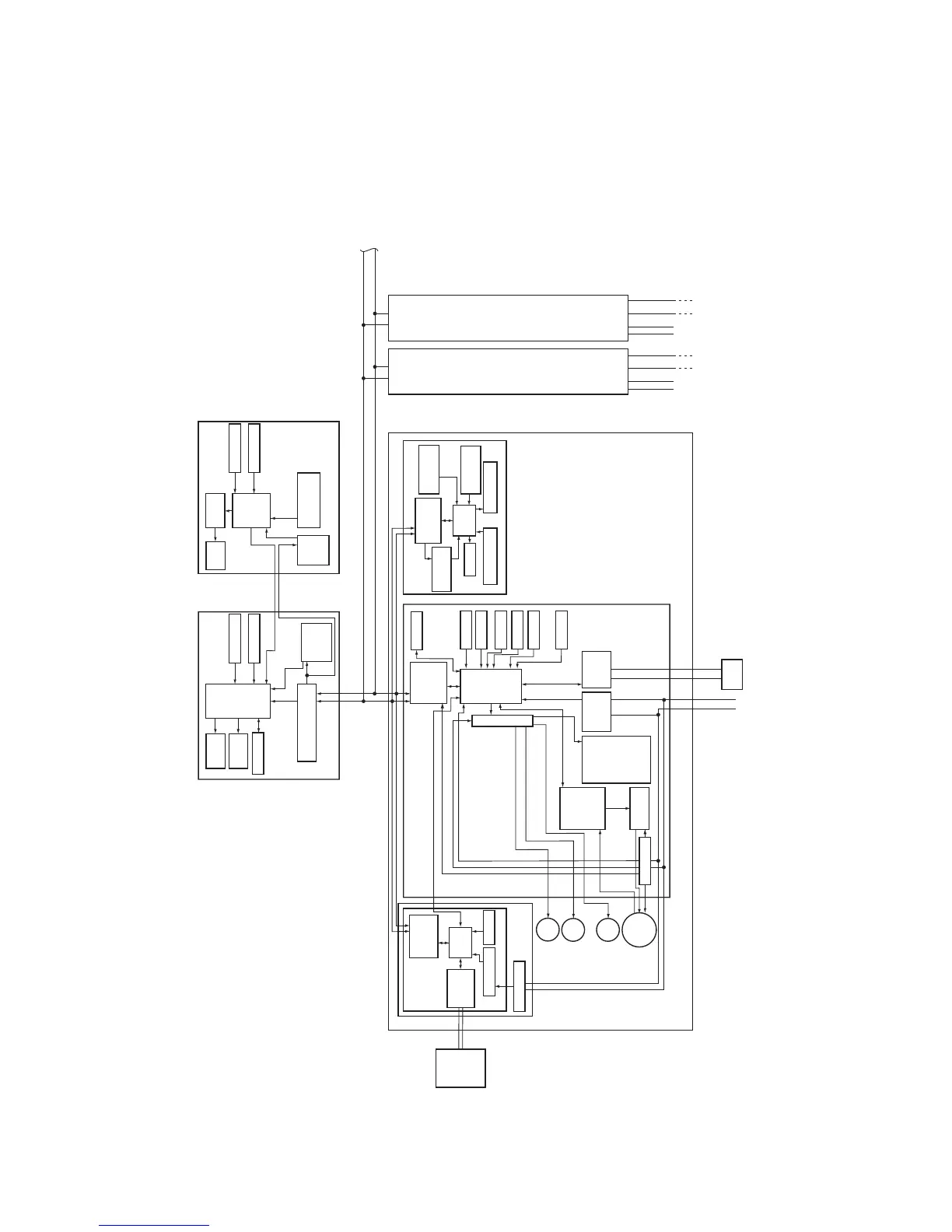
<Compact 4-way Cassette Type, 1-way Cassette (SH) Type, 2-way Cassette Type,
Ceiling Type, Concealed Duct Standard Type, Slim Duct Type, High Wall Type>
DC 280V
CPU
DC5V
DC5V
DC5V
CN2 CN1
DC5V
EEPROM
CPU
CPU
DC5V
DC12V
DC20V
X
Y
AB AB AB
L
N
U1
U1 U2
U2
HA
R
S
U1 U2
R
S
U1 U2
EEPROM
Power
supply
circuit
Function setting
Key switch
Remote controller
communication circuit
Display
LCD
Display
LED
*3
Rechargeable
battery
LCD
driver
Display
LCD
Function setting
Key switch
Power
supply
circuit
Outdoor
unit
Outdoor
unit
Power
source
Power
source
#2 #3
Sameas left
*2
Sameas left
*2
Up to 8 units can be
connected. *1
Emergency
operation SW
Wireless remote controller kit
Sensor P.C. board
Power
supply circuit
Remote controller
communication
circuit
Buzzer
Sensor circuit Display LED
Function
setting SW
Indoor/outdoor communication
Outdoor
unit
Power source
1Ø 220-240V, 50Hz
1Ø 220V, 60Hz
TA sensor
TCI sensor
TC2 sensor
TCJ sensor
Float input
Driver
Remote
controller
communication
circuit
*
N
ot applicable to concealed
duct high static pressure type
In operation
Alarm
Getting ready
Thermostat ON
COOL
HEAT
FAN
AC
synchronization
signal input circuit
BUS
communication
circuit
External output
CPU
H8/3039
Power supply circuit
Fan motor
control circuit
CPU
TMP88CH
47FG
(TMP88PH
47FG)
PMV
Louver
motor
Drain
pump
Indoor
fan
motor
*
Not applicable to concealed duct
standard type Slim Duct Type
Indoor control P.C. board (MCC-1402)
Switch setting
Power supply circuit
Transformer
Central
control
remote
controller
(optional)
Remote controller
communication
circuit
AI-NET
communication
circuit
(In case of
AI-NETWORK)
CPU
H8/3687
“1:1 model” connection interface (optional)
Indoor unit
#1
“1:1 model”
connection
interface P.C.
board
(MCC-1401)
Wired (Simple) header remote controller
(up to 2 units)
Schedule timer
*1 Only up to 7 units
if a “1:1 model”
connection interface
is installed.
*2 The “1:1 model”
connection interface
can only be installed
in one unit.
*3 A schedule timer
cannot be connected
to a simple remote
controller.

Table of Contents

Related product manuals